Prix Maison + Terrain
- À partir de 224 500 €
Référence
- ML2351150_3
Maison personnalisable
- Chambres : 3
- Nombre de pièces : 4
- Surface maison : 70 m²
- Surface terrain : 448 m²
- Garage/Carport
Performances énergétiques
- Classe énergétique : A
Description
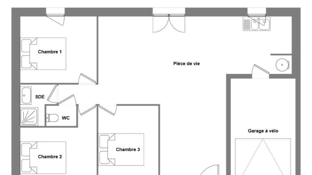
VENTE : maison F4 (70 m²) à Tréméven
PROCHE DE LORIENT - MAISON 4 PIÈCES NEUVE
À 16 km de la côte atlantique et à deux pas de Lorient, nous vous proposons cette maison de 4 pièces de plain-pied de 70 m² en vente à Tréméven (29300). Son intérieur offre trois chambres, une cuisine et une salle de bains.
Le terrain du bien s'étend sur 448 m².
Cette maison est neuve.
Il y a l'École Primaire Publique Yann-Fanch Kemener à moins de 10 minutes à pied. Côté transports, on trouve la gare Quimperlé à moins de 10 minutes en voiture. Il y a un accès à la nationale N165 à 5 km. Il y a une bibliothèque et deux épiceries à proximité de la maison.
Elle est à vendre pour la somme de 224 500 €.
Contactez Marie LAURENT (02-98-54-75-20) pour tout renseignement sur le bien.
PROCHE DE LORIENT - MAISON 4 PIÈCES NEUVE
À 16 km de la côte atlantique et à deux pas de Lorient, nous vous proposons cette maison de 4 pièces de plain-pied de 70 m² en vente à Tréméven (29300). Son intérieur offre trois chambres, une cuisine et une salle de bains.
Le terrain du bien s'étend sur 448 m².
Cette maison est neuve.
Il y a l'École Primaire Publique Yann-Fanch Kemener à moins de 10 minutes à pied. Côté transports, on trouve la gare Quimperlé à moins de 10 minutes en voiture. Il y a un accès à la… Lire la suite
VENTE : maison F4 (70 m²) à Tréméven
PROCHE DE LORIENT - MAISON 4 PIÈCES NEUVE
À 16 km de la côte atlantique et à deux pas de Lorient, nous vous proposons cette maison de 4 pièces de plain-pied de 70 m² en vente à Tréméven (29300). Son intérieur offre trois chambres, une cuisine et une salle de bains.
Le terrain du bien s'étend sur 448 m².
Cette maison est neuve.
Il y a l'École Primaire Publique Yann-Fanch Kemener à moins de 10 minutes à pied. Côté transports, on trouve la gare Quimperlé à moins de 10 minutes en voiture. Il y a un accès à la nationale N165 à 5 km. Il y a une bibliothèque et deux épiceries à proximité de la maison.
Elle est à vendre pour la somme de 224 500 €.
Contactez Marie LAURENT (02-98-54-75-20) pour tout renseignement sur le bien.
Maisons de l’Avenir, constructeur de maisons individuelles, propose en collaboration avec ses partenaires fonciers, une sélection de terrains constructibles, selon disponibilité, pour la construction de maisons neuves définies par le constructeur, avec un contrat de construction de maison individuelle, dans le cadre de la loi du 19/12/1990. Prix net, hors frais notariés, d'enregistrement et de publicité foncière
Terrain proposé au prix de : 47 000 €
Maison proposée au prix de : 177 500 €
Etiquette énergie : A. Assurances et garanties du constructeur (RC professionnelle, décennale, dommage ouvrage, Garantie de livraison à prix et délai convenu). https://www.maisonsdelavenir.com/mentions-legales/
Localisation
Une maison 100% personnalisable
-
Garage
-
Agencement
-
Revêtements extérieurs
-
Toiture
-
Ouvertures
Nos garanties constructeur
UNE MAISON 100% PERSONNALISÉE
Définir un style architectural (contemporain, moderne, traditionnel) et un plan adapté à votre mode de vie pour mettre en lumière votre projet de construction, tel est notre quotidien !
SERVICE 3 EN 1
Nos conseillers habitat vous accompagnent tout au long de votre projet : Terrain – Maison - Financement, afin de garantir sa réussite et de satisfaire vos exigences !
DES ANNÉES D'EXPÉRIENCES
Depuis 1962, la marque Maisons de l’Avenir inspire confiance et sérénité, une si longue expérience dans la construction de maisons individuelles, c’est un vrai gage de qualité !

















