Prix Maison + Terrain
- À partir de 284 500 €
Référence
- ML2348810_4
Maison personnalisable
- Chambres : 3
- Nombre de pièces : 4
- Surface maison : 100 m²
- Surface terrain : 1277 m²
- Garage/Carport
Performances énergétiques
- Classe énergétique : A
Description
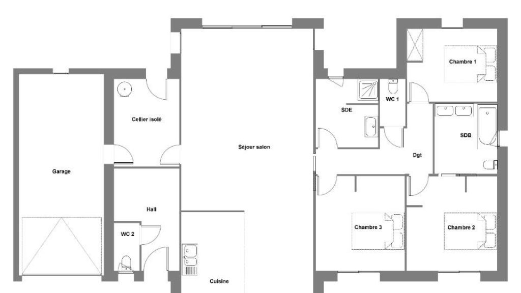
VENTE d'une maison F4 (100 m²) à Tréméven
PROCHE DE LORIENT - MAISON 4 PIÈCES NEUVE
À 16 km de la côte atlantique et à quelques kilomètres de Lorient, Maisons de l'Avenir Quimper vous présente en vente à Tréméven (29300), cette maison de 4 pièces de plain-pied de 100 m².
Son intérieur comporte trois chambres, une cuisine et deux salles de bains. Cette maison est neuve.
Le terrain du bien est de 1 277 m².
On trouve l'École Primaire Publique Yann-Fanch Kemener à moins de 10 minutes à pied. Côté transports, il y a la gare Quimperlé à moins de 10 minutes en voiture. La nationale N165 est accessible à 5 km. On trouve une bibliothèque et deux épiceries à proximité.
Son prix de vente est de 284 500 €.
Contactez notre agence (LAURENT Marie : 02-98-54-75-20) pour toute question sur cette maison ou sur les modalités de vente.
PROCHE DE LORIENT - MAISON 4 PIÈCES NEUVE
À 16 km de la côte atlantique et à quelques kilomètres de Lorient, Maisons de l'Avenir Quimper vous présente en vente à Tréméven (29300), cette maison de 4 pièces de plain-pied de 100 m².
Son intérieur comporte trois chambres, une cuisine et deux salles de bains. Cette maison est neuve.
Le terrain du bien est de 1 277 m².
On trouve l'École Primaire Publique Yann-Fanch Kemener à moins de 10 minutes à pied. Côté transports, il y a la gare Quimperlé à moins de 10 minutes en voiture. La nationale N165… Lire la suite
VENTE d'une maison F4 (100 m²) à Tréméven
PROCHE DE LORIENT - MAISON 4 PIÈCES NEUVE
À 16 km de la côte atlantique et à quelques kilomètres de Lorient, Maisons de l'Avenir Quimper vous présente en vente à Tréméven (29300), cette maison de 4 pièces de plain-pied de 100 m².
Son intérieur comporte trois chambres, une cuisine et deux salles de bains. Cette maison est neuve.
Le terrain du bien est de 1 277 m².
On trouve l'École Primaire Publique Yann-Fanch Kemener à moins de 10 minutes à pied. Côté transports, il y a la gare Quimperlé à moins de 10 minutes en voiture. La nationale N165 est accessible à 5 km. On trouve une bibliothèque et deux épiceries à proximité.
Son prix de vente est de 284 500 €.
Contactez notre agence (LAURENT Marie : 02-98-54-75-20) pour toute question sur cette maison ou sur les modalités de vente.
Maisons de l’Avenir, constructeur de maisons individuelles, propose en collaboration avec ses partenaires fonciers, une sélection de terrains constructibles, selon disponibilité, pour la construction de maisons neuves définies par le constructeur, avec un contrat de construction de maison individuelle, dans le cadre de la loi du 19/12/1990. Prix net, hors frais notariés, d'enregistrement et de publicité foncière
Terrain proposé au prix de : 46 000 €
Maison proposée au prix de : 238 500 €
Etiquette énergie : A. Assurances et garanties du constructeur (RC professionnelle, décennale, dommage ouvrage, Garantie de livraison à prix et délai convenu). https://www.maisonsdelavenir.com/mentions-legales/
Localisation
Une maison 100% personnalisable
-
Garage
-
Agencement
-
Revêtements extérieurs
-
Toiture
-
Ouvertures
Nos garanties constructeur
UNE MAISON 100% PERSONNALISÉE
Définir un style architectural (contemporain, moderne, traditionnel) et un plan adapté à votre mode de vie pour mettre en lumière votre projet de construction, tel est notre quotidien !
SERVICE 3 EN 1
Nos conseillers habitat vous accompagnent tout au long de votre projet : Terrain – Maison - Financement, afin de garantir sa réussite et de satisfaire vos exigences !
DES ANNÉES D'EXPÉRIENCES
Depuis 1962, la marque Maisons de l’Avenir inspire confiance et sérénité, une si longue expérience dans la construction de maisons individuelles, c’est un vrai gage de qualité !















