Prix Maison + Terrain
- À partir de 380 000 €
Référence
- SR2274707_1
Maison personnalisable
- Chambres : 3
- Nombre de pièces : 4
- Surface maison : 124 m²
- Surface terrain : 369 m²
- Garage/Carport
Performances énergétiques
- Classe énergétique : A
Description
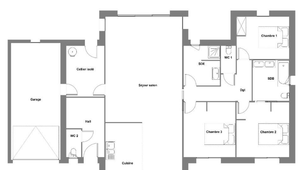
VENTE d'une maison F4 (124 m²) à Trégueux
QUARTIER RECHERCHÉ - MAISON 4 PIÈCES NEUVE
À vendre à 6 km de la Manche et à deux pas de Saint-Brieuc, notre agence Maisons de l'Avenir Saint-Brieuc est ravie de vous présenter, située dans un secteur prisé de Trégueux (22950), cette maison de 4 pièces de plain-pied de 124 m² et de 369 m² de terrain.
Conçue de plain-pied, elle est composée de trois chambres, d'une cuisine et de deux salles de bains. La maison est neuve.
Cette maison est située dans un quartier convoité. L'École Maternelle Publique l'Oiseau Bleu et l'École Primaire Publique Louis Pasteur se trouvent à moins de 10 minutes à pied. Côté transports, il y a les gares Saint-Brieuc, Yffiniac et La Méaugon à moins de 10 minutes en voiture. On trouve un accès à la nationale N12 à 3 km. On trouve une bibliothèque, trois commerces et un bureau de poste à proximité de la maison.
Son prix de vente est de 380 000 €.
N'hésitez pas à prendre contact avec Samuel ROGER (02-96-78-52-58) pour tout renseignement sur la maison, sur les démarches à suivre ou sur les modalités de vente. Concrétisez vos projets immobiliers avec Maisons de l'Avenir Saint-Brieuc.
QUARTIER RECHERCHÉ - MAISON 4 PIÈCES NEUVE
À vendre à 6 km de la Manche et à deux pas de Saint-Brieuc, notre agence Maisons de l'Avenir Saint-Brieuc est ravie de vous présenter, située dans un secteur prisé de Trégueux (22950), cette maison de 4 pièces de plain-pied de 124 m² et de 369 m² de terrain.
Conçue de plain-pied, elle est composée de trois chambres, d'une cuisine et de deux salles de bains. La maison est neuve.
Cette maison est située dans un quartier convoité. L'École Maternelle Publique l'Oiseau Bleu et l'École Primaire Publique Louis Pasteur se trouvent… Lire la suite
VENTE d'une maison F4 (124 m²) à Trégueux
QUARTIER RECHERCHÉ - MAISON 4 PIÈCES NEUVE
À vendre à 6 km de la Manche et à deux pas de Saint-Brieuc, notre agence Maisons de l'Avenir Saint-Brieuc est ravie de vous présenter, située dans un secteur prisé de Trégueux (22950), cette maison de 4 pièces de plain-pied de 124 m² et de 369 m² de terrain.
Conçue de plain-pied, elle est composée de trois chambres, d'une cuisine et de deux salles de bains. La maison est neuve.
Cette maison est située dans un quartier convoité. L'École Maternelle Publique l'Oiseau Bleu et l'École Primaire Publique Louis Pasteur se trouvent à moins de 10 minutes à pied. Côté transports, il y a les gares Saint-Brieuc, Yffiniac et La Méaugon à moins de 10 minutes en voiture. On trouve un accès à la nationale N12 à 3 km. On trouve une bibliothèque, trois commerces et un bureau de poste à proximité de la maison.
Son prix de vente est de 380 000 €.
N'hésitez pas à prendre contact avec Samuel ROGER (02-96-78-52-58) pour tout renseignement sur la maison, sur les démarches à suivre ou sur les modalités de vente. Concrétisez vos projets immobiliers avec Maisons de l'Avenir Saint-Brieuc.
Maisons de l’Avenir, constructeur de maisons individuelles, propose en collaboration avec ses partenaires fonciers, une sélection de terrains constructibles, selon disponibilité, pour la construction de maisons neuves définies par le constructeur, avec un contrat de construction de maison individuelle, dans le cadre de la loi du 19/12/1990. Prix net, hors frais notariés, d'enregistrement et de publicité foncière
Terrain proposé au prix de : 83 000 €
Maison proposée au prix de : 297 000 €
Etiquette énergie : A. Assurances et garanties du constructeur (RC professionnelle, décennale, dommage ouvrage, Garantie de livraison à prix et délai convenu). https://www.maisonsdelavenir.com/mentions-legales/
Localisation
Une maison 100% personnalisable
-
Garage
-
Agencement
-
Revêtements extérieurs
-
Toiture
-
Ouvertures
Nos garanties constructeur
UNE MAISON 100% PERSONNALISÉE
Définir un style architectural (contemporain, moderne, traditionnel) et un plan adapté à votre mode de vie pour mettre en lumière votre projet de construction, tel est notre quotidien !
SERVICE 3 EN 1
Nos conseillers habitat vous accompagnent tout au long de votre projet : Terrain – Maison - Financement, afin de garantir sa réussite et de satisfaire vos exigences !
DES ANNÉES D'EXPÉRIENCES
Depuis 1962, la marque Maisons de l’Avenir inspire confiance et sérénité, une si longue expérience dans la construction de maisons individuelles, c’est un vrai gage de qualité !















