Prix Maison + Terrain
- À partir de 255 000 €
Référence
- ET2323711_3
Maison personnalisable
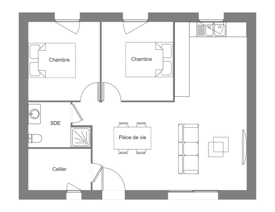
- Chambres : 3
- Nombre de pièces : 4
- Surface maison : 75 m²
- Surface terrain : 403 m²
- Garage/Carport
Performances énergétiques
- Classe énergétique : A
Description
📢 À vendre : Dernier terrain disponible à Tréglonou ! 🌿🏡
Saisissez cette opportunité rare sur la commune de Tréglonou ! Ce magnifique terrain de 403 m², situé dans un petit lotissement, bénéficie d'une belle exposition et d'un cadre idéal pour votre futur projet de construction.
Il s'agit de l'un des derniers terrains disponibles sur la commune, une occasion à ne pas manquer !
🏠 Votre projet clé en main :
Nous proposons les plans d'une maison au style moderne, de 75 m², comprenant :
✔️ 3 chambres
✔️ 1 salles d'eau (douche + baignoire)
✔️ Un vaste espace de vie ouvert de plus de 35 m²
✔️ Un garage pour protéger votre voiture ou offrir un espace de stockage
Cette maison est conçue dans le cadre de nos maisons passives Bati Activ, favorisant les gains énergétiques et l'ensoleillement pour un confort optimal. Les plans sont entièrement modifiables selon vos goûts et envies, tant sur l'esthétique que sur l'architecture.
💡 Prix de l'opération terrain + maison : 255 000 €
Ne laissez pas passer cette opportunité unique ! Contactez dès maintenant Erwan Tilly de Maisons de l'Avenir, pour visiter ce terrain et concrétiser votre projet sur mesure.
Saisissez cette opportunité rare sur la commune de Tréglonou ! Ce magnifique terrain de 403 m², situé dans un petit lotissement, bénéficie d'une belle exposition et d'un cadre idéal pour votre futur projet de construction.
Il s'agit de l'un des derniers terrains disponibles sur la commune, une occasion à ne pas manquer !
🏠 Votre projet clé en main :
Nous proposons les plans d'une maison au style moderne, de 75 m², comprenant :
✔️ 3 chambres
✔️ 1 salles d'eau (douche + baignoire)
✔️ Un vaste espace de vie ouvert de plus de 35 m²
✔️… Lire la suite
📢 À vendre : Dernier terrain disponible à Tréglonou ! 🌿🏡
Saisissez cette opportunité rare sur la commune de Tréglonou ! Ce magnifique terrain de 403 m², situé dans un petit lotissement, bénéficie d'une belle exposition et d'un cadre idéal pour votre futur projet de construction.
Il s'agit de l'un des derniers terrains disponibles sur la commune, une occasion à ne pas manquer !
🏠 Votre projet clé en main :
Nous proposons les plans d'une maison au style moderne, de 75 m², comprenant :
✔️ 3 chambres
✔️ 1 salles d'eau (douche + baignoire)
✔️ Un vaste espace de vie ouvert de plus de 35 m²
✔️ Un garage pour protéger votre voiture ou offrir un espace de stockage
Cette maison est conçue dans le cadre de nos maisons passives Bati Activ, favorisant les gains énergétiques et l'ensoleillement pour un confort optimal. Les plans sont entièrement modifiables selon vos goûts et envies, tant sur l'esthétique que sur l'architecture.
💡 Prix de l'opération terrain + maison : 255 000 €
Ne laissez pas passer cette opportunité unique ! Contactez dès maintenant Erwan Tilly de Maisons de l'Avenir, pour visiter ce terrain et concrétiser votre projet sur mesure.
Maisons de l’Avenir, constructeur de maisons individuelles, propose en collaboration avec ses partenaires fonciers, une sélection de terrains constructibles, selon disponibilité, pour la construction de maisons neuves définies par le constructeur, avec un contrat de construction de maison individuelle, dans le cadre de la loi du 19/12/1990. Prix net, hors frais notariés, d'enregistrement et de publicité foncière
Terrain proposé au prix de : 42 000 €
Maison proposée au prix de : 213 000 €
Etiquette énergie : A. Assurances et garanties du constructeur (RC professionnelle, décennale, dommage ouvrage, Garantie de livraison à prix et délai convenu). https://www.maisonsdelavenir.com/mentions-legales/
Localisation
Une maison 100% personnalisable
-
Garage
-
Agencement
-
Revêtements extérieurs
-
Toiture
-
Ouvertures
Nos garanties constructeur
UNE MAISON 100% PERSONNALISÉE
Définir un style architectural (contemporain, moderne, traditionnel) et un plan adapté à votre mode de vie pour mettre en lumière votre projet de construction, tel est notre quotidien !
SERVICE 3 EN 1
Nos conseillers habitat vous accompagnent tout au long de votre projet : Terrain – Maison - Financement, afin de garantir sa réussite et de satisfaire vos exigences !
DES ANNÉES D'EXPÉRIENCES
Depuis 1962, la marque Maisons de l’Avenir inspire confiance et sérénité, une si longue expérience dans la construction de maisons individuelles, c’est un vrai gage de qualité !

















