Prix Maison + Terrain
- À partir de 388 000 €
Référence
- ET2375056_4
Maison personnalisable
- Chambres : 4
- Nombre de pièces : 5
- Surface maison : 100 m²
- Surface terrain : 800 m²
- Garage/Carport
Performances énergétiques
- Classe énergétique : A
Description
🌿 À VENDRE - Terrain constructible de 800 m² à Trébabu, proche du Conquet
Découvrez ce magnifique terrain de 800 m², idéalement situé sur la commune de Trébabu, à seulement quelques minutes du Conquet.
Issu d'un petit lotissement intimiste, ce terrain bénéficie d'un cadre arboré, situé en impasse, offrant calme et sérénité pour votre futur projet de vie.
🏡 Notre proposition de maison sur ce terrain :
Maisons de l'Avenir vous propose une maison sur mesure, entièrement personnalisable selon vos besoins et votre mode de vie.
Cette habitation conjugue modernité, confort et performance énergétique.
Pensée dans le cadre du concept Bâti Activ, cette maison passive est étudiée pour profiter pleinement de l'ensoleillement naturel, favorisant ainsi des gains énergétiques notables au quotidien.
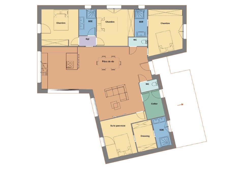
Cette maison plein pied contemporaine comprend :
3 chambres,
2 salles de bains,
un vaste espace de vie lumineux de plus de 55 m²,
un cellier/buanderie,
ainsi qu'un garage accolé à la maison.
Selon vos envies, elle peut être réalisée avec une façade bois chaleureuse ou une finition enduite plus traditionnelle.
💰 Prix de l'ensemble Terrain + Maison : 388 000 €
📞 Intéressé ?
Contactez Erwan TILLY - Maisons de l'Avenir pour obtenir plus d'informations, organiser une visite du terrain et concevoir ensemble votre futur projet sur mesure.
Découvrez ce magnifique terrain de 800 m², idéalement situé sur la commune de Trébabu, à seulement quelques minutes du Conquet.
Issu d'un petit lotissement intimiste, ce terrain bénéficie d'un cadre arboré, situé en impasse, offrant calme et sérénité pour votre futur projet de vie.
🏡 Notre proposition de maison sur ce terrain :
Maisons de l'Avenir vous propose une maison sur mesure, entièrement personnalisable selon vos besoins et votre mode de vie.
Cette habitation conjugue modernité, confort et performance énergétique.
Pensée dans le cadre du concept Bâti Activ, cette maison passive est… Lire la suite
🌿 À VENDRE - Terrain constructible de 800 m² à Trébabu, proche du Conquet
Découvrez ce magnifique terrain de 800 m², idéalement situé sur la commune de Trébabu, à seulement quelques minutes du Conquet.
Issu d'un petit lotissement intimiste, ce terrain bénéficie d'un cadre arboré, situé en impasse, offrant calme et sérénité pour votre futur projet de vie.
🏡 Notre proposition de maison sur ce terrain :
Maisons de l'Avenir vous propose une maison sur mesure, entièrement personnalisable selon vos besoins et votre mode de vie.
Cette habitation conjugue modernité, confort et performance énergétique.
Pensée dans le cadre du concept Bâti Activ, cette maison passive est étudiée pour profiter pleinement de l'ensoleillement naturel, favorisant ainsi des gains énergétiques notables au quotidien.
Cette maison plein pied contemporaine comprend :
3 chambres,
2 salles de bains,
un vaste espace de vie lumineux de plus de 55 m²,
un cellier/buanderie,
ainsi qu'un garage accolé à la maison.
Selon vos envies, elle peut être réalisée avec une façade bois chaleureuse ou une finition enduite plus traditionnelle.
💰 Prix de l'ensemble Terrain + Maison : 388 000 €
📞 Intéressé ?
Contactez Erwan TILLY - Maisons de l'Avenir pour obtenir plus d'informations, organiser une visite du terrain et concevoir ensemble votre futur projet sur mesure.
Maisons de l’Avenir, constructeur de maisons individuelles, propose en collaboration avec ses partenaires fonciers, une sélection de terrains constructibles, selon disponibilité, pour la construction de maisons neuves définies par le constructeur, avec un contrat de construction de maison individuelle, dans le cadre de la loi du 19/12/1990. Prix net, hors frais notariés, d'enregistrement et de publicité foncière
Terrain proposé au prix de : 136 000 €
Maison proposée au prix de : 252 000 €
Etiquette énergie : A. Assurances et garanties du constructeur (RC professionnelle, décennale, dommage ouvrage, Garantie de livraison à prix et délai convenu). https://www.maisonsdelavenir.com/mentions-legales/
Localisation
Une maison 100% personnalisable
-
Garage
-
Agencement
-
Revêtements extérieurs
-
Toiture
-
Ouvertures
Nos garanties constructeur
UNE MAISON 100% PERSONNALISÉE
Définir un style architectural (contemporain, moderne, traditionnel) et un plan adapté à votre mode de vie pour mettre en lumière votre projet de construction, tel est notre quotidien !
SERVICE 3 EN 1
Nos conseillers habitat vous accompagnent tout au long de votre projet : Terrain – Maison - Financement, afin de garantir sa réussite et de satisfaire vos exigences !
DES ANNÉES D'EXPÉRIENCES
Depuis 1962, la marque Maisons de l’Avenir inspire confiance et sérénité, une si longue expérience dans la construction de maisons individuelles, c’est un vrai gage de qualité !

















