Prix Maison + Terrain
- À partir de 227 200 €
Référence
- DM2327347_2
Maison personnalisable
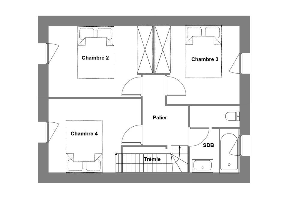
- Chambres : 4
- Nombre de pièces : 5
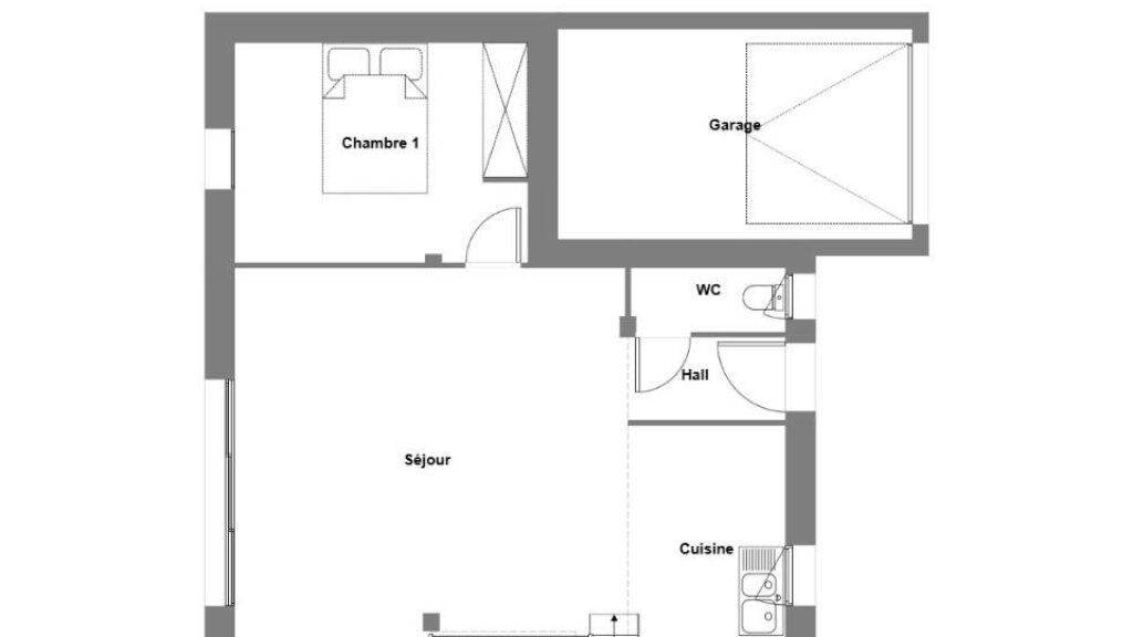
- Surface maison : 88 m²
- Surface terrain : 212 m²
- Garage/Carport
Performances énergétiques
- Classe énergétique : A
Description
Maison T5 (88 m²) en vente à Tinténiac
IDÉALEMENT SITUÉE - MAISON 5 PIÈCES NEUVE
À vendre à 25 km de la Manche et à quelques kilomètres de Rennes, votre agence Maisons de l'Avenir Cesson-Sévigné est ravie de vous proposer, idéalement située dans Tinténiac (35190), cette maison de 5 pièces de 88 m².
C'est une maison de 2 niveaux. Son intérieur est composé de quatre chambres, d'une cuisine et d'une salle de bains. La maison est neuve.
Le terrain de la propriété est de 212 m².
Cette propriété se trouve dans un quartier convoité. Des écoles du primaire et du secondaire sont implantées à moins de 10 minutes à pied. Il y a un accès à la nationale N12 à 18 km. Il y a deux tennis, des commerces, deux boulangeries, une supérette, une boucherie-charcuterie et un bureau de poste dans les environs. Le marché Place André Ferré anime les environs chaque mercredi matin.
Son prix de vente est de 227 200 €.
Contactez Dimitri MESAS (02-99-83-07-20) pour obtenir de plus amples informations sur la maison, sur les démarches à suivre ou sur les modalités de vente.
IDÉALEMENT SITUÉE - MAISON 5 PIÈCES NEUVE
À vendre à 25 km de la Manche et à quelques kilomètres de Rennes, votre agence Maisons de l'Avenir Cesson-Sévigné est ravie de vous proposer, idéalement située dans Tinténiac (35190), cette maison de 5 pièces de 88 m².
C'est une maison de 2 niveaux. Son intérieur est composé de quatre chambres, d'une cuisine et d'une salle de bains. La maison est neuve.
Le terrain de la propriété est de 212 m².
Cette propriété se trouve dans un quartier convoité. Des écoles du primaire et du secondaire sont implantées à moins de 10… Lire la suite
Maison T5 (88 m²) en vente à Tinténiac
IDÉALEMENT SITUÉE - MAISON 5 PIÈCES NEUVE
À vendre à 25 km de la Manche et à quelques kilomètres de Rennes, votre agence Maisons de l'Avenir Cesson-Sévigné est ravie de vous proposer, idéalement située dans Tinténiac (35190), cette maison de 5 pièces de 88 m².
C'est une maison de 2 niveaux. Son intérieur est composé de quatre chambres, d'une cuisine et d'une salle de bains. La maison est neuve.
Le terrain de la propriété est de 212 m².
Cette propriété se trouve dans un quartier convoité. Des écoles du primaire et du secondaire sont implantées à moins de 10 minutes à pied. Il y a un accès à la nationale N12 à 18 km. Il y a deux tennis, des commerces, deux boulangeries, une supérette, une boucherie-charcuterie et un bureau de poste dans les environs. Le marché Place André Ferré anime les environs chaque mercredi matin.
Son prix de vente est de 227 200 €.
Contactez Dimitri MESAS (02-99-83-07-20) pour obtenir de plus amples informations sur la maison, sur les démarches à suivre ou sur les modalités de vente.
Maisons de l’Avenir, constructeur de maisons individuelles, propose en collaboration avec ses partenaires fonciers, une sélection de terrains constructibles, selon disponibilité, pour la construction de maisons neuves définies par le constructeur, avec un contrat de construction de maison individuelle, dans le cadre de la loi du 19/12/1990. Prix net, hors frais notariés, d'enregistrement et de publicité foncière
Terrain proposé au prix de : 45 000 €
Maison proposée au prix de : 182 200 €
Etiquette énergie : A. Assurances et garanties du constructeur (RC professionnelle, décennale, dommage ouvrage, Garantie de livraison à prix et délai convenu). https://www.maisonsdelavenir.com/mentions-legales/
Localisation
Une maison 100% personnalisable
-
Garage
-
Agencement
-
Revêtements extérieurs
-
Toiture
-
Ouvertures
Nos garanties constructeur
UNE MAISON 100% PERSONNALISÉE
Définir un style architectural (contemporain, moderne, traditionnel) et un plan adapté à votre mode de vie pour mettre en lumière votre projet de construction, tel est notre quotidien !
SERVICE 3 EN 1
Nos conseillers habitat vous accompagnent tout au long de votre projet : Terrain – Maison - Financement, afin de garantir sa réussite et de satisfaire vos exigences !
DES ANNÉES D'EXPÉRIENCES
Depuis 1962, la marque Maisons de l’Avenir inspire confiance et sérénité, une si longue expérience dans la construction de maisons individuelles, c’est un vrai gage de qualité !























