Maison à construire de 187m² (5 chambres) sur un terrain de 697m² à Santec (29250)

2340264-5377modele620200626wonNA.jpeg
Nous contacter
  • Prix Maison + Terrain

    • À partir de 534 140 €
  • Référence

    • AC2340251_3
  • Maison personnalisable

    • Chambres : 5
    • Nombre de pièces : 6
    • Surface maison : 187 m²
    • Surface terrain : 697 m²
    • Garage/Carport
  • Performances énergétiques

    • Classe énergétique : A

Description

Santec : maison de 6 pièces en vente
Cette belle maison traditionnelle aux lignes contemporaines offre 187m² habitable .
Au rez-de-chaussée, elle dispose d'une belle pièce de vie offrant un maximum de lumière, d'une grande suite parentale avec sa salle d'eau, d'un wc, d'un très grand cellier et son garage.
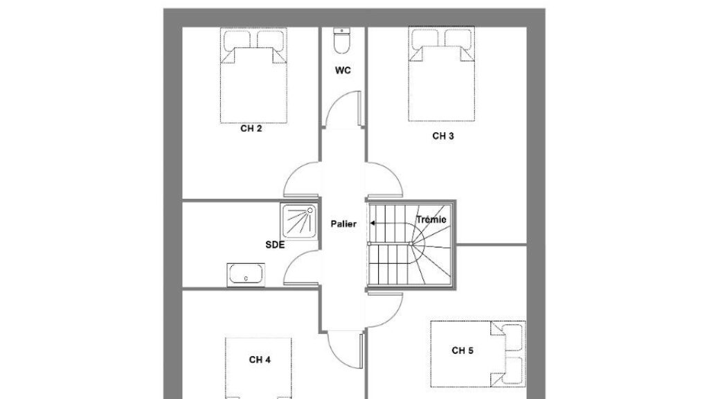
A l'étage on retrouve 4 chambres et une salle de bain. L'orientation de cette maison vous permettra de bénéficier d'un maximum de lumière et de chaleur naturelle pour davantage d'économies et de douceur de vivre.
Aux normes RE2020, peu énergivore, elle vous ravira par son confort de vie.
Elle est à vendre pour la somme de 534 140 €.
Contactez notre agence pour toute question sur cette maison. Concrétisez vos projets immobiliers avec Maisons de l'Avenir Guipavas.

Masquer
Santec : maison de 6 pièces en vente
Cette belle maison traditionnelle aux lignes contemporaines offre 187m² habitable .
Au rez-de-chaussée, elle dispose d'une belle pièce de vie offrant un maximum de lumière, d'une grande suite parentale avec sa salle d'eau, d'un wc, d'un très grand cellier et son garage.
A l'étage on retrouve 4 chambres et une salle de bain. L'orientation de cette maison vous permettra de bénéficier d'un maximum de lumière et de chaleur naturelle pour davantage d'économies et de douceur de vivre.
Aux normes RE2020, peu énergivore, elle vous ravira par son confort de vie.
Elle est à vendre pour la… Lire la suite

Santec : maison de 6 pièces en vente
Cette belle maison traditionnelle aux lignes contemporaines offre 187m² habitable .
Au rez-de-chaussée, elle dispose d'une belle pièce de vie offrant un maximum de lumière, d'une grande suite parentale avec sa salle d'eau, d'un wc, d'un très grand cellier et son garage.
A l'étage on retrouve 4 chambres et une salle de bain. L'orientation de cette maison vous permettra de bénéficier d'un maximum de lumière et de chaleur naturelle pour davantage d'économies et de douceur de vivre.
Aux normes RE2020, peu énergivore, elle vous ravira par son confort de vie.
Elle est à vendre pour la somme de 534 140 €.
Contactez notre agence pour toute question sur cette maison. Concrétisez vos projets immobiliers avec Maisons de l'Avenir Guipavas.

Localisation

Une maison 100% personnalisable

  • Garage

  • Agencement

  • Revêtements extérieurs

  • Toiture

  • Ouvertures

Nos garanties constructeur

UNE MAISON 100% PERSONNALISÉE

Définir un style architectural (contemporain, moderne, traditionnel) et un plan adapté à votre mode de vie pour mettre en lumière votre projet de construction, tel est notre quotidien !

SERVICE 3 EN 1

Nos conseillers habitat vous accompagnent tout au long de votre projet : Terrain – Maison - Financement, afin de garantir sa réussite et de satisfaire vos exigences !

DES ANNÉES D'EXPÉRIENCES

Depuis 1962, la marque Maisons de l’Avenir inspire confiance et sérénité, une si longue expérience dans la construction de maisons individuelles, c’est un vrai gage de qualité !