Prix Maison + Terrain
- À partir de 211 000 €
Référence
- GC2276457_1
Maison personnalisable
- Chambres : 4
- Nombre de pièces : 5
- Surface maison : 91 m²
- Surface terrain : 220 m²
- Garage/Carport
Performances énergétiques
- Classe énergétique : A
Description
Saint-Marcel : maison T5 (91 m²) en vente
EMPLACEMENT PRIVILÉGIÉ - MAISON 5 PIÈCES NEUVE
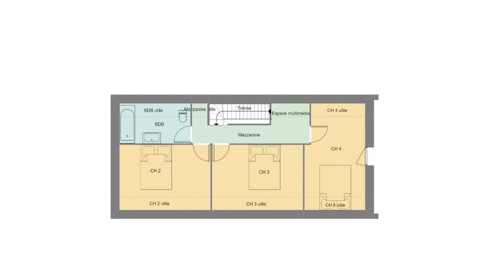
En vente : localisée à 32 km de la côte atlantique et à deux pas de Vannes, nous sommes ravis de vous proposer cette maison de 5 pièces de 91 m² et de 220 m² de terrain bénéficiant d'un emplacement privilégié dans Saint-Marcel (56140). Son intérieur inclut quatre chambres, une cuisine et deux salles de bains.
Cette maison possède 2 niveaux. Elle est neuve.
Cette maison se situe dans un secteur attractif. L'École Primaire Privée Sainte Thérèse se trouve à moins de 300m. On trouve un accès à la nationale N166 à 3 km.
Elle est à vendre pour la somme de 211 000 €.
Contactez notre agence (Germain CHARUEL : 02-97-68-32-50) pour plus de renseignements sur la maison ou sur les démarches à suivre. Maisons de l'Avenir Vannes vous accompagne dans tous vos projets immobiliers et à toutes les étapes de l'achat.
EMPLACEMENT PRIVILÉGIÉ - MAISON 5 PIÈCES NEUVE
En vente : localisée à 32 km de la côte atlantique et à deux pas de Vannes, nous sommes ravis de vous proposer cette maison de 5 pièces de 91 m² et de 220 m² de terrain bénéficiant d'un emplacement privilégié dans Saint-Marcel (56140). Son intérieur inclut quatre chambres, une cuisine et deux salles de bains.
Cette maison possède 2 niveaux. Elle est neuve.
Cette maison se situe dans un secteur attractif. L'École Primaire Privée Sainte Thérèse se trouve à moins de 300m. On trouve un accès à la nationale N166… Lire la suite
Saint-Marcel : maison T5 (91 m²) en vente
EMPLACEMENT PRIVILÉGIÉ - MAISON 5 PIÈCES NEUVE
En vente : localisée à 32 km de la côte atlantique et à deux pas de Vannes, nous sommes ravis de vous proposer cette maison de 5 pièces de 91 m² et de 220 m² de terrain bénéficiant d'un emplacement privilégié dans Saint-Marcel (56140). Son intérieur inclut quatre chambres, une cuisine et deux salles de bains.
Cette maison possède 2 niveaux. Elle est neuve.
Cette maison se situe dans un secteur attractif. L'École Primaire Privée Sainte Thérèse se trouve à moins de 300m. On trouve un accès à la nationale N166 à 3 km.
Elle est à vendre pour la somme de 211 000 €.
Contactez notre agence (Germain CHARUEL : 02-97-68-32-50) pour plus de renseignements sur la maison ou sur les démarches à suivre. Maisons de l'Avenir Vannes vous accompagne dans tous vos projets immobiliers et à toutes les étapes de l'achat.
Maisons de l’Avenir, constructeur de maisons individuelles, propose en collaboration avec ses partenaires fonciers, une sélection de terrains constructibles, selon disponibilité, pour la construction de maisons neuves définies par le constructeur, avec un contrat de construction de maison individuelle, dans le cadre de la loi du 19/12/1990. Prix net, hors frais notariés, d'enregistrement et de publicité foncière
Terrain proposé au prix de : 20 000 €
Maison proposée au prix de : 191 000 €
Etiquette énergie : A. Assurances et garanties du constructeur (RC professionnelle, décennale, dommage ouvrage, Garantie de livraison à prix et délai convenu). https://www.maisonsdelavenir.com/mentions-legales/
Localisation
Une maison 100% personnalisable
-
Garage
-
Agencement
-
Revêtements extérieurs
-
Toiture
-
Ouvertures
Nos garanties constructeur
UNE MAISON 100% PERSONNALISÉE
Définir un style architectural (contemporain, moderne, traditionnel) et un plan adapté à votre mode de vie pour mettre en lumière votre projet de construction, tel est notre quotidien !
SERVICE 3 EN 1
Nos conseillers habitat vous accompagnent tout au long de votre projet : Terrain – Maison - Financement, afin de garantir sa réussite et de satisfaire vos exigences !
DES ANNÉES D'EXPÉRIENCES
Depuis 1962, la marque Maisons de l’Avenir inspire confiance et sérénité, une si longue expérience dans la construction de maisons individuelles, c’est un vrai gage de qualité !



















