Prix Maison + Terrain
- À partir de 217 800 €
Référence
- GC2276457_4
Maison personnalisable
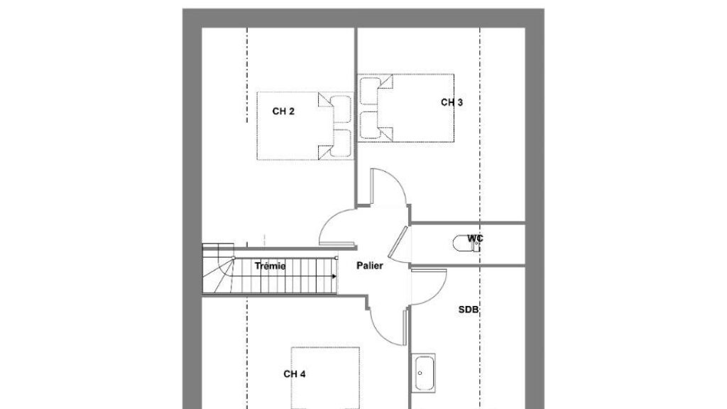
- Chambres : 3
- Nombre de pièces : 4
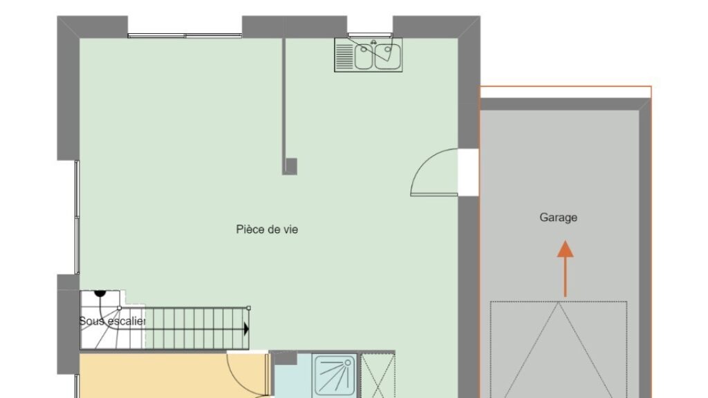
- Surface maison : 89 m²
- Surface terrain : 220 m²
- Garage/Carport
Performances énergétiques
- Classe énergétique : A
Description
VENTE : maison T4 (89 m²) à Saint-Marcel
EMPLACEMENT PRIVILÉGIÉ - MAISON 4 PIÈCES NEUVE
À vendre : à 32 km de l'océan Atlantique et à 30 km de Vannes, nous sommes ravis de vous présenter, bénéficiant d'un emplacement privilégié dans Saint-Marcel (56140), cette maison de 4 pièces de 89 m² et de 220 m² de terrain.
Cette maison compte 2 niveaux. Son intérieur compte trois chambres, une cuisine et deux salles de bains. Cette maison est neuve.
La maison est située dans un quartier attractif. L'École Primaire Privée Sainte Thérèse est implantée à moins de 300 m à pied. La nationale N166 est accessible à 3 km.
Elle est proposée à l'achat pour 217 800 €.
N'hésitez pas à prendre contact avec Germain CHARUEL (tél : 02-97-68-32-50) pour toute question sur le bien ou sur les démarches à suivre.
EMPLACEMENT PRIVILÉGIÉ - MAISON 4 PIÈCES NEUVE
À vendre : à 32 km de l'océan Atlantique et à 30 km de Vannes, nous sommes ravis de vous présenter, bénéficiant d'un emplacement privilégié dans Saint-Marcel (56140), cette maison de 4 pièces de 89 m² et de 220 m² de terrain.
Cette maison compte 2 niveaux. Son intérieur compte trois chambres, une cuisine et deux salles de bains. Cette maison est neuve.
La maison est située dans un quartier attractif. L'École Primaire Privée Sainte Thérèse est implantée à moins de 300 m à pied. La nationale N166 est accessible à… Lire la suite
VENTE : maison T4 (89 m²) à Saint-Marcel
EMPLACEMENT PRIVILÉGIÉ - MAISON 4 PIÈCES NEUVE
À vendre : à 32 km de l'océan Atlantique et à 30 km de Vannes, nous sommes ravis de vous présenter, bénéficiant d'un emplacement privilégié dans Saint-Marcel (56140), cette maison de 4 pièces de 89 m² et de 220 m² de terrain.
Cette maison compte 2 niveaux. Son intérieur compte trois chambres, une cuisine et deux salles de bains. Cette maison est neuve.
La maison est située dans un quartier attractif. L'École Primaire Privée Sainte Thérèse est implantée à moins de 300 m à pied. La nationale N166 est accessible à 3 km.
Elle est proposée à l'achat pour 217 800 €.
N'hésitez pas à prendre contact avec Germain CHARUEL (tél : 02-97-68-32-50) pour toute question sur le bien ou sur les démarches à suivre.
Maisons de l’Avenir, constructeur de maisons individuelles, propose en collaboration avec ses partenaires fonciers, une sélection de terrains constructibles, selon disponibilité, pour la construction de maisons neuves définies par le constructeur, avec un contrat de construction de maison individuelle, dans le cadre de la loi du 19/12/1990. Prix net, hors frais notariés, d'enregistrement et de publicité foncière
Terrain proposé au prix de : 20 000 €
Maison proposée au prix de : 197 800 €
Etiquette énergie : A. Assurances et garanties du constructeur (RC professionnelle, décennale, dommage ouvrage, Garantie de livraison à prix et délai convenu). https://www.maisonsdelavenir.com/mentions-legales/
Localisation
Une maison 100% personnalisable
-
Garage
-
Agencement
-
Revêtements extérieurs
-
Toiture
-
Ouvertures
Nos garanties constructeur
UNE MAISON 100% PERSONNALISÉE
Définir un style architectural (contemporain, moderne, traditionnel) et un plan adapté à votre mode de vie pour mettre en lumière votre projet de construction, tel est notre quotidien !
SERVICE 3 EN 1
Nos conseillers habitat vous accompagnent tout au long de votre projet : Terrain – Maison - Financement, afin de garantir sa réussite et de satisfaire vos exigences !
DES ANNÉES D'EXPÉRIENCES
Depuis 1962, la marque Maisons de l’Avenir inspire confiance et sérénité, une si longue expérience dans la construction de maisons individuelles, c’est un vrai gage de qualité !



















