Prix Maison + Terrain
- À partir de 450 000 €
Référence
- DM2363477_2
Maison personnalisable
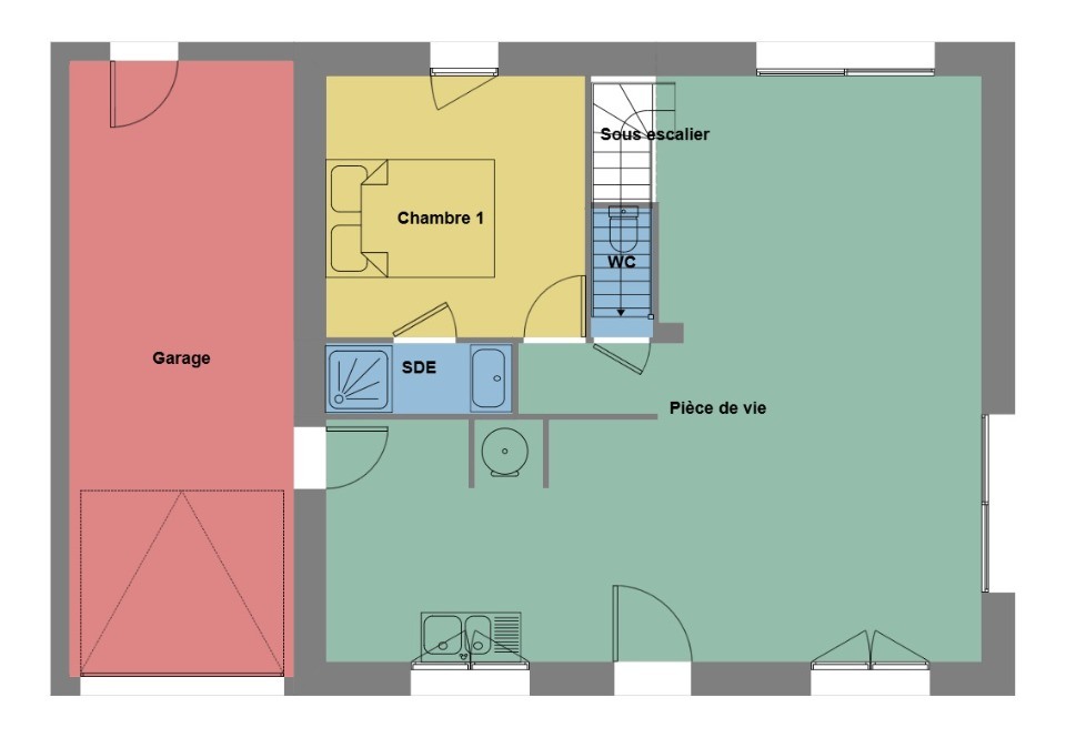
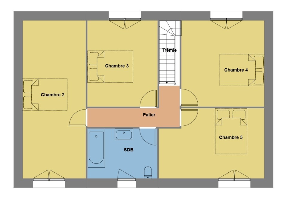
- Chambres : 5
- Nombre de pièces : 6
- Surface maison : 119 m²
- Surface terrain : 238 m²
- Garage/Carport
Performances énergétiques
- Classe énergétique : A
Description
Maison de 6 pièces (119 m²) en vente à Saint-Malo
IDÉALEMENT SITUÉE - MAISON 6 PIÈCES NEUVE
En vente : à 4 km de la Manche, venez découvrir cette maison de 6 pièces de 119 m² et de 238 m² de terrain idéalement située dans Saint-Malo (35400).
Il s'agit d'une maison de 2 niveaux. Son intérieur offre cinq chambres, une cuisine et deux salles de bains. Cette maison est neuve.
La maison se trouve dans un secteur convoité. On y trouve tous les types d'établissements scolaires (maternelle, élémentaire et secondaire). Niveau transports, il y a deux gares (Saint-Malo et La Gouesnière-Cancale-Saint-Méloir-des-Ondes) à moins de 10 minutes en voiture. Il y a un accès à la nationale N176 à 11 km. On trouve une bibliothèque, des commerces, deux boulangeries, un bureau de poste et une épicerie dans les environs.
Elle est proposée à l'achat pour 450 000 €.
Contactez notre agence (MESAS Dimitri : 02-99-83-07-20) pour obtenir de plus amples renseignements sur la propriété, sur les modalités de vente ou sur les démarches à suivre. Faites de vos projets immobiliers une réalité avec Maisons de l'Avenir Cesson-Sévigné.
IDÉALEMENT SITUÉE - MAISON 6 PIÈCES NEUVE
En vente : à 4 km de la Manche, venez découvrir cette maison de 6 pièces de 119 m² et de 238 m² de terrain idéalement située dans Saint-Malo (35400).
Il s'agit d'une maison de 2 niveaux. Son intérieur offre cinq chambres, une cuisine et deux salles de bains. Cette maison est neuve.
La maison se trouve dans un secteur convoité. On y trouve tous les types d'établissements scolaires (maternelle, élémentaire et secondaire). Niveau transports, il y a deux gares (Saint-Malo et La Gouesnière-Cancale-Saint-Méloir-des-Ondes) à moins de 10 minutes… Lire la suite
Maison de 6 pièces (119 m²) en vente à Saint-Malo
IDÉALEMENT SITUÉE - MAISON 6 PIÈCES NEUVE
En vente : à 4 km de la Manche, venez découvrir cette maison de 6 pièces de 119 m² et de 238 m² de terrain idéalement située dans Saint-Malo (35400).
Il s'agit d'une maison de 2 niveaux. Son intérieur offre cinq chambres, une cuisine et deux salles de bains. Cette maison est neuve.
La maison se trouve dans un secteur convoité. On y trouve tous les types d'établissements scolaires (maternelle, élémentaire et secondaire). Niveau transports, il y a deux gares (Saint-Malo et La Gouesnière-Cancale-Saint-Méloir-des-Ondes) à moins de 10 minutes en voiture. Il y a un accès à la nationale N176 à 11 km. On trouve une bibliothèque, des commerces, deux boulangeries, un bureau de poste et une épicerie dans les environs.
Elle est proposée à l'achat pour 450 000 €.
Contactez notre agence (MESAS Dimitri : 02-99-83-07-20) pour obtenir de plus amples renseignements sur la propriété, sur les modalités de vente ou sur les démarches à suivre. Faites de vos projets immobiliers une réalité avec Maisons de l'Avenir Cesson-Sévigné.
Maisons de l’Avenir, constructeur de maisons individuelles, propose en collaboration avec ses partenaires fonciers, une sélection de terrains constructibles, selon disponibilité, pour la construction de maisons neuves définies par le constructeur, avec un contrat de construction de maison individuelle, dans le cadre de la loi du 19/12/1990. Prix net, hors frais notariés, d'enregistrement et de publicité foncière
Terrain proposé au prix de : 230 000 €
Maison proposée au prix de : 220 000 €
Etiquette énergie : A. Assurances et garanties du constructeur (RC professionnelle, décennale, dommage ouvrage, Garantie de livraison à prix et délai convenu). https://www.maisonsdelavenir.com/mentions-legales/
Localisation
Une maison 100% personnalisable
-
Garage
-
Agencement
-
Revêtements extérieurs
-
Toiture
-
Ouvertures
Nos garanties constructeur
UNE MAISON 100% PERSONNALISÉE
Définir un style architectural (contemporain, moderne, traditionnel) et un plan adapté à votre mode de vie pour mettre en lumière votre projet de construction, tel est notre quotidien !
SERVICE 3 EN 1
Nos conseillers habitat vous accompagnent tout au long de votre projet : Terrain – Maison - Financement, afin de garantir sa réussite et de satisfaire vos exigences !
DES ANNÉES D'EXPÉRIENCES
Depuis 1962, la marque Maisons de l’Avenir inspire confiance et sérénité, une si longue expérience dans la construction de maisons individuelles, c’est un vrai gage de qualité !



















