Prix Maison + Terrain
- À partir de 303 500 €
Référence
- PAB2339993_3
Maison personnalisable
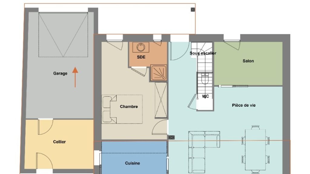
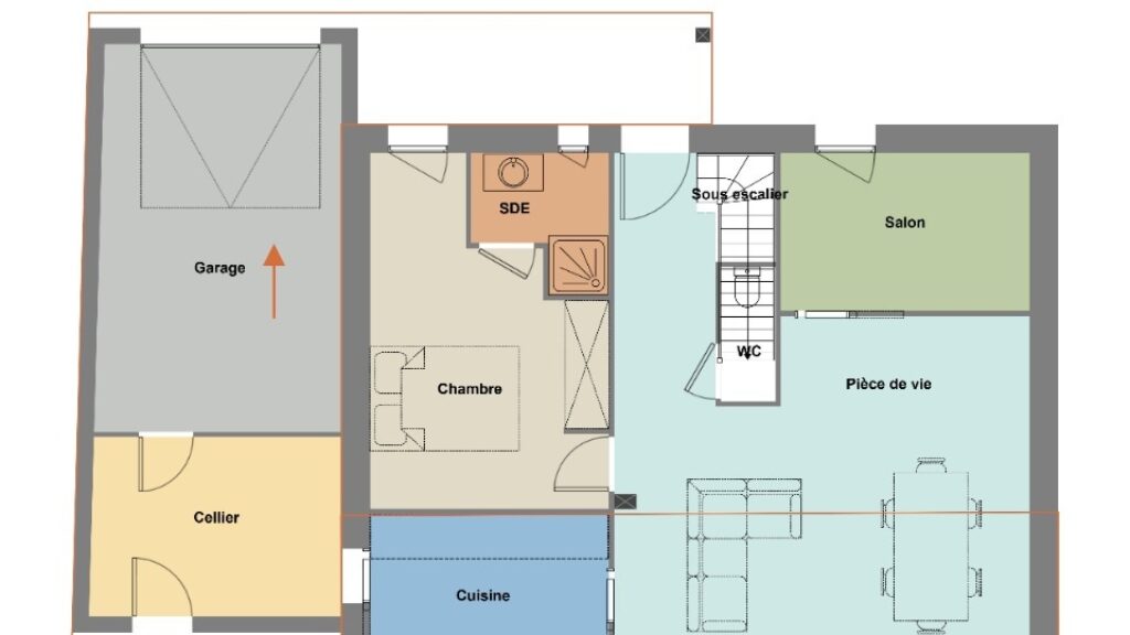
- Chambres : 3
- Nombre de pièces : 5
- Surface maison : 90 m²
- Surface terrain : 353 m²
- Garage/Carport
Performances énergétiques
- Classe énergétique : A
Description
VENTE : maison T5 (90 m²) à Divatte-Sur-Loire
EMPLACEMENT PRIVILÉGIÉ - MAISON 5 PIÈCES NEUVE
À vendre à 42 km de l'océan Atlantique et à deux pas de Nantes, Maisons de l'Avenir Rezé vous présente cette maison de 5 pièces de 90 m² et de 353 m² de terrain bénéficiant d'un emplacement d'exception dans Divatte-Sur-Loire (44450).
Cette maison possède 2 niveaux. Son intérieur compte trois chambres, une cuisine et deux salles de bains. La maison est neuve.
La maison se situe dans un secteur attractif. Des établissements scolaires maternelles et élémentaires y sont implantés. Niveau transports, on trouve quatre gares à moins de 10 minutes en voiture. Les autoroutes A11 et A811 et les nationales N249 et N844 sont accessibles à moins de 10 km. Il y a un commerce à quelques minutes.
Son prix de vente est de 303 500 €.
Contactez notre agence (Pierre Antoine BURILLE : 02-40-26-28-28) pour toute question sur la maison ou sur les démarches à suivre. Faites de vos projets immobiliers une réalité avec Maisons de l'Avenir Rezé.
EMPLACEMENT PRIVILÉGIÉ - MAISON 5 PIÈCES NEUVE
À vendre à 42 km de l'océan Atlantique et à deux pas de Nantes, Maisons de l'Avenir Rezé vous présente cette maison de 5 pièces de 90 m² et de 353 m² de terrain bénéficiant d'un emplacement d'exception dans Divatte-Sur-Loire (44450).
Cette maison possède 2 niveaux. Son intérieur compte trois chambres, une cuisine et deux salles de bains. La maison est neuve.
La maison se situe dans un secteur attractif. Des établissements scolaires maternelles et élémentaires y sont implantés. Niveau transports, on trouve quatre gares à moins de 10 minutes en… Lire la suite
VENTE : maison T5 (90 m²) à Divatte-Sur-Loire
EMPLACEMENT PRIVILÉGIÉ - MAISON 5 PIÈCES NEUVE
À vendre à 42 km de l'océan Atlantique et à deux pas de Nantes, Maisons de l'Avenir Rezé vous présente cette maison de 5 pièces de 90 m² et de 353 m² de terrain bénéficiant d'un emplacement d'exception dans Divatte-Sur-Loire (44450).
Cette maison possède 2 niveaux. Son intérieur compte trois chambres, une cuisine et deux salles de bains. La maison est neuve.
La maison se situe dans un secteur attractif. Des établissements scolaires maternelles et élémentaires y sont implantés. Niveau transports, on trouve quatre gares à moins de 10 minutes en voiture. Les autoroutes A11 et A811 et les nationales N249 et N844 sont accessibles à moins de 10 km. Il y a un commerce à quelques minutes.
Son prix de vente est de 303 500 €.
Contactez notre agence (Pierre Antoine BURILLE : 02-40-26-28-28) pour toute question sur la maison ou sur les démarches à suivre. Faites de vos projets immobiliers une réalité avec Maisons de l'Avenir Rezé.
Maisons de l’Avenir, constructeur de maisons individuelles, propose en collaboration avec ses partenaires fonciers, une sélection de terrains constructibles, selon disponibilité, pour la construction de maisons neuves définies par le constructeur, avec un contrat de construction de maison individuelle, dans le cadre de la loi du 19/12/1990. Prix net, hors frais notariés, d'enregistrement et de publicité foncière
Terrain proposé au prix de : 108 500 €
Maison proposée au prix de : 195 000 €
Etiquette énergie : A. Assurances et garanties du constructeur (RC professionnelle, décennale, dommage ouvrage, Garantie de livraison à prix et délai convenu). https://www.maisonsdelavenir.com/mentions-legales/
Localisation
Une maison 100% personnalisable
-
Garage
-
Agencement
-
Revêtements extérieurs
-
Toiture
-
Ouvertures
Nos garanties constructeur
UNE MAISON 100% PERSONNALISÉE
Définir un style architectural (contemporain, moderne, traditionnel) et un plan adapté à votre mode de vie pour mettre en lumière votre projet de construction, tel est notre quotidien !
SERVICE 3 EN 1
Nos conseillers habitat vous accompagnent tout au long de votre projet : Terrain – Maison - Financement, afin de garantir sa réussite et de satisfaire vos exigences !
DES ANNÉES D'EXPÉRIENCES
Depuis 1962, la marque Maisons de l’Avenir inspire confiance et sérénité, une si longue expérience dans la construction de maisons individuelles, c’est un vrai gage de qualité !











