 Nous contacter
 Nous contacter- Prix Maison + Terrain- À partir de 232 300 €
 
- Référence- LA2321054_3
 
- Maison personnalisable- Chambres : 4
- Nombre de pièces : 5
- Surface maison : 89 m²
- Surface terrain : 265 m²
- Garage/Carport
 
- Performances énergétiques- Classe énergétique : A
 
Description
VENTE : maison de 5 pièces (89 m²) à Saint-Guinoux
EMPLACEMENT PRIVILÉGIÉ - MAISON 5 PIÈCES NEUVE
En vente : située à 7 km de la Manche et à deux pas de Saint-Malo, venez découvrir, bénéficiant d'un emplacement d'exception dans Saint-Guinoux (35430), cette maison de 5 pièces de 89 m² et de 265 m² de terrain.
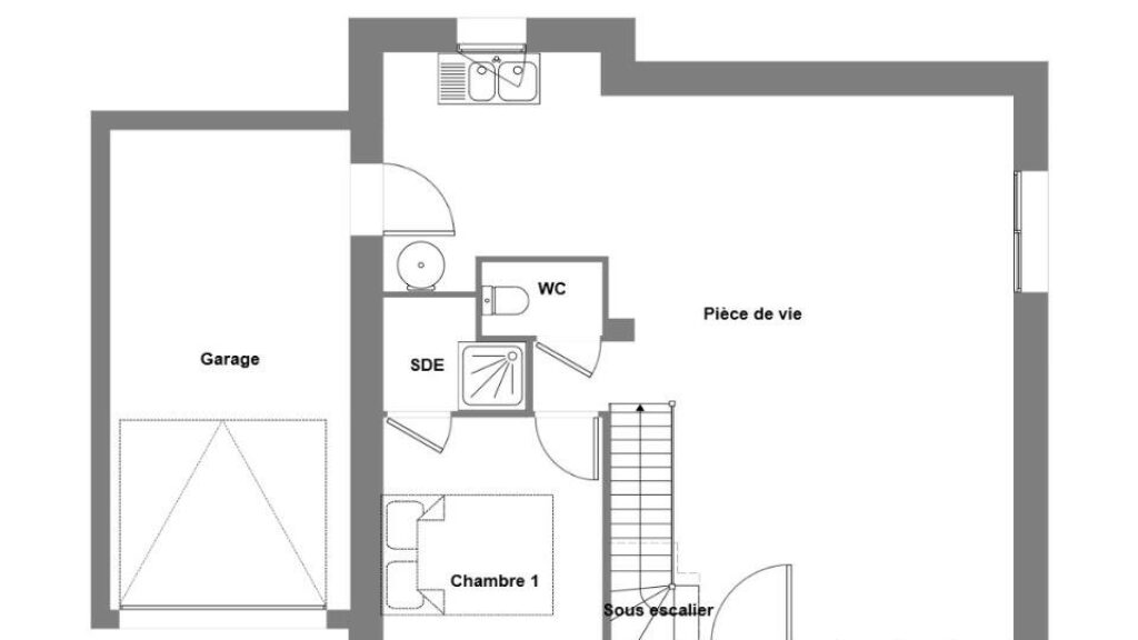
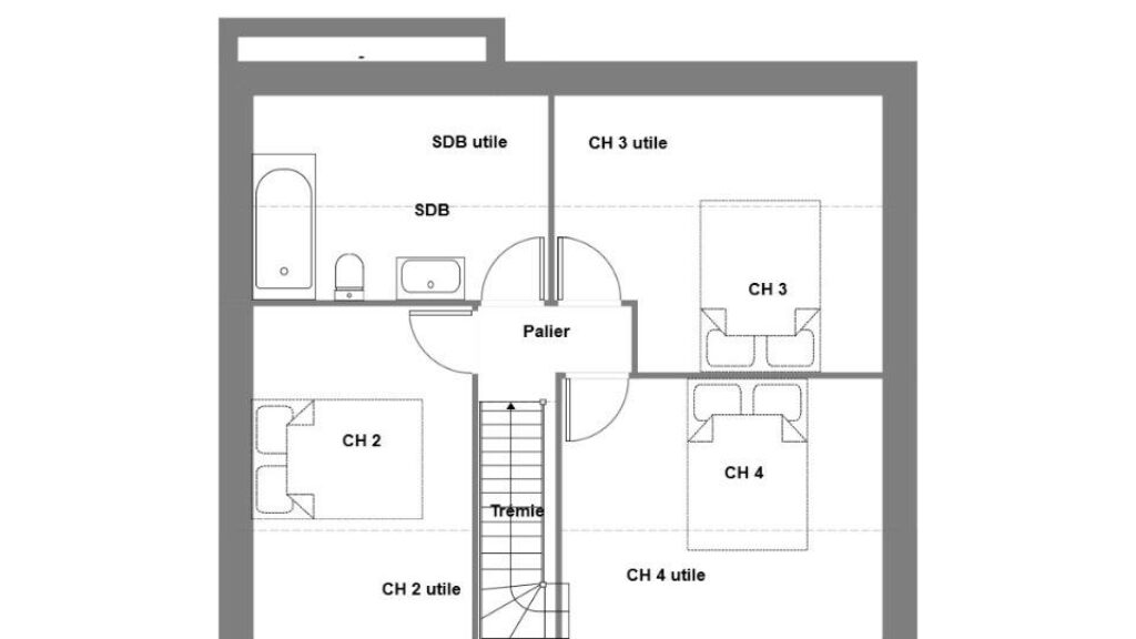
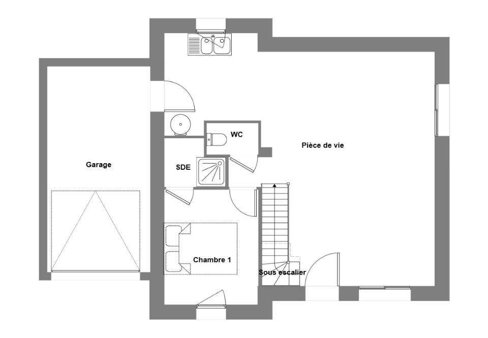
Cette maison comporte 2 niveaux. Elle dispose de quatre chambres, d'une cuisine et de deux salles de bains. La maison est neuve.
Cette maison est située dans un quartier convoité. L'École Primaire Publique les Cèdres est implantée à moins de 10 minutes à pied. Niveau transports en commun, il y a quatre gares à moins de 10 minutes en voiture. La nationale N176 est accessible à 4 km. On trouve une bibliothèque et une boulangerie à quelques minutes à peine.
Son prix de vente est de 232 300 €.
Prenez contact avec Laetitia AMIRI (tél : 02-99-83-07-20) pour plus de renseignements sur la maison, sur les modalités de vente ou sur les démarches à suivre. Concrétisez vos projets immobiliers avec Maisons de l'Avenir Saint-Carné.
EMPLACEMENT PRIVILÉGIÉ - MAISON 5 PIÈCES NEUVE
En vente : située à 7 km de la Manche et à deux pas de Saint-Malo, venez découvrir, bénéficiant d'un emplacement d'exception dans Saint-Guinoux (35430), cette maison de 5 pièces de 89 m² et de 265 m² de terrain.
Cette maison comporte 2 niveaux. Elle dispose de quatre chambres, d'une cuisine et de deux salles de bains. La maison est neuve.
Cette maison est située dans un quartier convoité. L'École Primaire Publique les Cèdres est implantée à moins de 10 minutes à pied. Niveau transports en commun, il y… Lire la suite
VENTE : maison de 5 pièces (89 m²) à Saint-Guinoux
EMPLACEMENT PRIVILÉGIÉ - MAISON 5 PIÈCES NEUVE
En vente : située à 7 km de la Manche et à deux pas de Saint-Malo, venez découvrir, bénéficiant d'un emplacement d'exception dans Saint-Guinoux (35430), cette maison de 5 pièces de 89 m² et de 265 m² de terrain.
Cette maison comporte 2 niveaux. Elle dispose de quatre chambres, d'une cuisine et de deux salles de bains. La maison est neuve.
Cette maison est située dans un quartier convoité. L'École Primaire Publique les Cèdres est implantée à moins de 10 minutes à pied. Niveau transports en commun, il y a quatre gares à moins de 10 minutes en voiture. La nationale N176 est accessible à 4 km. On trouve une bibliothèque et une boulangerie à quelques minutes à peine.
Son prix de vente est de 232 300 €.
Prenez contact avec Laetitia AMIRI (tél : 02-99-83-07-20) pour plus de renseignements sur la maison, sur les modalités de vente ou sur les démarches à suivre. Concrétisez vos projets immobiliers avec Maisons de l'Avenir Saint-Carné.
Maisons de l’Avenir, constructeur de maisons individuelles, propose en collaboration avec ses partenaires fonciers, une sélection de terrains constructibles, selon disponibilité, pour la construction de maisons neuves définies par le constructeur, avec un contrat de construction de maison individuelle, dans le cadre de la loi du 19/12/1990. Prix net, hors frais notariés, d'enregistrement et de publicité foncière
Terrain proposé au prix de : 55 600 €
Maison proposée au prix de : 176 700 €
Etiquette énergie : A. Assurances et garanties du constructeur (RC professionnelle, décennale, dommage ouvrage, Garantie de livraison à prix et délai convenu). https://www.maisonsdelavenir.com/mentions-legales/
Localisation
Une maison 100% personnalisable
-  Garage 
-  Agencement 
-  Revêtements extérieurs 
-  Toiture 
-  Ouvertures 
Nos garanties constructeur
UNE MAISON 100% PERSONNALISÉE
Définir un style architectural (contemporain, moderne, traditionnel) et un plan adapté à votre mode de vie pour mettre en lumière votre projet de construction, tel est notre quotidien !
SERVICE 3 EN 1
Nos conseillers habitat vous accompagnent tout au long de votre projet : Terrain – Maison - Financement, afin de garantir sa réussite et de satisfaire vos exigences !
DES ANNÉES D'EXPÉRIENCES
Depuis 1962, la marque Maisons de l’Avenir inspire confiance et sérénité, une si longue expérience dans la construction de maisons individuelles, c’est un vrai gage de qualité !






















 
  
 