 Nous contacter
 Nous contacter- Prix Maison + Terrain- À partir de 187 600 €
 
- Référence- LA2321054_1
 
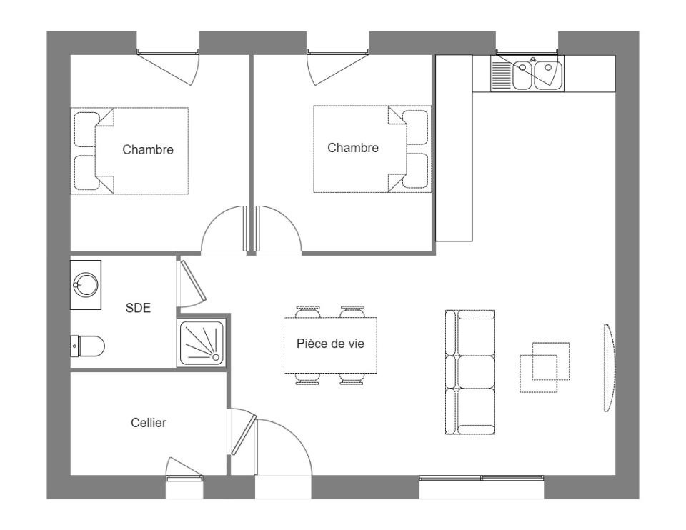
- Maison personnalisable- Chambres : 2
- Nombre de pièces : 3
- Surface maison : 57 m²
- Surface terrain : 265 m²
- Garage/Carport
 
- Performances énergétiques- Classe énergétique : A
 
Description
Saint-Guinoux : maison de 3 pièces (57 m²) en vente
EMPLACEMENT PRIVILÉGIÉ - MAISON 3 PIÈCES NEUVE
À 7 km de la Manche et à quelques kilomètres de Saint-Malo, nous vous présentons cette maison de 3 pièces de plain-pied de 57 m² en vente, bénéficiant d'un emplacement privilégié dans Saint-Guinoux (35430).
Elle propose deux chambres, une cuisine et une salle de bains. La maison est neuve.
Le terrain de la propriété est de 265 m².
Cette maison se trouve dans un secteur recherché. L'École Primaire Publique les Cèdres est implantée à moins de 10 minutes à pied. Niveau transports, il y a quatre gares à moins de 10 minutes en voiture. La nationale N176 est accessible à 4 km. On trouve une bibliothèque et une boulangerie à quelques minutes de la maison.
Elle est proposée à l'achat pour 187 600 €.
Contactez Laetitia AMIRI (02-99-83-07-20) pour toute question sur la maison et sur les modalités de vente. Maisons de l'Avenir Saint-Carné est là pour vous accompagner dans toutes vos démarches.
EMPLACEMENT PRIVILÉGIÉ - MAISON 3 PIÈCES NEUVE
À 7 km de la Manche et à quelques kilomètres de Saint-Malo, nous vous présentons cette maison de 3 pièces de plain-pied de 57 m² en vente, bénéficiant d'un emplacement privilégié dans Saint-Guinoux (35430).
Elle propose deux chambres, une cuisine et une salle de bains. La maison est neuve.
Le terrain de la propriété est de 265 m².
Cette maison se trouve dans un secteur recherché. L'École Primaire Publique les Cèdres est implantée à moins de 10 minutes à pied. Niveau transports, il y a quatre gares à moins de… Lire la suite
Saint-Guinoux : maison de 3 pièces (57 m²) en vente
EMPLACEMENT PRIVILÉGIÉ - MAISON 3 PIÈCES NEUVE
À 7 km de la Manche et à quelques kilomètres de Saint-Malo, nous vous présentons cette maison de 3 pièces de plain-pied de 57 m² en vente, bénéficiant d'un emplacement privilégié dans Saint-Guinoux (35430).
Elle propose deux chambres, une cuisine et une salle de bains. La maison est neuve.
Le terrain de la propriété est de 265 m².
Cette maison se trouve dans un secteur recherché. L'École Primaire Publique les Cèdres est implantée à moins de 10 minutes à pied. Niveau transports, il y a quatre gares à moins de 10 minutes en voiture. La nationale N176 est accessible à 4 km. On trouve une bibliothèque et une boulangerie à quelques minutes de la maison.
Elle est proposée à l'achat pour 187 600 €.
Contactez Laetitia AMIRI (02-99-83-07-20) pour toute question sur la maison et sur les modalités de vente. Maisons de l'Avenir Saint-Carné est là pour vous accompagner dans toutes vos démarches.
Maisons de l’Avenir, constructeur de maisons individuelles, propose en collaboration avec ses partenaires fonciers, une sélection de terrains constructibles, selon disponibilité, pour la construction de maisons neuves définies par le constructeur, avec un contrat de construction de maison individuelle, dans le cadre de la loi du 19/12/1990. Prix net, hors frais notariés, d'enregistrement et de publicité foncière
Terrain proposé au prix de : 55 600 €
Maison proposée au prix de : 132 000 €
Etiquette énergie : A. Assurances et garanties du constructeur (RC professionnelle, décennale, dommage ouvrage, Garantie de livraison à prix et délai convenu). https://www.maisonsdelavenir.com/mentions-legales/
Localisation
Une maison 100% personnalisable
-  Garage 
-  Agencement 
-  Revêtements extérieurs 
-  Toiture 
-  Ouvertures 
Nos garanties constructeur
UNE MAISON 100% PERSONNALISÉE
Définir un style architectural (contemporain, moderne, traditionnel) et un plan adapté à votre mode de vie pour mettre en lumière votre projet de construction, tel est notre quotidien !
SERVICE 3 EN 1
Nos conseillers habitat vous accompagnent tout au long de votre projet : Terrain – Maison - Financement, afin de garantir sa réussite et de satisfaire vos exigences !
DES ANNÉES D'EXPÉRIENCES
Depuis 1962, la marque Maisons de l’Avenir inspire confiance et sérénité, une si longue expérience dans la construction de maisons individuelles, c’est un vrai gage de qualité !










 
  
 