Prix Maison + Terrain
- À partir de 287 000 €
Référence
- SR2381673_5
Maison personnalisable
- Chambres : 4
- Nombre de pièces : 5
- Surface maison : 88 m²
- Surface terrain : 925 m²
- Garage/Carport
Performances énergétiques
- Classe énergétique : A
Description
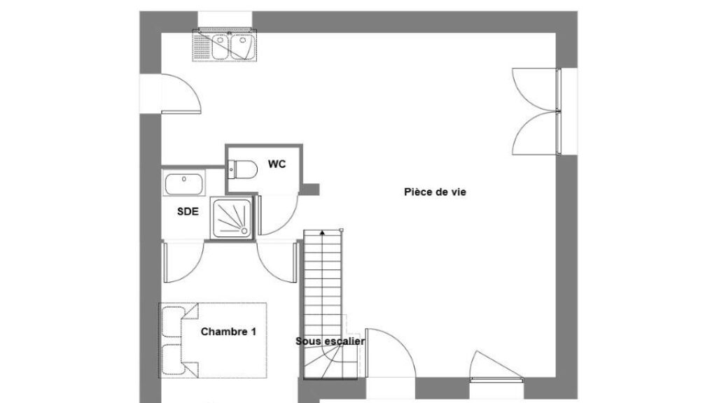
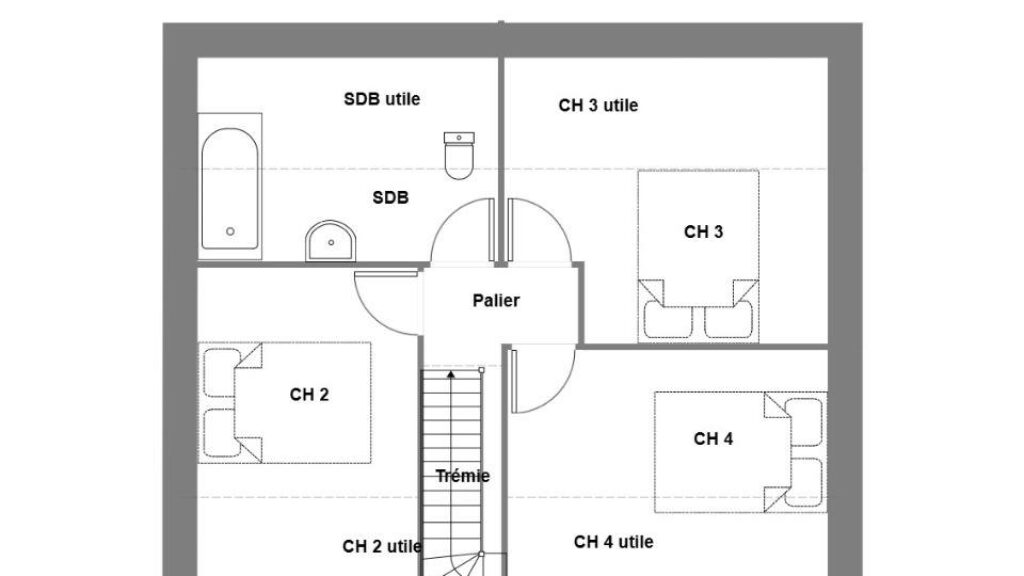
VENTE : maison de 5 pièces (88 m²) à Saint-Donan
EMPLACEMENT PRIVILÉGIÉ - MAISON 5 PIÈCES NEUVE
À vendre : localisée à 18 km de la Manche et à deux pas de Saint-Brieuc, bénéficiant d'un emplacement privilégié dans Saint-Donan (22800), ayez le coup de coeur pour cette maison de 5 pièces de 88 m².
Cette maison compte 2 niveaux. Son intérieur dispose de quatre chambres, d'une cuisine et d'une salle de bains. La maison est neuve.
Le terrain de la propriété est de 925 m².
Cette maison se situe dans un secteur recherché. L'École Primaire Privée Saint Joseph et l'École Primaire Publique la Source sont implantées à moins de 10 minutes à pied. Niveau transports, il y a quatre gares à moins de 10 minutes en voiture. Il y a un accès à la nationale N12 à 6 km. On trouve une bibliothèque et une boulangerie dans les environs.
Elle est à vendre pour la somme de 287 000 €.
Contactez notre agence (ROGER Samuel : 02-96-78-52-58) pour obtenir de plus amples renseignements sur le bien, sur les modalités de vente ou sur les démarches à suivre. Maisons de l'Avenir Saint-Brieuc vous accompagne à toutes les étapes de l'achat et dans tous vos projets immobiliers.
EMPLACEMENT PRIVILÉGIÉ - MAISON 5 PIÈCES NEUVE
À vendre : localisée à 18 km de la Manche et à deux pas de Saint-Brieuc, bénéficiant d'un emplacement privilégié dans Saint-Donan (22800), ayez le coup de coeur pour cette maison de 5 pièces de 88 m².
Cette maison compte 2 niveaux. Son intérieur dispose de quatre chambres, d'une cuisine et d'une salle de bains. La maison est neuve.
Le terrain de la propriété est de 925 m².
Cette maison se situe dans un secteur recherché. L'École Primaire Privée Saint Joseph et l'École Primaire Publique la Source sont implantées à… Lire la suite
VENTE : maison de 5 pièces (88 m²) à Saint-Donan
EMPLACEMENT PRIVILÉGIÉ - MAISON 5 PIÈCES NEUVE
À vendre : localisée à 18 km de la Manche et à deux pas de Saint-Brieuc, bénéficiant d'un emplacement privilégié dans Saint-Donan (22800), ayez le coup de coeur pour cette maison de 5 pièces de 88 m².
Cette maison compte 2 niveaux. Son intérieur dispose de quatre chambres, d'une cuisine et d'une salle de bains. La maison est neuve.
Le terrain de la propriété est de 925 m².
Cette maison se situe dans un secteur recherché. L'École Primaire Privée Saint Joseph et l'École Primaire Publique la Source sont implantées à moins de 10 minutes à pied. Niveau transports, il y a quatre gares à moins de 10 minutes en voiture. Il y a un accès à la nationale N12 à 6 km. On trouve une bibliothèque et une boulangerie dans les environs.
Elle est à vendre pour la somme de 287 000 €.
Contactez notre agence (ROGER Samuel : 02-96-78-52-58) pour obtenir de plus amples renseignements sur le bien, sur les modalités de vente ou sur les démarches à suivre. Maisons de l'Avenir Saint-Brieuc vous accompagne à toutes les étapes de l'achat et dans tous vos projets immobiliers.
Terrain proposé par un partenaire foncier selon disponibilités et autorisation de publicité au prix de 110 000 €. Hors droit d'enregistrement et frais de notaire. Terrain + Maison proposés au prix de 177 000 € (Hors branchements et raccordements, papiers peints, peintures, revêtement de sol dans les chambres. Tarif modifiable sans préavis). Etiquette énergie : A. Différents modèles disponibles pour ce terrain. Assurances et garanties du constructeur (RC professionnelle, décennale, dommage ouvrage, garantie de remboursement de l'acompte, livraison à prix et délai convenu) : https://www.maisonsdelavenir.com/mentions-legales/.
Localisation
Une maison 100% personnalisable
-
Garage
-
Agencement
-
Revêtements extérieurs
-
Toiture
-
Ouvertures
Nos garanties constructeur
UNE MAISON 100% PERSONNALISÉE
Définir un style architectural (contemporain, moderne, traditionnel) et un plan adapté à votre mode de vie pour mettre en lumière votre projet de construction, tel est notre quotidien !
SERVICE 3 EN 1
Nos conseillers habitat vous accompagnent tout au long de votre projet : Terrain – Maison - Financement, afin de garantir sa réussite et de satisfaire vos exigences !
DES ANNÉES D'EXPÉRIENCES
Depuis 1962, la marque Maisons de l’Avenir inspire confiance et sérénité, une si longue expérience dans la construction de maisons individuelles, c’est un vrai gage de qualité !



















