Prix Maison + Terrain
- À partir de 365 900 €
Référence
- LA2365640_4
Maison personnalisable
- Chambres : 4
- Nombre de pièces : 5
- Surface maison : 140 m²
- Surface terrain : 407 m²
- Garage/Carport
Performances énergétiques
- Classe énergétique : A
Description
VENTE d'une maison F5 (140 m²) à Saint-Cast-le-Guildo
EMPLACEMENT PRIVILÉGIÉ - MAISON 5 PIÈCES NEUVE
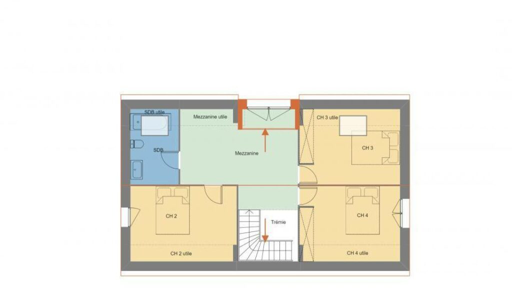
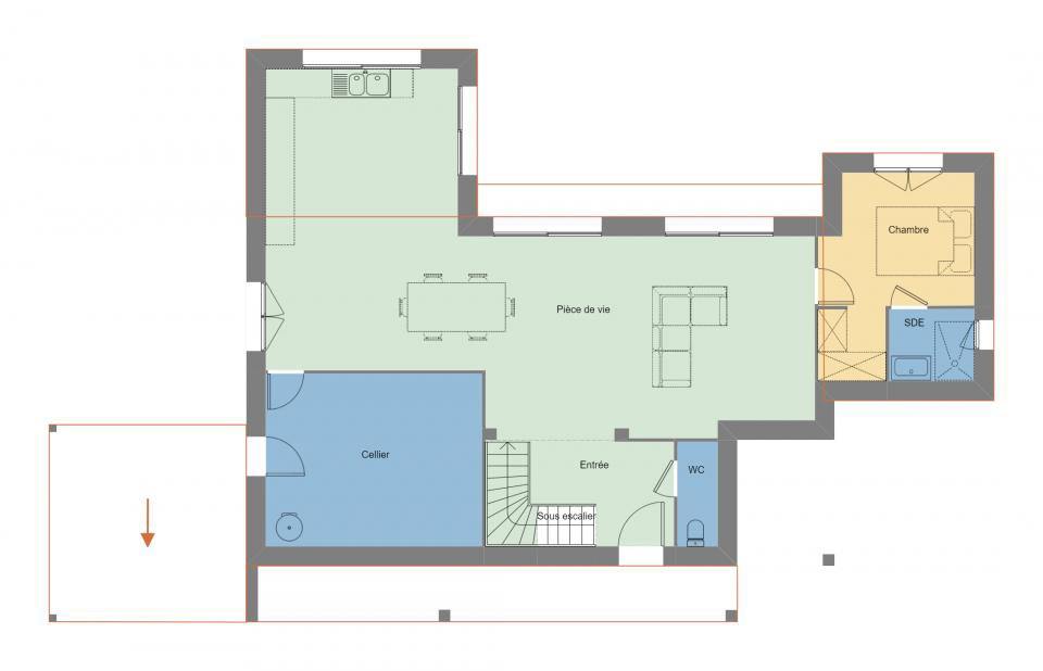
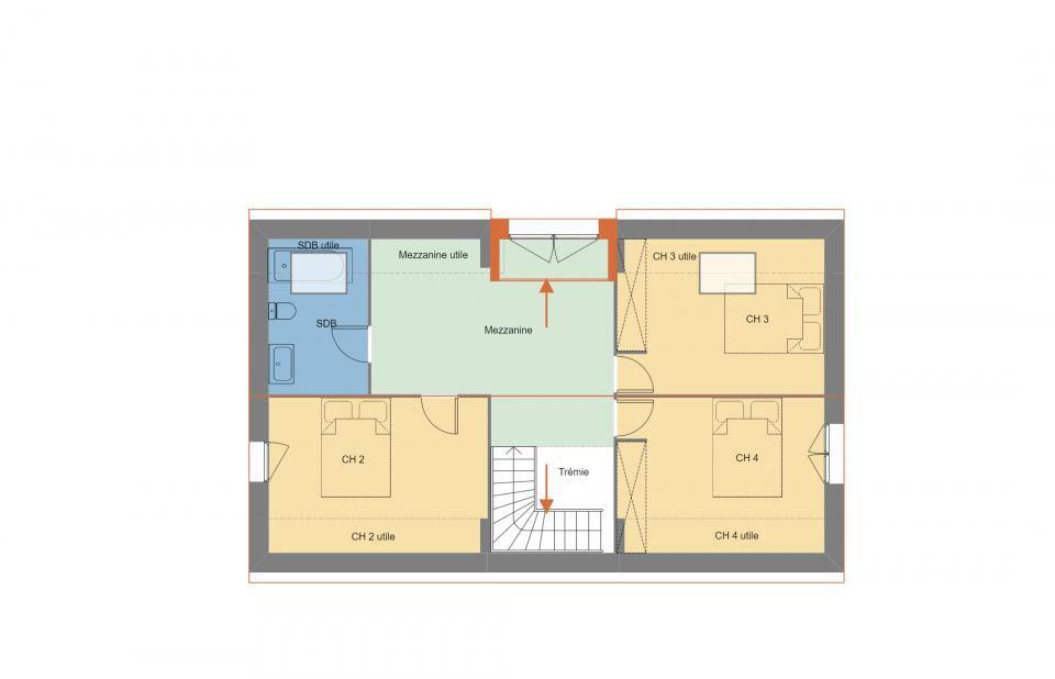
En vente à 5 km de la Manche et à deux pas de Saint-Malo, nous vous proposons cette maison de 5 pièces de 140 m² bénéficiant d'un emplacement privilégié dans Saint-Cast-le-Guildo (22380). Elle comporte quatre chambres, une cuisine et deux salles de bains.
Le terrain de la propriété est de 407 m².
C'est une maison de 2 niveaux. Elle est neuve.
La maison se trouve dans un secteur recherché. Il y a l'École Primaire Publique les Terrres Neuvas à moins de 10 minutes à pied. On trouve un bassin de natation, des commerces, quatre boulangeries, un supermarché, une poissonnerie et un bureau de poste à quelques minutes à peine.
Elle est à vendre pour la somme de 365 900 €.
Contactez notre agence (AMIRI Laetitia : 02-99-83-07-20) pour plus de renseignements sur la maison.
EMPLACEMENT PRIVILÉGIÉ - MAISON 5 PIÈCES NEUVE
En vente à 5 km de la Manche et à deux pas de Saint-Malo, nous vous proposons cette maison de 5 pièces de 140 m² bénéficiant d'un emplacement privilégié dans Saint-Cast-le-Guildo (22380). Elle comporte quatre chambres, une cuisine et deux salles de bains.
Le terrain de la propriété est de 407 m².
C'est une maison de 2 niveaux. Elle est neuve.
La maison se trouve dans un secteur recherché. Il y a l'École Primaire Publique les Terrres Neuvas à moins de 10 minutes à pied. On trouve un bassin de natation, des… Lire la suite
VENTE d'une maison F5 (140 m²) à Saint-Cast-le-Guildo
EMPLACEMENT PRIVILÉGIÉ - MAISON 5 PIÈCES NEUVE
En vente à 5 km de la Manche et à deux pas de Saint-Malo, nous vous proposons cette maison de 5 pièces de 140 m² bénéficiant d'un emplacement privilégié dans Saint-Cast-le-Guildo (22380). Elle comporte quatre chambres, une cuisine et deux salles de bains.
Le terrain de la propriété est de 407 m².
C'est une maison de 2 niveaux. Elle est neuve.
La maison se trouve dans un secteur recherché. Il y a l'École Primaire Publique les Terrres Neuvas à moins de 10 minutes à pied. On trouve un bassin de natation, des commerces, quatre boulangeries, un supermarché, une poissonnerie et un bureau de poste à quelques minutes à peine.
Elle est à vendre pour la somme de 365 900 €.
Contactez notre agence (AMIRI Laetitia : 02-99-83-07-20) pour plus de renseignements sur la maison.
Maisons de l’Avenir, constructeur de maisons individuelles, propose en collaboration avec ses partenaires fonciers, une sélection de terrains constructibles, selon disponibilité, pour la construction de maisons neuves définies par le constructeur, avec un contrat de construction de maison individuelle, dans le cadre de la loi du 19/12/1990. Prix net, hors frais notariés, d'enregistrement et de publicité foncière
Terrain proposé au prix de : 76 000 €
Maison proposée au prix de : 289 900 €
Etiquette énergie : A. Assurances et garanties du constructeur (RC professionnelle, décennale, dommage ouvrage, Garantie de livraison à prix et délai convenu). https://www.maisonsdelavenir.com/mentions-legales/
Localisation
Une maison 100% personnalisable
-
Garage
-
Agencement
-
Revêtements extérieurs
-
Toiture
-
Ouvertures
Nos garanties constructeur
UNE MAISON 100% PERSONNALISÉE
Définir un style architectural (contemporain, moderne, traditionnel) et un plan adapté à votre mode de vie pour mettre en lumière votre projet de construction, tel est notre quotidien !
SERVICE 3 EN 1
Nos conseillers habitat vous accompagnent tout au long de votre projet : Terrain – Maison - Financement, afin de garantir sa réussite et de satisfaire vos exigences !
DES ANNÉES D'EXPÉRIENCES
Depuis 1962, la marque Maisons de l’Avenir inspire confiance et sérénité, une si longue expérience dans la construction de maisons individuelles, c’est un vrai gage de qualité !















