Maison à construire de 120m² (3 chambres) sur un terrain de 407m² à Saint-Cast-le-Guildo (22380)

2320680-4586modele620250321yn2Wz.jpeg
Nous contacter
  • Prix Maison + Terrain

    • À partir de 364 000 €
  • Référence

    • LA2320657_6
  • Maison personnalisable

    • Chambres : 3
    • Nombre de pièces : 4
    • Surface maison : 120 m²
    • Surface terrain : 407 m²
    • Garage/Carport
  • Performances énergétiques

    • Classe énergétique : A

Description

Maison de 4 pièces (120 m²) à vendre à Saint-Cast-le-Guildo
EMPLACEMENT PRIVILÉGIÉ -  MAISON BOIS QUALITATIVE, ECONOMIQUE ET DURABLE 4 PIÈCES NEUVE
À 5 km de la Manche et à quelques kilomètres de Saint-Malo, nous vous proposons cette maison de 4 pièces de plain-pied de 120 m² bénéficiant d'un emplacement privilégié dans Saint-Cast-le-Guildo (22380).
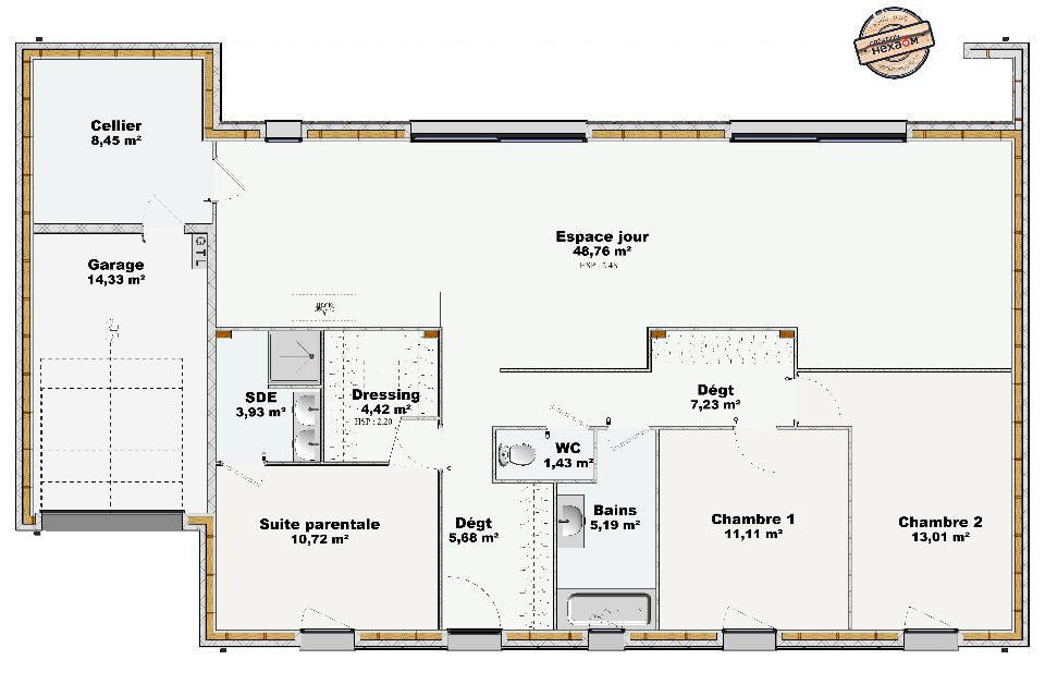
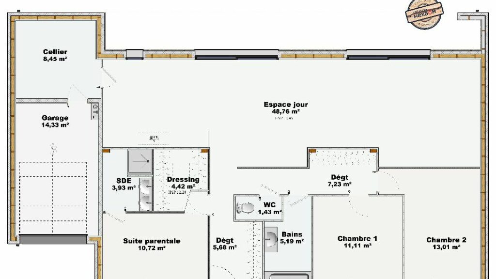
Conçue de plain-pied, elle propose trois chambres, une cuisine et deux salles de bains. Cette maison est neuve.
Le terrain du bien s'étend sur 407 m².
La maison se situe dans un secteur convoité. Il y a l'École Primaire Publique les Terrres Neuvas à moins de 10 minutes à pied. On trouve un bassin de natation, des commerces, quatre boulangeries, un supermarché, une poissonnerie et une épicerie à quelques minutes.
Elle est à vendre pour la somme de 364 000 €.
Contactez Laetitia AMIRI (tél : 02-99-83-07-20) pour toute information sur la maison, sur les démarches à suivre ou sur les modalités de vente.

Masquer
Maison de 4 pièces (120 m²) à vendre à Saint-Cast-le-Guildo
EMPLACEMENT PRIVILÉGIÉ -  MAISON BOIS QUALITATIVE, ECONOMIQUE ET DURABLE 4 PIÈCES NEUVE
À 5 km de la Manche et à quelques kilomètres de Saint-Malo, nous vous proposons cette maison de 4 pièces de plain-pied de 120 m² bénéficiant d'un emplacement privilégié dans Saint-Cast-le-Guildo (22380).
Conçue de plain-pied, elle propose trois chambres, une cuisine et deux salles de bains. Cette maison est neuve.
Le terrain du bien s'étend sur 407 m².
La maison se situe dans un secteur convoité. Il y a l'École Primaire Publique les Terrres Neuvas à moins de 10 minutes à pied. On trouve… Lire la suite

Maison de 4 pièces (120 m²) à vendre à Saint-Cast-le-Guildo
EMPLACEMENT PRIVILÉGIÉ -  MAISON BOIS QUALITATIVE, ECONOMIQUE ET DURABLE 4 PIÈCES NEUVE
À 5 km de la Manche et à quelques kilomètres de Saint-Malo, nous vous proposons cette maison de 4 pièces de plain-pied de 120 m² bénéficiant d'un emplacement privilégié dans Saint-Cast-le-Guildo (22380).
Conçue de plain-pied, elle propose trois chambres, une cuisine et deux salles de bains. Cette maison est neuve.
Le terrain du bien s'étend sur 407 m².
La maison se situe dans un secteur convoité. Il y a l'École Primaire Publique les Terrres Neuvas à moins de 10 minutes à pied. On trouve un bassin de natation, des commerces, quatre boulangeries, un supermarché, une poissonnerie et une épicerie à quelques minutes.
Elle est à vendre pour la somme de 364 000 €.
Contactez Laetitia AMIRI (tél : 02-99-83-07-20) pour toute information sur la maison, sur les démarches à suivre ou sur les modalités de vente.

Localisation

Une maison 100% personnalisable

  • Garage

  • Agencement

  • Revêtements extérieurs

  • Toiture

  • Ouvertures

Nos garanties constructeur

UNE MAISON 100% PERSONNALISÉE

Définir un style architectural (contemporain, moderne, traditionnel) et un plan adapté à votre mode de vie pour mettre en lumière votre projet de construction, tel est notre quotidien !

SERVICE 3 EN 1

Nos conseillers habitat vous accompagnent tout au long de votre projet : Terrain – Maison - Financement, afin de garantir sa réussite et de satisfaire vos exigences !

DES ANNÉES D'EXPÉRIENCES

Depuis 1962, la marque Maisons de l’Avenir inspire confiance et sérénité, une si longue expérience dans la construction de maisons individuelles, c’est un vrai gage de qualité !