Maison à construire de 118m² (5 chambres) sur un terrain de 495m² à Saint-Briac-sur-Mer (35800)

2308518-3594modele620200626Qf65K.jpeg
Nous contacter
  • Prix Maison + Terrain

    • À partir de 509 500 €
  • Référence

    • LA2308507_2
  • Maison personnalisable

    • Chambres : 5
    • Nombre de pièces : 6
    • Surface maison : 118 m²
    • Surface terrain : 495 m²
    • Garage/Carport
  • Performances énergétiques

    • Classe énergétique : A

Description

Saint-Briac-sur-Mer : maison T6 (118 m²) à vendre
EMPLACEMENT PRIVILÉGIÉ - Situé en bordure d'une zone naturelle préservée, un cadre de vie paisible, idéal pour les amateurs de nature et de tranquillité. Ancien village de marins, Saint-Briac-sur-Mer séduit par son authenticité, son patrimoine riche et son environnement naturel exceptionnel.

MAISON 6 PIÈCES NEUVE
À vendre : située à 4 km de la Manche et à quelques kilomètres de Saint-Malo, nous vous proposons cette maison de 6 pièces de 118 m² bénéficiant d'un emplacement d'exception dans Saint-Briac-sur-Mer (35800).
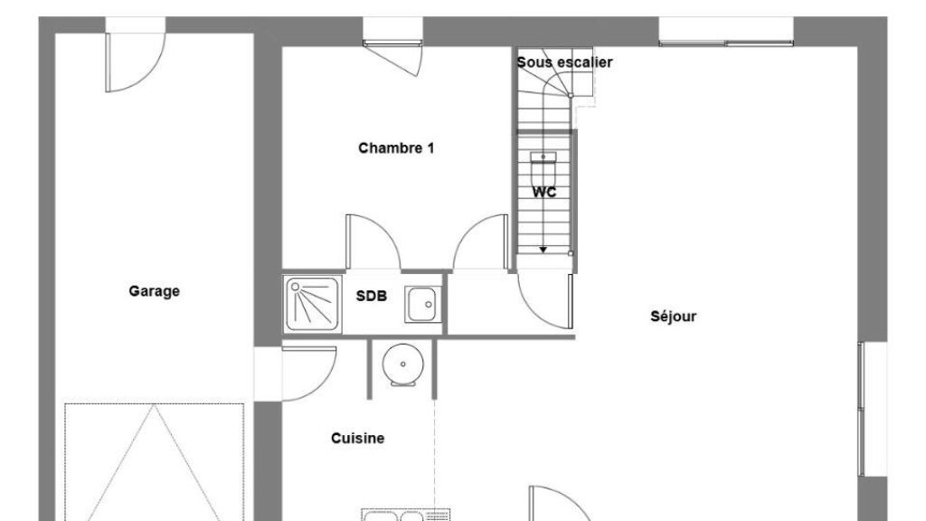
Cette maison possède 2 niveaux. Elle est composée de cinq chambres, d'une cuisine et de deux salles de bains. La maison est neuve.
Le terrain de la propriété est de 495 m².
Cette maison se trouve dans un quartier attractif. L'École Primaire Publique les Cap Horniers et l'École Primaire Privée Ste Anne y sont implantées. Niveau transports, il y a la gare Saint-Malo à moins de 10 minutes en voiture. Il y a un accès à la nationale N176 à 12 km. On trouve une bibliothèque et un commerce à quelques minutes à peine.
Elle est à vendre pour la somme de 509 500 €.
Prenez contact avec Laetitia AMIRI (02-99-83-07-20) pour toute information sur la maison, sur les démarches à suivre ou sur les modalités de vente. Maisons de l'Avenir Saint-Carné vous accompagne à toutes les étapes de votre projet et dans tous vos projets immobiliers.

Masquer
Saint-Briac-sur-Mer : maison T6 (118 m²) à vendre
EMPLACEMENT PRIVILÉGIÉ - Situé en bordure d'une zone naturelle préservée, un cadre de vie paisible, idéal pour les amateurs de nature et de tranquillité. Ancien village de marins, Saint-Briac-sur-Mer séduit par son authenticité, son patrimoine riche et son environnement naturel exceptionnel.

MAISON 6 PIÈCES NEUVE
À vendre : située à 4 km de la Manche et à quelques kilomètres de Saint-Malo, nous vous proposons cette maison de 6 pièces de 118 m² bénéficiant d'un emplacement d'exception dans Saint-Briac-sur-Mer (35800).
Cette maison possède 2 niveaux. Elle est composée de cinq chambres, d'une cuisine et de deux salles de bains.… Lire la suite

Saint-Briac-sur-Mer : maison T6 (118 m²) à vendre
EMPLACEMENT PRIVILÉGIÉ - Situé en bordure d'une zone naturelle préservée, un cadre de vie paisible, idéal pour les amateurs de nature et de tranquillité. Ancien village de marins, Saint-Briac-sur-Mer séduit par son authenticité, son patrimoine riche et son environnement naturel exceptionnel.

MAISON 6 PIÈCES NEUVE
À vendre : située à 4 km de la Manche et à quelques kilomètres de Saint-Malo, nous vous proposons cette maison de 6 pièces de 118 m² bénéficiant d'un emplacement d'exception dans Saint-Briac-sur-Mer (35800).
Cette maison possède 2 niveaux. Elle est composée de cinq chambres, d'une cuisine et de deux salles de bains. La maison est neuve.
Le terrain de la propriété est de 495 m².
Cette maison se trouve dans un quartier attractif. L'École Primaire Publique les Cap Horniers et l'École Primaire Privée Ste Anne y sont implantées. Niveau transports, il y a la gare Saint-Malo à moins de 10 minutes en voiture. Il y a un accès à la nationale N176 à 12 km. On trouve une bibliothèque et un commerce à quelques minutes à peine.
Elle est à vendre pour la somme de 509 500 €.
Prenez contact avec Laetitia AMIRI (02-99-83-07-20) pour toute information sur la maison, sur les démarches à suivre ou sur les modalités de vente. Maisons de l'Avenir Saint-Carné vous accompagne à toutes les étapes de votre projet et dans tous vos projets immobiliers.

Localisation

Une maison 100% personnalisable

  • Garage

  • Agencement

  • Revêtements extérieurs

  • Toiture

  • Ouvertures

Nos garanties constructeur

UNE MAISON 100% PERSONNALISÉE

Définir un style architectural (contemporain, moderne, traditionnel) et un plan adapté à votre mode de vie pour mettre en lumière votre projet de construction, tel est notre quotidien !

SERVICE 3 EN 1

Nos conseillers habitat vous accompagnent tout au long de votre projet : Terrain – Maison - Financement, afin de garantir sa réussite et de satisfaire vos exigences !

DES ANNÉES D'EXPÉRIENCES

Depuis 1962, la marque Maisons de l’Avenir inspire confiance et sérénité, une si longue expérience dans la construction de maisons individuelles, c’est un vrai gage de qualité !