Prix Maison + Terrain
- À partir de 245 000 €
Référence
- DM2363169_1
Maison personnalisable
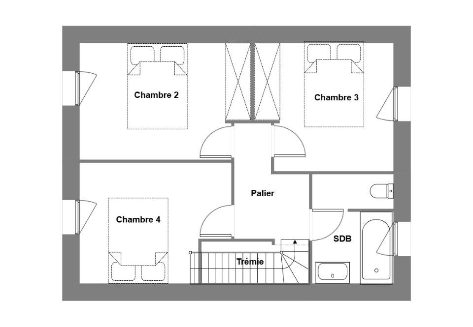
- Chambres : 4
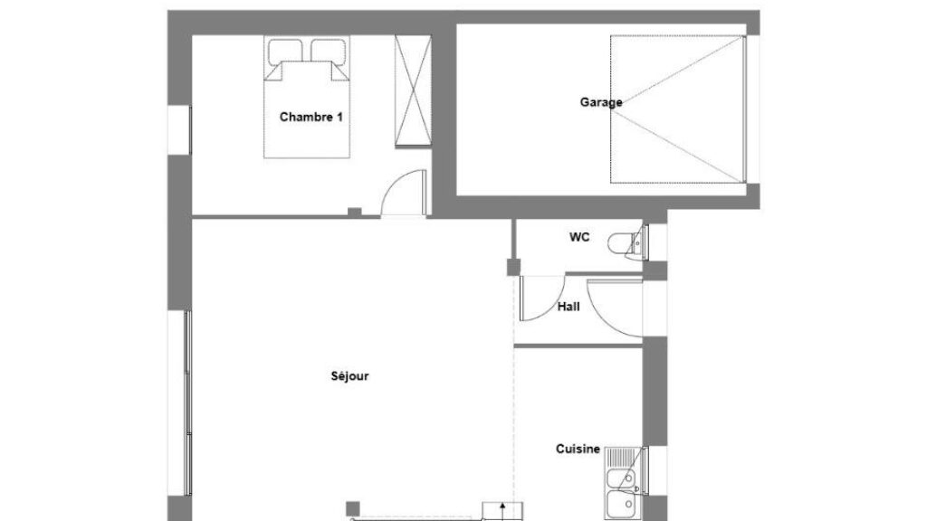
- Nombre de pièces : 5
- Surface maison : 90 m²
- Surface terrain : 258 m²
- Garage/Carport
Performances énergétiques
- Classe énergétique : A
Description
Saint-Aubin-d'Aubigné : maison T5 (90 m²) en vente
IDÉALEMENT SITUÉE - MAISON 5 PIÈCES NEUVE
En vente : à 40 km de la Manche et à 18 km de Rennes, Maisons de l'Avenir Cesson-Sévigné vous propose cette maison de 5 pièces de 90 m² avec vue sur jardin idéalement située dans Saint-Aubin-d'Aubigné (35250).
Il s'agit d'une maison de 2 niveaux. Elle se divise en quatre chambres, une cuisine et une salle de bains. La maison est neuve.
Le terrain du bien s'étend sur 258 m².
Cette maison est située dans un secteur convoité. Cinq établissements scolaires se trouvent à moins de 10 minutes à pied. Côté transports en commun, il y a cinq gares à moins de 10 minutes en voiture. L'autoroute A84 est accessible à 9 km. On trouve un tennis, une bibliothèque, des commerces, trois boulangeries, un bureau de poste, une épicerie et une boucherie-charcuterie dans les environs.
Elle est à vendre pour la somme de 245 000 €.
N'hésitez pas à prendre contact avec Dimitri MESAS (tél : 02-99-83-07-20) pour plus de renseignements sur la maison et sur les démarches à suivre.
IDÉALEMENT SITUÉE - MAISON 5 PIÈCES NEUVE
En vente : à 40 km de la Manche et à 18 km de Rennes, Maisons de l'Avenir Cesson-Sévigné vous propose cette maison de 5 pièces de 90 m² avec vue sur jardin idéalement située dans Saint-Aubin-d'Aubigné (35250).
Il s'agit d'une maison de 2 niveaux. Elle se divise en quatre chambres, une cuisine et une salle de bains. La maison est neuve.
Le terrain du bien s'étend sur 258 m².
Cette maison est située dans un secteur convoité. Cinq établissements scolaires se trouvent à moins de 10 minutes à pied. Côté transports… Lire la suite
Saint-Aubin-d'Aubigné : maison T5 (90 m²) en vente
IDÉALEMENT SITUÉE - MAISON 5 PIÈCES NEUVE
En vente : à 40 km de la Manche et à 18 km de Rennes, Maisons de l'Avenir Cesson-Sévigné vous propose cette maison de 5 pièces de 90 m² avec vue sur jardin idéalement située dans Saint-Aubin-d'Aubigné (35250).
Il s'agit d'une maison de 2 niveaux. Elle se divise en quatre chambres, une cuisine et une salle de bains. La maison est neuve.
Le terrain du bien s'étend sur 258 m².
Cette maison est située dans un secteur convoité. Cinq établissements scolaires se trouvent à moins de 10 minutes à pied. Côté transports en commun, il y a cinq gares à moins de 10 minutes en voiture. L'autoroute A84 est accessible à 9 km. On trouve un tennis, une bibliothèque, des commerces, trois boulangeries, un bureau de poste, une épicerie et une boucherie-charcuterie dans les environs.
Elle est à vendre pour la somme de 245 000 €.
N'hésitez pas à prendre contact avec Dimitri MESAS (tél : 02-99-83-07-20) pour plus de renseignements sur la maison et sur les démarches à suivre.
Maisons de l’Avenir, constructeur de maisons individuelles, propose en collaboration avec ses partenaires fonciers, une sélection de terrains constructibles, selon disponibilité, pour la construction de maisons neuves définies par le constructeur, avec un contrat de construction de maison individuelle, dans le cadre de la loi du 19/12/1990. Prix net, hors frais notariés, d'enregistrement et de publicité foncière
Terrain proposé au prix de : 65 500 €
Maison proposée au prix de : 179 500 €
Etiquette énergie : A. Assurances et garanties du constructeur (RC professionnelle, décennale, dommage ouvrage, Garantie de livraison à prix et délai convenu). https://www.maisonsdelavenir.com/mentions-legales/
Localisation
Une maison 100% personnalisable
-
Garage
-
Agencement
-
Revêtements extérieurs
-
Toiture
-
Ouvertures
Nos garanties constructeur
UNE MAISON 100% PERSONNALISÉE
Définir un style architectural (contemporain, moderne, traditionnel) et un plan adapté à votre mode de vie pour mettre en lumière votre projet de construction, tel est notre quotidien !
SERVICE 3 EN 1
Nos conseillers habitat vous accompagnent tout au long de votre projet : Terrain – Maison - Financement, afin de garantir sa réussite et de satisfaire vos exigences !
DES ANNÉES D'EXPÉRIENCES
Depuis 1962, la marque Maisons de l’Avenir inspire confiance et sérénité, une si longue expérience dans la construction de maisons individuelles, c’est un vrai gage de qualité !























