Prix Maison + Terrain
- À partir de 363 898 €
Référence
- CR2263991_4
Maison personnalisable
- Chambres : 4
- Nombre de pièces : 5
- Surface maison : 104 m²
- Surface terrain : 415 m²
- Garage/Carport
Performances énergétiques
- Classe énergétique : A
Description
VENTE : Maison T5 (104 m²) à Saint-Armel - Ossature bois & bardage naturel
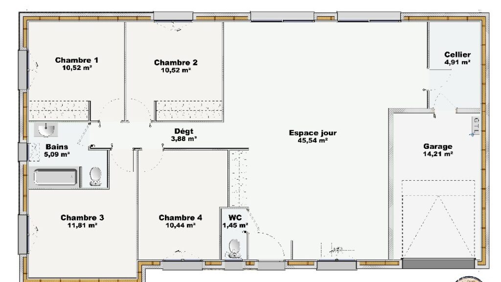
À seulement 14 km de Rennes et à proximité de la gare, découvrez cette maison neuve de plain-pied de 104 m², construite en ossature bois écologique, sur un terrain de 415 m² à Saint-Armel (35230).
Elle comprend quatre chambres, une cuisine et deux salles de bains. Son bardage bois apporte un cachet chaleureux et contemporain, s'intégrant parfaitement à son environnement résidentiel.
L'ossature bois assure confort thermique, durabilité et performance énergétique, pour un habitat respectueux de l'environnement et agréable à vivre au quotidien.
À proximité : école primaire, crèche, boulangerie, commerce et tennis. Les nationales N137 et N136 sont accessibles en moins de 9 km et la gare de Saint-Armel se situe à quelques minutes.
👉 Prix de vente : 363 898 €
📞 Contact : Cyril RENVAZE - 06 64 27 67 91
🏡 Réalisation : Maisons de l'Avenir - Cesson-Sévigné
À seulement 14 km de Rennes et à proximité de la gare, découvrez cette maison neuve de plain-pied de 104 m², construite en ossature bois écologique, sur un terrain de 415 m² à Saint-Armel (35230).
Elle comprend quatre chambres, une cuisine et deux salles de bains. Son bardage bois apporte un cachet chaleureux et contemporain, s'intégrant parfaitement à son environnement résidentiel.
L'ossature bois assure confort thermique, durabilité et performance énergétique, pour un habitat respectueux de l'environnement et agréable à vivre au quotidien.
À proximité : école primaire, crèche, boulangerie, commerce… Lire la suite
VENTE : Maison T5 (104 m²) à Saint-Armel - Ossature bois & bardage naturel
À seulement 14 km de Rennes et à proximité de la gare, découvrez cette maison neuve de plain-pied de 104 m², construite en ossature bois écologique, sur un terrain de 415 m² à Saint-Armel (35230).
Elle comprend quatre chambres, une cuisine et deux salles de bains. Son bardage bois apporte un cachet chaleureux et contemporain, s'intégrant parfaitement à son environnement résidentiel.
L'ossature bois assure confort thermique, durabilité et performance énergétique, pour un habitat respectueux de l'environnement et agréable à vivre au quotidien.
À proximité : école primaire, crèche, boulangerie, commerce et tennis. Les nationales N137 et N136 sont accessibles en moins de 9 km et la gare de Saint-Armel se situe à quelques minutes.
👉 Prix de vente : 363 898 €
📞 Contact : Cyril RENVAZE - 06 64 27 67 91
🏡 Réalisation : Maisons de l'Avenir - Cesson-Sévigné
Maisons de l’Avenir, constructeur de maisons individuelles, propose en collaboration avec ses partenaires fonciers, une sélection de terrains constructibles, selon disponibilité, pour la construction de maisons neuves définies par le constructeur, avec un contrat de construction de maison individuelle, dans le cadre de la loi du 19/12/1990. Prix net, hors frais notariés, d'enregistrement et de publicité foncière
Terrain proposé au prix de : 99 500 €
Maison proposée au prix de : 264 398 €
Etiquette énergie : A. Assurances et garanties du constructeur (RC professionnelle, décennale, dommage ouvrage, Garantie de livraison à prix et délai convenu). https://www.maisonsdelavenir.com/mentions-legales/
Localisation
Une maison 100% personnalisable
-
Garage
-
Agencement
-
Revêtements extérieurs
-
Toiture
-
Ouvertures
Nos garanties constructeur
UNE MAISON 100% PERSONNALISÉE
Définir un style architectural (contemporain, moderne, traditionnel) et un plan adapté à votre mode de vie pour mettre en lumière votre projet de construction, tel est notre quotidien !
SERVICE 3 EN 1
Nos conseillers habitat vous accompagnent tout au long de votre projet : Terrain – Maison - Financement, afin de garantir sa réussite et de satisfaire vos exigences !
DES ANNÉES D'EXPÉRIENCES
Depuis 1962, la marque Maisons de l’Avenir inspire confiance et sérénité, une si longue expérience dans la construction de maisons individuelles, c’est un vrai gage de qualité !

































