Maison à construire de 110m² (3 chambres) sur un terrain de 1462m² à Riec-sur-Belon (29340)

2352058-5377modele6202104201KNTp.jpeg
Nous contacter
  • Prix Maison + Terrain

    • À partir de 393 600 €
  • Référence

    • ML2352033_3
  • Maison personnalisable

    • Chambres : 3
    • Nombre de pièces : 4
    • Surface maison : 110 m²
    • Surface terrain : 1462 m²
    • Garage/Carport
  • Performances énergétiques

    • Classe énergétique : A

Description

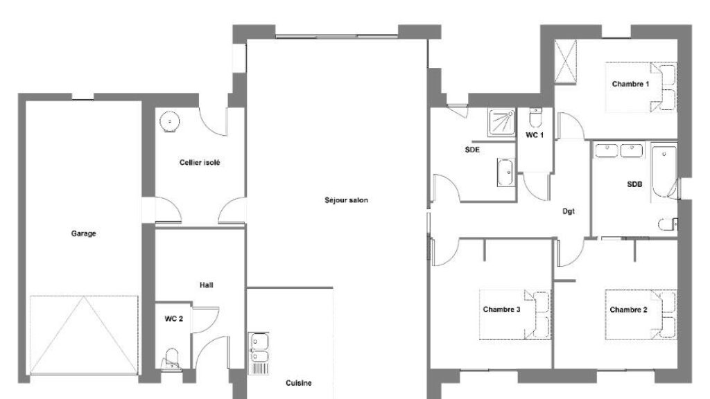
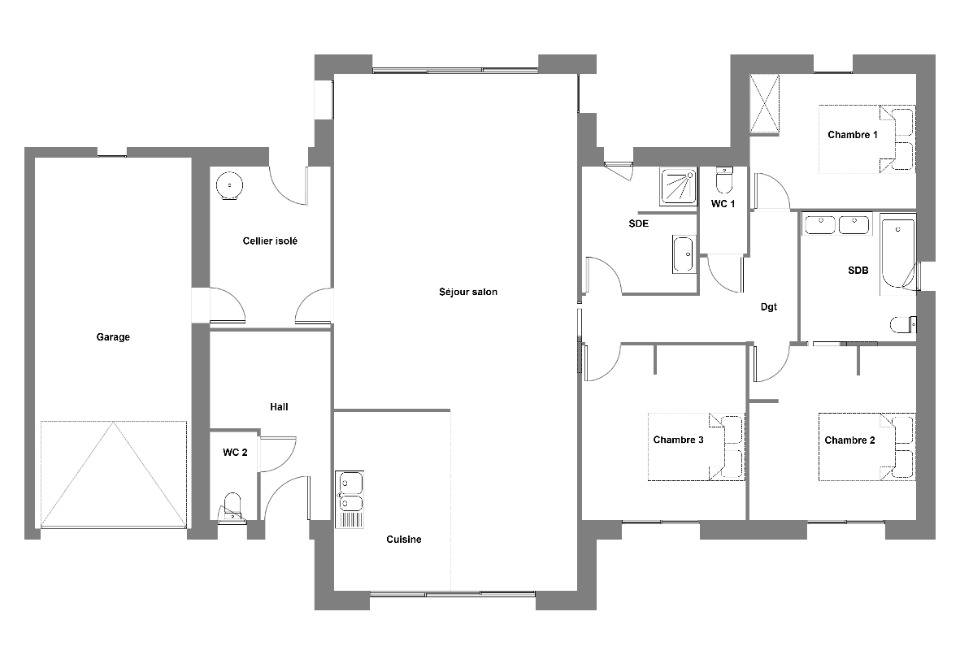
VENTE : maison F4 (110 m²) à Riec-sur-Bélon
PROCHE DE LORIENT - MAISON 4 PIÈCES NEUVE
À vendre : située à 10 km de l'océan Atlantique et à 25 km de Lorient, à Riec-sur-Bélon (29340), nous sommes heureux de vous présenter cette maison de 4 pièces de plain-pied de 110 m².
Elle inclut trois chambres, une cuisine et deux salles de bains. Cette maison est neuve.
Le terrain du bien s'étend sur 1 462 m².
Des établissements scolaires primaires sont implantés dans la commune. Niveau transports en commun, il y a la gare Bannalec à moins de 10 minutes en voiture. On trouve un accès à la nationale N165 à 4 km. On trouve une bibliothèque et un supermarché à quelques minutes de la maison.
Son prix de vente est de 393 600 €.
Contactez notre agence (Marie LAURENT : 02-98-54-75-20) pour plus de renseignements sur cette maison ou sur les démarches à suivre. Maisons de l'Avenir Quimper vous accompagne à toutes les étapes de l'achat et dans tous vos projets immobiliers.

Masquer
VENTE : maison F4 (110 m²) à Riec-sur-Bélon
PROCHE DE LORIENT - MAISON 4 PIÈCES NEUVE
À vendre : située à 10 km de l'océan Atlantique et à 25 km de Lorient, à Riec-sur-Bélon (29340), nous sommes heureux de vous présenter cette maison de 4 pièces de plain-pied de 110 m².
Elle inclut trois chambres, une cuisine et deux salles de bains. Cette maison est neuve.
Le terrain du bien s'étend sur 1 462 m².
Des établissements scolaires primaires sont implantés dans la commune. Niveau transports en commun, il y a la gare Bannalec à moins de 10 minutes en voiture. On trouve un accès à la… Lire la suite

VENTE : maison F4 (110 m²) à Riec-sur-Bélon
PROCHE DE LORIENT - MAISON 4 PIÈCES NEUVE
À vendre : située à 10 km de l'océan Atlantique et à 25 km de Lorient, à Riec-sur-Bélon (29340), nous sommes heureux de vous présenter cette maison de 4 pièces de plain-pied de 110 m².
Elle inclut trois chambres, une cuisine et deux salles de bains. Cette maison est neuve.
Le terrain du bien s'étend sur 1 462 m².
Des établissements scolaires primaires sont implantés dans la commune. Niveau transports en commun, il y a la gare Bannalec à moins de 10 minutes en voiture. On trouve un accès à la nationale N165 à 4 km. On trouve une bibliothèque et un supermarché à quelques minutes de la maison.
Son prix de vente est de 393 600 €.
Contactez notre agence (Marie LAURENT : 02-98-54-75-20) pour plus de renseignements sur cette maison ou sur les démarches à suivre. Maisons de l'Avenir Quimper vous accompagne à toutes les étapes de l'achat et dans tous vos projets immobiliers.

Localisation

Une maison 100% personnalisable

  • Garage

  • Agencement

  • Revêtements extérieurs

  • Toiture

  • Ouvertures

Nos garanties constructeur

UNE MAISON 100% PERSONNALISÉE

Définir un style architectural (contemporain, moderne, traditionnel) et un plan adapté à votre mode de vie pour mettre en lumière votre projet de construction, tel est notre quotidien !

SERVICE 3 EN 1

Nos conseillers habitat vous accompagnent tout au long de votre projet : Terrain – Maison - Financement, afin de garantir sa réussite et de satisfaire vos exigences !

DES ANNÉES D'EXPÉRIENCES

Depuis 1962, la marque Maisons de l’Avenir inspire confiance et sérénité, une si longue expérience dans la construction de maisons individuelles, c’est un vrai gage de qualité !