Prix Maison + Terrain
- À partir de 334 900 €
Référence
- CC2364519_6
Maison personnalisable
- Chambres : 3
- Nombre de pièces : 5
- Surface maison : 90 m²
- Surface terrain : 479 m²
- Garage/Carport
Performances énergétiques
- Classe énergétique : A
Description
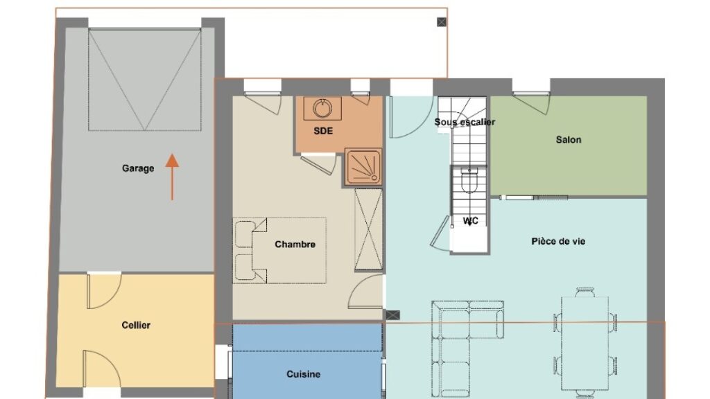
Maison T5 (90 m²) à vendre à Riantec
IDÉALEMENT SITUÉE - MAISON 5 PIÈCES NEUVE
À 13 km de la côte atlantique et à deux pas de Lorient, nous sommes ravis de vous présenter cette maison de 5 pièces de 90 m² et de 479 m² de terrain idéalement située dans Riantec (56670). Elle offre trois chambres, une cuisine et deux salles de bains.
Il s'agit d'une maison de 2 niveaux. Elle est neuve.
Cette maison est située dans un secteur prisé. Il y a l'École Primaire Privée Saint Joseph à moins de 10 minutes à pied. Niveau transports, on trouve deux gares (Lorient Bretagne Sud et Hennebont) à moins de 10 minutes en voiture. Les nationales N165 et N24 sont accessibles à moins de 10 km. Il y a une bibliothèque et un bassin de natation à quelques minutes à peine.
Elle est à vendre pour la somme de 334 900 €.
Contactez notre agence (Christophe COLLOCH : 02-97-21-63-96) pour toute information sur la maison ou sur les modalités de vente. Maisons de l'Avenir Lorient vous accompagne dans toutes vos démarches et dans tous vos projets immobiliers.
IDÉALEMENT SITUÉE - MAISON 5 PIÈCES NEUVE
À 13 km de la côte atlantique et à deux pas de Lorient, nous sommes ravis de vous présenter cette maison de 5 pièces de 90 m² et de 479 m² de terrain idéalement située dans Riantec (56670). Elle offre trois chambres, une cuisine et deux salles de bains.
Il s'agit d'une maison de 2 niveaux. Elle est neuve.
Cette maison est située dans un secteur prisé. Il y a l'École Primaire Privée Saint Joseph à moins de 10 minutes à pied. Niveau transports, on trouve deux gares (Lorient Bretagne Sud… Lire la suite
Maison T5 (90 m²) à vendre à Riantec
IDÉALEMENT SITUÉE - MAISON 5 PIÈCES NEUVE
À 13 km de la côte atlantique et à deux pas de Lorient, nous sommes ravis de vous présenter cette maison de 5 pièces de 90 m² et de 479 m² de terrain idéalement située dans Riantec (56670). Elle offre trois chambres, une cuisine et deux salles de bains.
Il s'agit d'une maison de 2 niveaux. Elle est neuve.
Cette maison est située dans un secteur prisé. Il y a l'École Primaire Privée Saint Joseph à moins de 10 minutes à pied. Niveau transports, on trouve deux gares (Lorient Bretagne Sud et Hennebont) à moins de 10 minutes en voiture. Les nationales N165 et N24 sont accessibles à moins de 10 km. Il y a une bibliothèque et un bassin de natation à quelques minutes à peine.
Elle est à vendre pour la somme de 334 900 €.
Contactez notre agence (Christophe COLLOCH : 02-97-21-63-96) pour toute information sur la maison ou sur les modalités de vente. Maisons de l'Avenir Lorient vous accompagne dans toutes vos démarches et dans tous vos projets immobiliers.
Maisons de l’Avenir, constructeur de maisons individuelles, propose en collaboration avec ses partenaires fonciers, une sélection de terrains constructibles, selon disponibilité, pour la construction de maisons neuves définies par le constructeur, avec un contrat de construction de maison individuelle, dans le cadre de la loi du 19/12/1990. Prix net, hors frais notariés, d'enregistrement et de publicité foncière
Terrain proposé au prix de : 116 000 €
Maison proposée au prix de : 218 900 €
Etiquette énergie : A. Assurances et garanties du constructeur (RC professionnelle, décennale, dommage ouvrage, Garantie de livraison à prix et délai convenu). https://www.maisonsdelavenir.com/mentions-legales/
Localisation
Une maison 100% personnalisable
-
Garage
-
Agencement
-
Revêtements extérieurs
-
Toiture
-
Ouvertures
Nos garanties constructeur
UNE MAISON 100% PERSONNALISÉE
Définir un style architectural (contemporain, moderne, traditionnel) et un plan adapté à votre mode de vie pour mettre en lumière votre projet de construction, tel est notre quotidien !
SERVICE 3 EN 1
Nos conseillers habitat vous accompagnent tout au long de votre projet : Terrain – Maison - Financement, afin de garantir sa réussite et de satisfaire vos exigences !
DES ANNÉES D'EXPÉRIENCES
Depuis 1962, la marque Maisons de l’Avenir inspire confiance et sérénité, une si longue expérience dans la construction de maisons individuelles, c’est un vrai gage de qualité !













