Prix Maison + Terrain
- À partir de 478 000 €
Référence
- CC2364519_1
Maison personnalisable
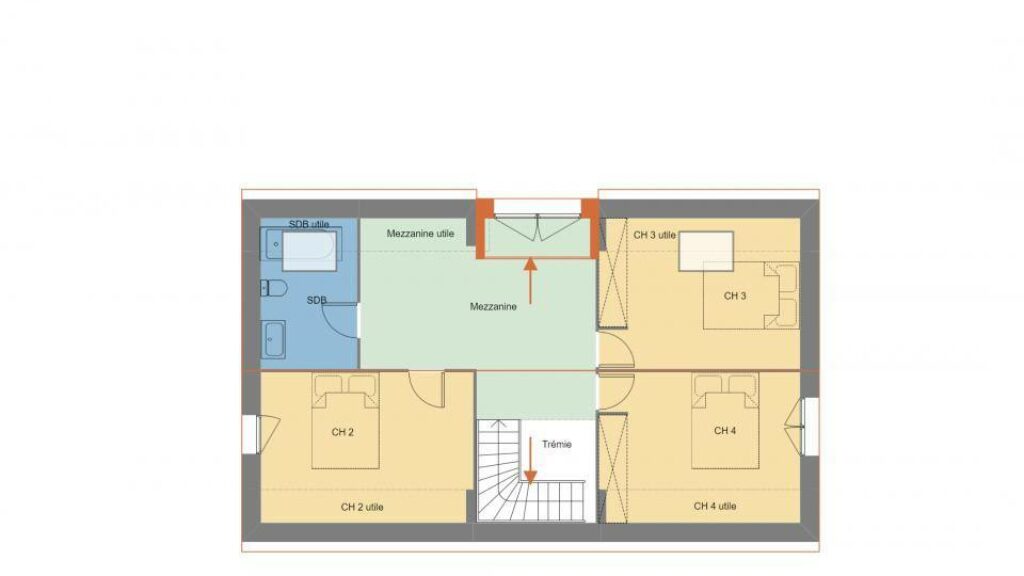
- Chambres : 4
- Nombre de pièces : 5
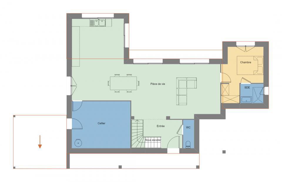
- Surface maison : 140 m²
- Surface terrain : 479 m²
- Garage/Carport
Performances énergétiques
- Classe énergétique : A
Description
VENTE : maison F5 (140 m²) à Riantec
IDÉALEMENT SITUÉE - MAISON 5 PIÈCES NEUVE
À vendre : à 13 km de l'océan Atlantique et à 6 km de Lorient, nous vous présentons cette maison de 5 pièces de 140 m² idéalement située dans Riantec (56670).
Il s'agit d'une maison de 2 niveaux. Elle propose quatre chambres, une cuisine et deux salles de bains. La maison est neuve.
Le terrain de la propriété est de 479 m².
Ce bien se trouve dans un quartier convoité. Il y a l'École Primaire Privée Saint Joseph à moins de 10 minutes à pied. Côté transports, on trouve deux gares (Lorient Bretagne Sud et Hennebont) à moins de 10 minutes en voiture. Les nationales N165 et N24 sont accessibles à moins de 10 km. Il y a une bibliothèque et un bassin de natation à quelques minutes du logement.
Son prix de vente est de 478 000 €.
Contactez notre agence (COLLOCH Christophe : 02-97-21-63-96) pour obtenir de plus amples renseignements sur la maison, sur les démarches à suivre ou sur les modalités de vente.
IDÉALEMENT SITUÉE - MAISON 5 PIÈCES NEUVE
À vendre : à 13 km de l'océan Atlantique et à 6 km de Lorient, nous vous présentons cette maison de 5 pièces de 140 m² idéalement située dans Riantec (56670).
Il s'agit d'une maison de 2 niveaux. Elle propose quatre chambres, une cuisine et deux salles de bains. La maison est neuve.
Le terrain de la propriété est de 479 m².
Ce bien se trouve dans un quartier convoité. Il y a l'École Primaire Privée Saint Joseph à moins de 10 minutes à pied. Côté transports, on trouve deux gares (Lorient… Lire la suite
VENTE : maison F5 (140 m²) à Riantec
IDÉALEMENT SITUÉE - MAISON 5 PIÈCES NEUVE
À vendre : à 13 km de l'océan Atlantique et à 6 km de Lorient, nous vous présentons cette maison de 5 pièces de 140 m² idéalement située dans Riantec (56670).
Il s'agit d'une maison de 2 niveaux. Elle propose quatre chambres, une cuisine et deux salles de bains. La maison est neuve.
Le terrain de la propriété est de 479 m².
Ce bien se trouve dans un quartier convoité. Il y a l'École Primaire Privée Saint Joseph à moins de 10 minutes à pied. Côté transports, on trouve deux gares (Lorient Bretagne Sud et Hennebont) à moins de 10 minutes en voiture. Les nationales N165 et N24 sont accessibles à moins de 10 km. Il y a une bibliothèque et un bassin de natation à quelques minutes du logement.
Son prix de vente est de 478 000 €.
Contactez notre agence (COLLOCH Christophe : 02-97-21-63-96) pour obtenir de plus amples renseignements sur la maison, sur les démarches à suivre ou sur les modalités de vente.
Maisons de l’Avenir, constructeur de maisons individuelles, propose en collaboration avec ses partenaires fonciers, une sélection de terrains constructibles, selon disponibilité, pour la construction de maisons neuves définies par le constructeur, avec un contrat de construction de maison individuelle, dans le cadre de la loi du 19/12/1990. Prix net, hors frais notariés, d'enregistrement et de publicité foncière
Terrain proposé au prix de : 116 000 €
Maison proposée au prix de : 362 000 €
Etiquette énergie : A. Assurances et garanties du constructeur (RC professionnelle, décennale, dommage ouvrage, Garantie de livraison à prix et délai convenu). https://www.maisonsdelavenir.com/mentions-legales/
Localisation
Une maison 100% personnalisable
-
Garage
-
Agencement
-
Revêtements extérieurs
-
Toiture
-
Ouvertures
Nos garanties constructeur
UNE MAISON 100% PERSONNALISÉE
Définir un style architectural (contemporain, moderne, traditionnel) et un plan adapté à votre mode de vie pour mettre en lumière votre projet de construction, tel est notre quotidien !
SERVICE 3 EN 1
Nos conseillers habitat vous accompagnent tout au long de votre projet : Terrain – Maison - Financement, afin de garantir sa réussite et de satisfaire vos exigences !
DES ANNÉES D'EXPÉRIENCES
Depuis 1962, la marque Maisons de l’Avenir inspire confiance et sérénité, une si longue expérience dans la construction de maisons individuelles, c’est un vrai gage de qualité !















