Maison à construire de 90m² (3 chambres) sur un terrain de 480m² à Riantec (56670)

2291432-11165modele620250904EUkl8.jpeg
Nous contacter
  • Prix Maison + Terrain

    • À partir de 335 000 €
  • Référence

    • CC2291405_6
  • Maison personnalisable

    • Chambres : 3
    • Nombre de pièces : 5
    • Surface maison : 90 m²
    • Surface terrain : 480 m²
    • Garage/Carport
  • Performances énergétiques

    • Classe énergétique : A

Description

Maison F5 (90 m²) à vendre à Riantec
QUARTIER RECHERCHÉ - MAISON 5 PIÈCES NEUVE
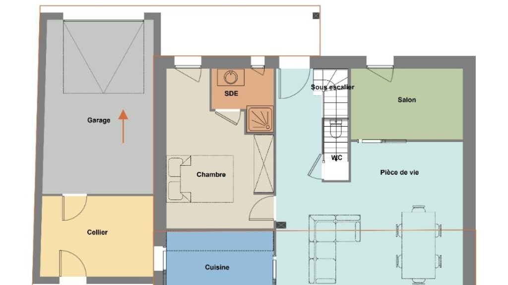
À 13 km de l'océan Atlantique et à 6 km de Lorient, Maisons de l'Avenir Lorient vous propose en vente, située dans un secteur convoité de Riantec (56670), cette maison de 5 pièces de 90 m². Elle propose trois chambres, une cuisine et deux salles de bains.
Le terrain de cette maison est de 480 m².
Il s'agit d'une maison de 2 niveaux. Elle est neuve.
La propriété se trouve dans un quartier prisé. Il y a l'École Primaire Privée Saint Joseph à moins de 10 minutes à pied. Côté transports en commun, on trouve deux gares (Lorient Bretagne Sud et Hennebont) à moins de 10 minutes en voiture. Les nationales N165 et N24 sont accessibles à moins de 10 km. Il y a une bibliothèque et un bassin de natation dans les environs.
Son prix de vente est de 335 000 €.
Contactez notre agence (Christophe COLLOCH : 02-97-21-63-96) pour toute information sur la maison ou sur les démarches à suivre. Maisons de l'Avenir Lorient est là pour vous accompagner dans tous vos projets immobiliers.

Masquer
Maison F5 (90 m²) à vendre à Riantec
QUARTIER RECHERCHÉ - MAISON 5 PIÈCES NEUVE
À 13 km de l'océan Atlantique et à 6 km de Lorient, Maisons de l'Avenir Lorient vous propose en vente, située dans un secteur convoité de Riantec (56670), cette maison de 5 pièces de 90 m². Elle propose trois chambres, une cuisine et deux salles de bains.
Le terrain de cette maison est de 480 m².
Il s'agit d'une maison de 2 niveaux. Elle est neuve.
La propriété se trouve dans un quartier prisé. Il y a l'École Primaire Privée Saint Joseph à moins de 10 minutes à pied. Côté transports en… Lire la suite

Maison F5 (90 m²) à vendre à Riantec
QUARTIER RECHERCHÉ - MAISON 5 PIÈCES NEUVE
À 13 km de l'océan Atlantique et à 6 km de Lorient, Maisons de l'Avenir Lorient vous propose en vente, située dans un secteur convoité de Riantec (56670), cette maison de 5 pièces de 90 m². Elle propose trois chambres, une cuisine et deux salles de bains.
Le terrain de cette maison est de 480 m².
Il s'agit d'une maison de 2 niveaux. Elle est neuve.
La propriété se trouve dans un quartier prisé. Il y a l'École Primaire Privée Saint Joseph à moins de 10 minutes à pied. Côté transports en commun, on trouve deux gares (Lorient Bretagne Sud et Hennebont) à moins de 10 minutes en voiture. Les nationales N165 et N24 sont accessibles à moins de 10 km. Il y a une bibliothèque et un bassin de natation dans les environs.
Son prix de vente est de 335 000 €.
Contactez notre agence (Christophe COLLOCH : 02-97-21-63-96) pour toute information sur la maison ou sur les démarches à suivre. Maisons de l'Avenir Lorient est là pour vous accompagner dans tous vos projets immobiliers.

Localisation

Une maison 100% personnalisable

  • Garage

  • Agencement

  • Revêtements extérieurs

  • Toiture

  • Ouvertures

Nos garanties constructeur

UNE MAISON 100% PERSONNALISÉE

Définir un style architectural (contemporain, moderne, traditionnel) et un plan adapté à votre mode de vie pour mettre en lumière votre projet de construction, tel est notre quotidien !

SERVICE 3 EN 1

Nos conseillers habitat vous accompagnent tout au long de votre projet : Terrain – Maison - Financement, afin de garantir sa réussite et de satisfaire vos exigences !

DES ANNÉES D'EXPÉRIENCES

Depuis 1962, la marque Maisons de l’Avenir inspire confiance et sérénité, une si longue expérience dans la construction de maisons individuelles, c’est un vrai gage de qualité !