
Prix Maison + Terrain
- À partir de 452 500 €
Référence
- ML2309053_3
Maison personnalisable
- Chambres : 5
- Nombre de pièces : 6
- Surface maison : 160 m²
- Surface terrain : 1077 m²
- Garage/Carport
Performances énergétiques
- Classe énergétique : A
Description
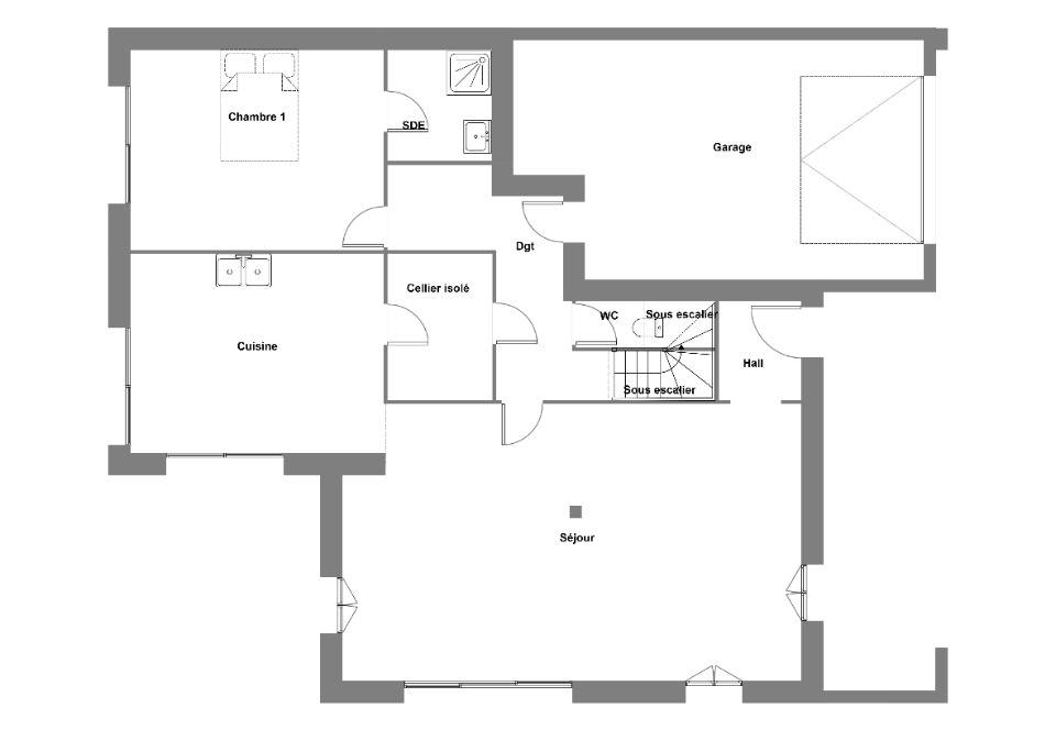
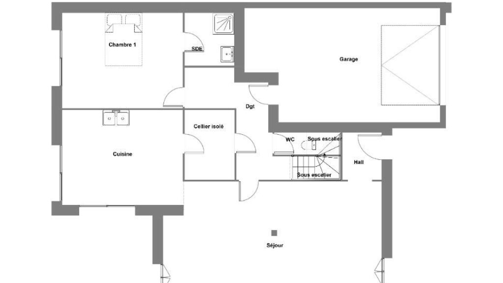
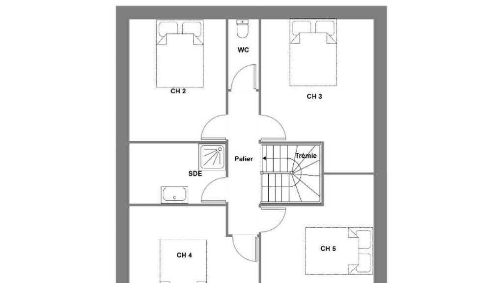
VENTE d'une maison de 6 pièces (160 m²) à Quimper
PROCHE CENTRE-VILLE - MAISON 6 PIÈCES NEUVE
En vente : à 14 km de la côte atlantique, proche du centre-ville de Quimper (29000), nous sommes ravis de vous proposer cette maison de 6 pièces de 160 m². Elle propose cinq chambres, une cuisine et deux salles de bains.
Le terrain de la propriété s'étend sur 1 077 m².
C'est une maison de 2 niveaux. Elle est neuve.
Il y a des établissements scolaires du primaire et du secondaire à moins de 10 minutes à pied, tout comme trois structures d'accueil pour les tout-petits. Côté transports, on trouve la gare Quimper à quelques pas du bien. Il y a un accès à la nationale N165 à 3 km. Il y a une bibliothèque, des commerces, des boulangeries, un supermarché, quatre supérettes et deux bureaux de poste à quelques minutes. Ne manquez pas le marché Place terre au Duc tous les mercredis.
Elle est à vendre pour la somme de 452 500 €.
Contactez notre agence (Marie LAURENT : 02-98-54-75-20) pour tout renseignement sur la maison ou sur les modalités de vente. Donnez vie à vos projets immobiliers avec Maisons de l'Avenir Quimper.
PROCHE CENTRE-VILLE - MAISON 6 PIÈCES NEUVE
En vente : à 14 km de la côte atlantique, proche du centre-ville de Quimper (29000), nous sommes ravis de vous proposer cette maison de 6 pièces de 160 m². Elle propose cinq chambres, une cuisine et deux salles de bains.
Le terrain de la propriété s'étend sur 1 077 m².
C'est une maison de 2 niveaux. Elle est neuve.
Il y a des établissements scolaires du primaire et du secondaire à moins de 10 minutes à pied, tout comme trois structures d'accueil pour les tout-petits. Côté transports, on trouve… Lire la suite
VENTE d'une maison de 6 pièces (160 m²) à Quimper
PROCHE CENTRE-VILLE - MAISON 6 PIÈCES NEUVE
En vente : à 14 km de la côte atlantique, proche du centre-ville de Quimper (29000), nous sommes ravis de vous proposer cette maison de 6 pièces de 160 m². Elle propose cinq chambres, une cuisine et deux salles de bains.
Le terrain de la propriété s'étend sur 1 077 m².
C'est une maison de 2 niveaux. Elle est neuve.
Il y a des établissements scolaires du primaire et du secondaire à moins de 10 minutes à pied, tout comme trois structures d'accueil pour les tout-petits. Côté transports, on trouve la gare Quimper à quelques pas du bien. Il y a un accès à la nationale N165 à 3 km. Il y a une bibliothèque, des commerces, des boulangeries, un supermarché, quatre supérettes et deux bureaux de poste à quelques minutes. Ne manquez pas le marché Place terre au Duc tous les mercredis.
Elle est à vendre pour la somme de 452 500 €.
Contactez notre agence (Marie LAURENT : 02-98-54-75-20) pour tout renseignement sur la maison ou sur les modalités de vente. Donnez vie à vos projets immobiliers avec Maisons de l'Avenir Quimper.
Maisons de l’Avenir, constructeur de maisons individuelles, propose en collaboration avec ses partenaires fonciers, une sélection de terrains constructibles, selon disponibilité, pour la construction de maisons neuves définies par le constructeur, avec un contrat de construction de maison individuelle, dans le cadre de la loi du 19/12/1990. Prix net, hors frais notariés, d'enregistrement et de publicité foncière
Terrain proposé au prix de : 84 000 €
Maison proposée au prix de : 368 500 €
Etiquette énergie : A. Assurances et garanties du constructeur (RC professionnelle, décennale, dommage ouvrage, Garantie de livraison à prix et délai convenu). https://www.maisonsdelavenir.com/mentions-legales/
Localisation
Une maison 100% personnalisable
-
Garage
-
Agencement
-
Revêtements extérieurs
-
Toiture
-
Ouvertures
Nos garanties constructeur
UNE MAISON 100% PERSONNALISÉE
Définir un style architectural (contemporain, moderne, traditionnel) et un plan adapté à votre mode de vie pour mettre en lumière votre projet de construction, tel est notre quotidien !
SERVICE 3 EN 1
Nos conseillers habitat vous accompagnent tout au long de votre projet : Terrain – Maison - Financement, afin de garantir sa réussite et de satisfaire vos exigences !
DES ANNÉES D'EXPÉRIENCES
Depuis 1962, la marque Maisons de l’Avenir inspire confiance et sérénité, une si longue expérience dans la construction de maisons individuelles, c’est un vrai gage de qualité !