Prix Maison + Terrain
- À partir de 261 150 €
Référence
- LA2366445_6
Maison personnalisable
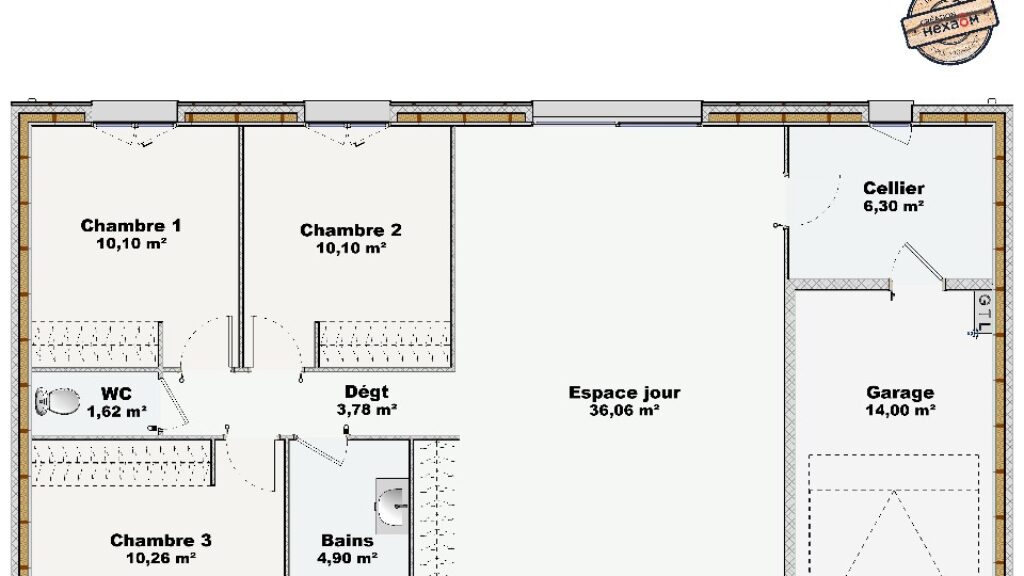
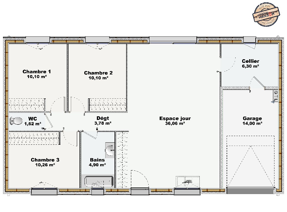
- Chambres : 3
- Nombre de pièces : 4
- Surface maison : 83 m²
- Surface terrain : 363 m²
- Garage/Carport
Performances énergétiques
- Classe énergétique : A
Description
Maison F4 (83 m²) à vendre à Quévert
EMPLACEMENT PRIVILÉGIÉ - PROCHE DE DINAN
MAISON BOIS QUALITATIVE, ECONOMIQUE ET DURABLE 4 PIÈCES NEUVE
En vente : localisée à 13 km de la Manche et à 21 km de Saint-Malo, Maisons de l'Avenir Saint-Carné vous présente cette maison de 4 pièces de plain-pied de 83 m² bénéficiant d'un emplacement d'exception dans Quévert (22100). Conçue de plain-pied, elle inclut trois chambres, une cuisine et une salle de bains.
Le terrain du bien est de 363 m².
La maison est neuve.
La maison se trouve dans un quartier convoité. Il y a l'École Primaire Publique le Petit Prince à moins de 10 minutes à pied. Niveau transports en commun, on trouve trois gares (Dinan, Corseul-Languenan et La Hisse) à moins de 10 minutes en voiture. On trouve un accès à la nationale N176 à 2 km. Il y a un tennis, une bibliothèque, deux boulangeries, un commerce et un bureau de poste à quelques minutes du logement.
Elle est à vendre pour la somme de 261 150 €.
Contactez notre agence (AMIRI Laetitia : 02-99-83-07-20) pour plus d'informations sur la maison ou sur les modalités de vente.
EMPLACEMENT PRIVILÉGIÉ - PROCHE DE DINAN
MAISON BOIS QUALITATIVE, ECONOMIQUE ET DURABLE 4 PIÈCES NEUVE
En vente : localisée à 13 km de la Manche et à 21 km de Saint-Malo, Maisons de l'Avenir Saint-Carné vous présente cette maison de 4 pièces de plain-pied de 83 m² bénéficiant d'un emplacement d'exception dans Quévert (22100). Conçue de plain-pied, elle inclut trois chambres, une cuisine et une salle de bains.
Le terrain du bien est de 363 m².
La maison est neuve.
La maison se trouve dans un quartier convoité. Il y a l'École Primaire Publique le Petit Prince à moins de… Lire la suite
Maison F4 (83 m²) à vendre à Quévert
EMPLACEMENT PRIVILÉGIÉ - PROCHE DE DINAN
MAISON BOIS QUALITATIVE, ECONOMIQUE ET DURABLE 4 PIÈCES NEUVE
En vente : localisée à 13 km de la Manche et à 21 km de Saint-Malo, Maisons de l'Avenir Saint-Carné vous présente cette maison de 4 pièces de plain-pied de 83 m² bénéficiant d'un emplacement d'exception dans Quévert (22100). Conçue de plain-pied, elle inclut trois chambres, une cuisine et une salle de bains.
Le terrain du bien est de 363 m².
La maison est neuve.
La maison se trouve dans un quartier convoité. Il y a l'École Primaire Publique le Petit Prince à moins de 10 minutes à pied. Niveau transports en commun, on trouve trois gares (Dinan, Corseul-Languenan et La Hisse) à moins de 10 minutes en voiture. On trouve un accès à la nationale N176 à 2 km. Il y a un tennis, une bibliothèque, deux boulangeries, un commerce et un bureau de poste à quelques minutes du logement.
Elle est à vendre pour la somme de 261 150 €.
Contactez notre agence (AMIRI Laetitia : 02-99-83-07-20) pour plus d'informations sur la maison ou sur les modalités de vente.
Maisons de l’Avenir, constructeur de maisons individuelles, propose en collaboration avec ses partenaires fonciers, une sélection de terrains constructibles, selon disponibilité, pour la construction de maisons neuves définies par le constructeur, avec un contrat de construction de maison individuelle, dans le cadre de la loi du 19/12/1990. Prix net, hors frais notariés, d'enregistrement et de publicité foncière
Terrain proposé au prix de : 61 900 €
Maison proposée au prix de : 199 250 €
Etiquette énergie : A. Assurances et garanties du constructeur (RC professionnelle, décennale, dommage ouvrage, Garantie de livraison à prix et délai convenu). https://www.maisonsdelavenir.com/mentions-legales/
Localisation
Une maison 100% personnalisable
-
Garage
-
Agencement
-
Revêtements extérieurs
-
Toiture
-
Ouvertures
Nos garanties constructeur
UNE MAISON 100% PERSONNALISÉE
Définir un style architectural (contemporain, moderne, traditionnel) et un plan adapté à votre mode de vie pour mettre en lumière votre projet de construction, tel est notre quotidien !
SERVICE 3 EN 1
Nos conseillers habitat vous accompagnent tout au long de votre projet : Terrain – Maison - Financement, afin de garantir sa réussite et de satisfaire vos exigences !
DES ANNÉES D'EXPÉRIENCES
Depuis 1962, la marque Maisons de l’Avenir inspire confiance et sérénité, une si longue expérience dans la construction de maisons individuelles, c’est un vrai gage de qualité !





























