Prix Maison + Terrain
- À partir de 228 600 €
Référence
- DM2378127_2
Maison personnalisable
- Chambres : 4
- Nombre de pièces : 5
- Surface maison : 89 m²
- Surface terrain : 310 m²
- Garage/Carport
Performances énergétiques
- Classe énergétique : A
Description
Maison F5 (89 m²) en vente à Québriac
IDÉALEMENT SITUÉE - MAISON 5 PIÈCES NEUVE
À 24 km de la Manche et à deux pas de Rennes, nous sommes heureux de vous proposer cette maison de 5 pièces de 89 m² et de 310 m² de terrain idéalement située dans Québriac (35190).
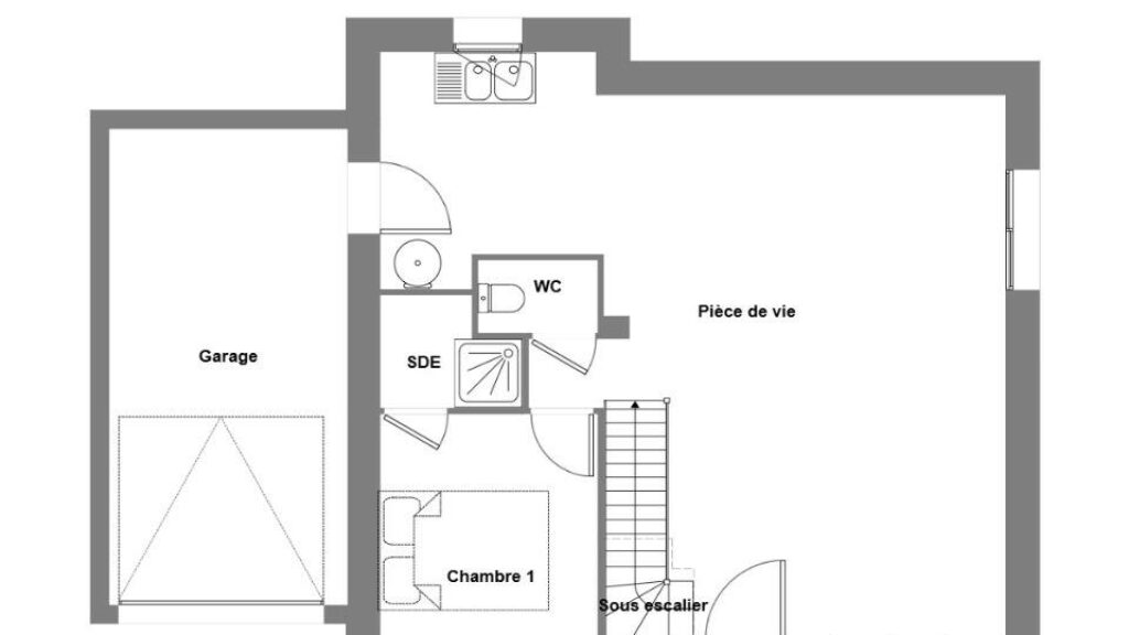
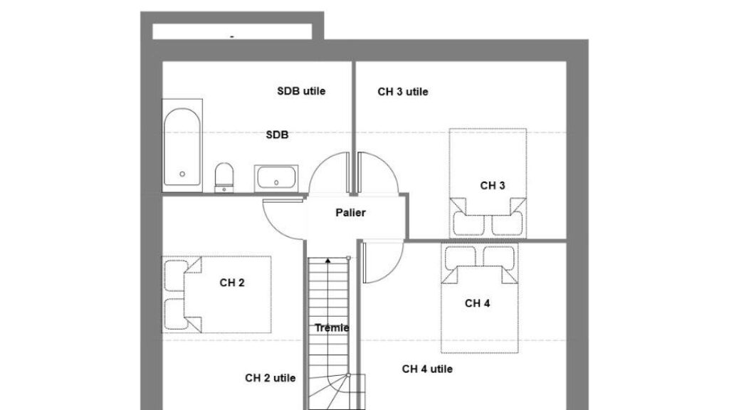
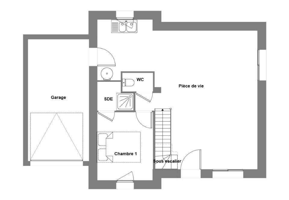
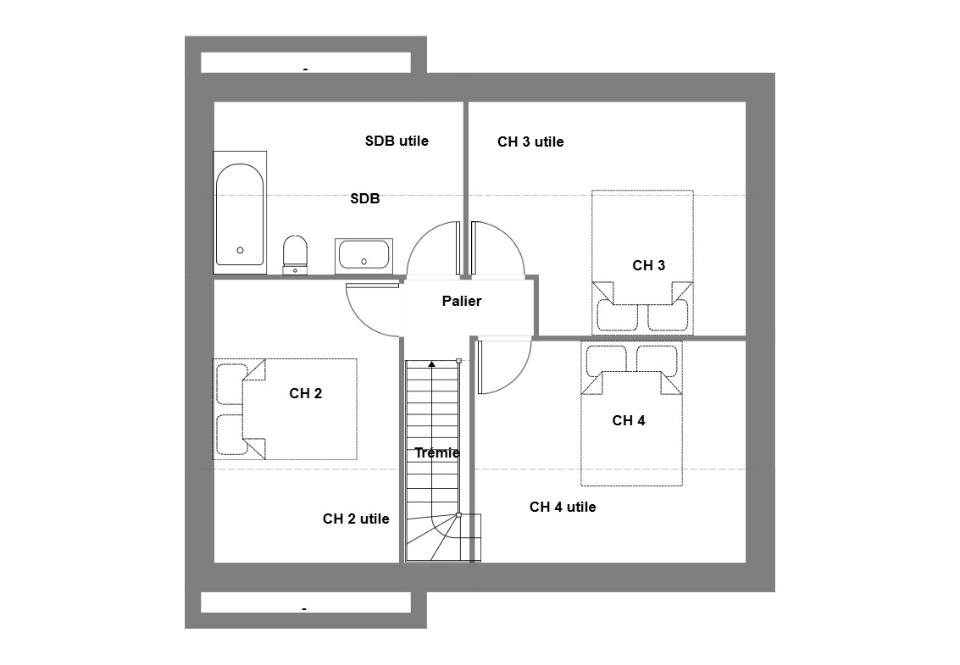
Cette maison comporte 2 niveaux. Son intérieur comporte quatre chambres, une cuisine et deux salles de bains. La maison est neuve.
Cette maison se situe dans un secteur prisé. On trouve l'École Primaire Publique de la Liberté à moins de 10 minutes à pied. La nationale N12 est accessible à 20 km. Il y a une épicerie à proximité de la maison.
Elle est à vendre pour la somme de 228 600 €.
Contactez notre agence (MESAS Dimitri : 02-99-83-07-20) pour obtenir de plus amples informations sur la maison, sur les modalités de vente ou sur les démarches à suivre.
IDÉALEMENT SITUÉE - MAISON 5 PIÈCES NEUVE
À 24 km de la Manche et à deux pas de Rennes, nous sommes heureux de vous proposer cette maison de 5 pièces de 89 m² et de 310 m² de terrain idéalement située dans Québriac (35190).
Cette maison comporte 2 niveaux. Son intérieur comporte quatre chambres, une cuisine et deux salles de bains. La maison est neuve.
Cette maison se situe dans un secteur prisé. On trouve l'École Primaire Publique de la Liberté à moins de 10 minutes à pied. La nationale N12 est accessible à 20 km. Il y… Lire la suite
Maison F5 (89 m²) en vente à Québriac
IDÉALEMENT SITUÉE - MAISON 5 PIÈCES NEUVE
À 24 km de la Manche et à deux pas de Rennes, nous sommes heureux de vous proposer cette maison de 5 pièces de 89 m² et de 310 m² de terrain idéalement située dans Québriac (35190).
Cette maison comporte 2 niveaux. Son intérieur comporte quatre chambres, une cuisine et deux salles de bains. La maison est neuve.
Cette maison se situe dans un secteur prisé. On trouve l'École Primaire Publique de la Liberté à moins de 10 minutes à pied. La nationale N12 est accessible à 20 km. Il y a une épicerie à proximité de la maison.
Elle est à vendre pour la somme de 228 600 €.
Contactez notre agence (MESAS Dimitri : 02-99-83-07-20) pour obtenir de plus amples informations sur la maison, sur les modalités de vente ou sur les démarches à suivre.
Maisons de l’Avenir, constructeur de maisons individuelles, propose en collaboration avec ses partenaires fonciers, une sélection de terrains constructibles, selon disponibilité, pour la construction de maisons neuves définies par le constructeur, avec un contrat de construction de maison individuelle, dans le cadre de la loi du 19/12/1990. Prix net, hors frais notariés, d'enregistrement et de publicité foncière
Terrain proposé au prix de : 51 150 €
Maison proposée au prix de : 177 450 €
Etiquette énergie : A. Assurances et garanties du constructeur (RC professionnelle, décennale, dommage ouvrage, Garantie de livraison à prix et délai convenu). https://www.maisonsdelavenir.com/mentions-legales/
Localisation
Une maison 100% personnalisable
-
Garage
-
Agencement
-
Revêtements extérieurs
-
Toiture
-
Ouvertures
Nos garanties constructeur
UNE MAISON 100% PERSONNALISÉE
Définir un style architectural (contemporain, moderne, traditionnel) et un plan adapté à votre mode de vie pour mettre en lumière votre projet de construction, tel est notre quotidien !
SERVICE 3 EN 1
Nos conseillers habitat vous accompagnent tout au long de votre projet : Terrain – Maison - Financement, afin de garantir sa réussite et de satisfaire vos exigences !
DES ANNÉES D'EXPÉRIENCES
Depuis 1962, la marque Maisons de l’Avenir inspire confiance et sérénité, une si longue expérience dans la construction de maisons individuelles, c’est un vrai gage de qualité !





















