Prix Maison + Terrain
- À partir de 320 600 €
Référence
- LA2328890_4
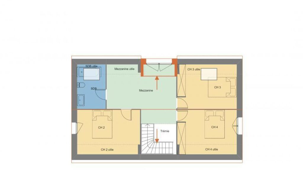
Maison personnalisable
- Chambres : 4
- Nombre de pièces : 5
- Surface maison : 120 m²
- Surface terrain : 400 m²
- Garage/Carport
Performances énergétiques
- Classe énergétique : A
Description
VENTE : maison de 5 pièces (120 m²) à Québriac
IDÉALEMENT SITUÉE - MAISON 5 PIÈCES NEUVE
À vendre : à 24 km de la Manche et à deux pas de Rennes, nous sommes ravis de vous présenter cette maison de 5 pièces de 120 m² et de 400 m² de terrain idéalement située dans Québriac (35190).
Cette maison comporte 2 niveaux. Son intérieur offre quatre chambres, une cuisine et deux salles de bains. Cette maison est neuve.
La maison est située dans un quartier prisé. L'École Primaire Publique de la Liberté est implantée à moins de 10 minutes à pied. La nationale N12 est accessible à 20 km. On trouve une épicerie à quelques minutes.
Elle est à vendre pour la somme de 320 600 €.
Contactez Laetitia AMIRI (02-99-83-07-20) pour tout renseignement sur la maison ou sur les démarches à suivre. Donnez vie à vos projets immobiliers avec Maisons de l'Avenir Saint-Carné.
IDÉALEMENT SITUÉE - MAISON 5 PIÈCES NEUVE
À vendre : à 24 km de la Manche et à deux pas de Rennes, nous sommes ravis de vous présenter cette maison de 5 pièces de 120 m² et de 400 m² de terrain idéalement située dans Québriac (35190).
Cette maison comporte 2 niveaux. Son intérieur offre quatre chambres, une cuisine et deux salles de bains. Cette maison est neuve.
La maison est située dans un quartier prisé. L'École Primaire Publique de la Liberté est implantée à moins de 10 minutes à pied. La nationale N12 est accessible… Lire la suite
VENTE : maison de 5 pièces (120 m²) à Québriac
IDÉALEMENT SITUÉE - MAISON 5 PIÈCES NEUVE
À vendre : à 24 km de la Manche et à deux pas de Rennes, nous sommes ravis de vous présenter cette maison de 5 pièces de 120 m² et de 400 m² de terrain idéalement située dans Québriac (35190).
Cette maison comporte 2 niveaux. Son intérieur offre quatre chambres, une cuisine et deux salles de bains. Cette maison est neuve.
La maison est située dans un quartier prisé. L'École Primaire Publique de la Liberté est implantée à moins de 10 minutes à pied. La nationale N12 est accessible à 20 km. On trouve une épicerie à quelques minutes.
Elle est à vendre pour la somme de 320 600 €.
Contactez Laetitia AMIRI (02-99-83-07-20) pour tout renseignement sur la maison ou sur les démarches à suivre. Donnez vie à vos projets immobiliers avec Maisons de l'Avenir Saint-Carné.
Maisons de l’Avenir, constructeur de maisons individuelles, propose en collaboration avec ses partenaires fonciers, une sélection de terrains constructibles, selon disponibilité, pour la construction de maisons neuves définies par le constructeur, avec un contrat de construction de maison individuelle, dans le cadre de la loi du 19/12/1990. Prix net, hors frais notariés, d'enregistrement et de publicité foncière
Terrain proposé au prix de : 72 000 €
Maison proposée au prix de : 248 600 €
Etiquette énergie : A. Assurances et garanties du constructeur (RC professionnelle, décennale, dommage ouvrage, Garantie de livraison à prix et délai convenu). https://www.maisonsdelavenir.com/mentions-legales/
Localisation
Une maison 100% personnalisable
-
Garage
-
Agencement
-
Revêtements extérieurs
-
Toiture
-
Ouvertures
Nos garanties constructeur
UNE MAISON 100% PERSONNALISÉE
Définir un style architectural (contemporain, moderne, traditionnel) et un plan adapté à votre mode de vie pour mettre en lumière votre projet de construction, tel est notre quotidien !
SERVICE 3 EN 1
Nos conseillers habitat vous accompagnent tout au long de votre projet : Terrain – Maison - Financement, afin de garantir sa réussite et de satisfaire vos exigences !
DES ANNÉES D'EXPÉRIENCES
Depuis 1962, la marque Maisons de l’Avenir inspire confiance et sérénité, une si longue expérience dans la construction de maisons individuelles, c’est un vrai gage de qualité !















