Prix Maison + Terrain
- À partir de 289 000 €
Référence
- CC2321969_3
Maison personnalisable
- Chambres : 4
- Nombre de pièces : 5
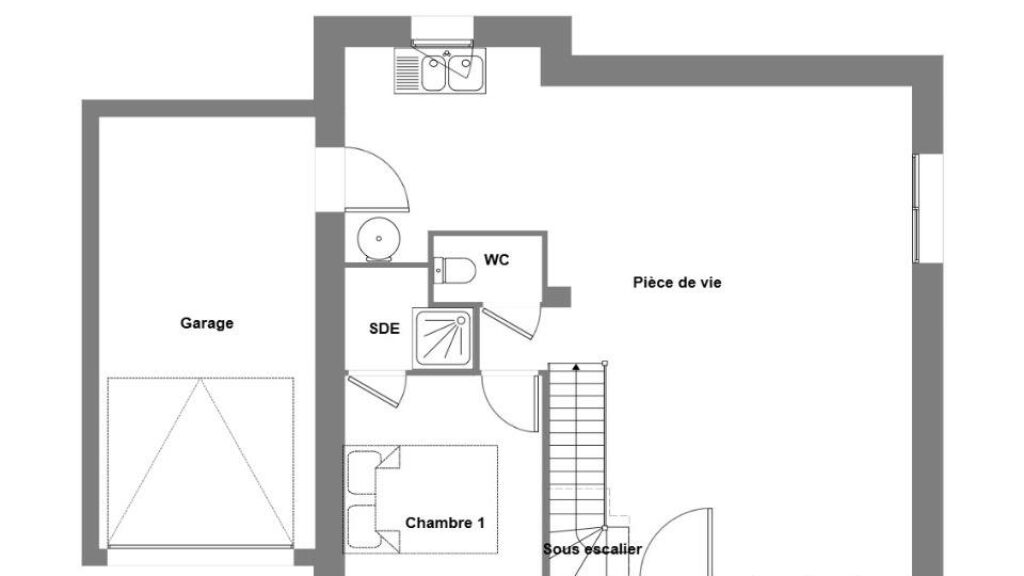
- Surface maison : 89 m²
- Surface terrain : 504 m²
- Garage/Carport
Performances énergétiques
- Classe énergétique : A
Description
VENTE d'une maison T5 (89 m²) à Pont-Scorff
QUARTIER RECHERCHÉ - MAISON 5 PIÈCES NEUVE
À vendre : localisée à 14 km de l'océan Atlantique et à quelques kilomètres de Lorient, dans un quartier convoité de Pont-Scorff (56620), Maisons de l'Avenir Lorient vous présente cette maison de 5 pièces de 89 m².
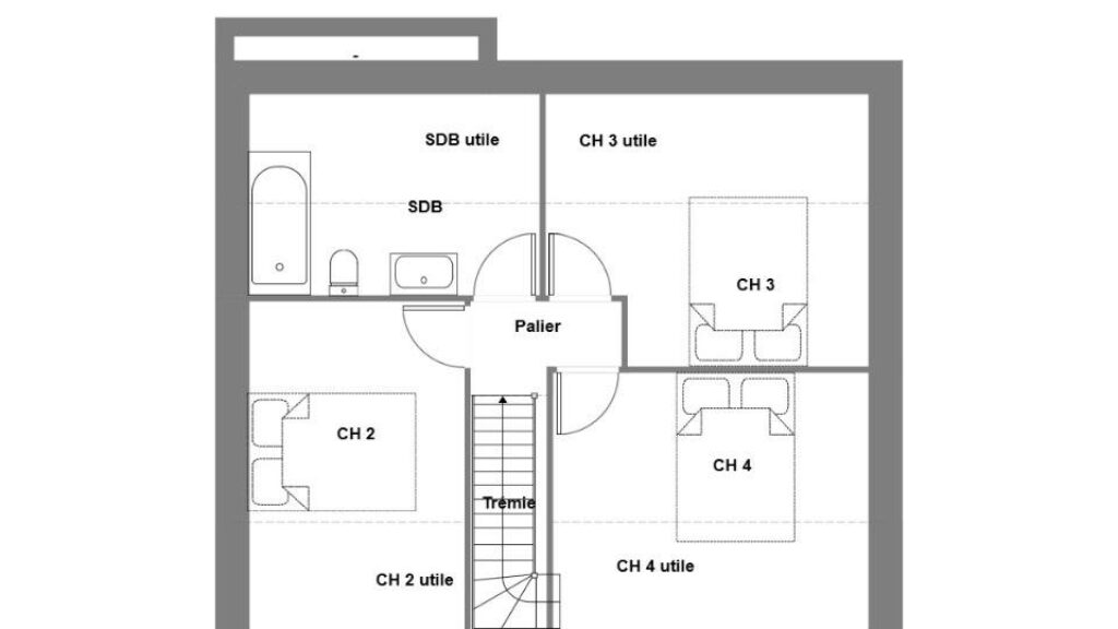
Il s'agit d'une maison de 2 niveaux. Elle se divise en quatre chambres, une cuisine et deux salles de bains. La maison est neuve.
Le terrain du bien s'étend sur 504 m².
La propriété se situe dans un secteur attractif. Il y a l'École Élémentaire Publique Marc Chagall, l'École Maternelle Publique Pierre Thomas et l'École Primaire Privée Notre-Dame du Rosaire à moins de 10 minutes à pied. Niveau transports, on trouve trois gares (Gestel, Lorient Bretagne Sud et Hennebont) à moins de 10 minutes en voiture. La nationale N165 est accessible à 5 km. Il y a un tennis, des commerces, deux boulangeries, une poissonnerie, un bureau de poste et une boucherie-charcuterie dans les environs.
Son prix de vente est de 289 000 €.
Prenez contact avec Christophe COLLOCH (02-97-21-63-96) pour tout renseignement sur la maison. Maisons de l'Avenir Lorient vous accompagne dans tous vos projets immobiliers et à toutes les étapes de votre projet.
QUARTIER RECHERCHÉ - MAISON 5 PIÈCES NEUVE
À vendre : localisée à 14 km de l'océan Atlantique et à quelques kilomètres de Lorient, dans un quartier convoité de Pont-Scorff (56620), Maisons de l'Avenir Lorient vous présente cette maison de 5 pièces de 89 m².
Il s'agit d'une maison de 2 niveaux. Elle se divise en quatre chambres, une cuisine et deux salles de bains. La maison est neuve.
Le terrain du bien s'étend sur 504 m².
La propriété se situe dans un secteur attractif. Il y a l'École Élémentaire Publique Marc Chagall, l'École Maternelle Publique Pierre Thomas et l'École… Lire la suite
VENTE d'une maison T5 (89 m²) à Pont-Scorff
QUARTIER RECHERCHÉ - MAISON 5 PIÈCES NEUVE
À vendre : localisée à 14 km de l'océan Atlantique et à quelques kilomètres de Lorient, dans un quartier convoité de Pont-Scorff (56620), Maisons de l'Avenir Lorient vous présente cette maison de 5 pièces de 89 m².
Il s'agit d'une maison de 2 niveaux. Elle se divise en quatre chambres, une cuisine et deux salles de bains. La maison est neuve.
Le terrain du bien s'étend sur 504 m².
La propriété se situe dans un secteur attractif. Il y a l'École Élémentaire Publique Marc Chagall, l'École Maternelle Publique Pierre Thomas et l'École Primaire Privée Notre-Dame du Rosaire à moins de 10 minutes à pied. Niveau transports, on trouve trois gares (Gestel, Lorient Bretagne Sud et Hennebont) à moins de 10 minutes en voiture. La nationale N165 est accessible à 5 km. Il y a un tennis, des commerces, deux boulangeries, une poissonnerie, un bureau de poste et une boucherie-charcuterie dans les environs.
Son prix de vente est de 289 000 €.
Prenez contact avec Christophe COLLOCH (02-97-21-63-96) pour tout renseignement sur la maison. Maisons de l'Avenir Lorient vous accompagne dans tous vos projets immobiliers et à toutes les étapes de votre projet.
Maisons de l’Avenir, constructeur de maisons individuelles, propose en collaboration avec ses partenaires fonciers, une sélection de terrains constructibles, selon disponibilité, pour la construction de maisons neuves définies par le constructeur, avec un contrat de construction de maison individuelle, dans le cadre de la loi du 19/12/1990. Prix net, hors frais notariés, d'enregistrement et de publicité foncière
Terrain proposé au prix de : 89 000 €
Maison proposée au prix de : 200 000 €
Etiquette énergie : A. Assurances et garanties du constructeur (RC professionnelle, décennale, dommage ouvrage, Garantie de livraison à prix et délai convenu). https://www.maisonsdelavenir.com/mentions-legales/
Localisation
Une maison 100% personnalisable
-
Garage
-
Agencement
-
Revêtements extérieurs
-
Toiture
-
Ouvertures
Nos garanties constructeur
UNE MAISON 100% PERSONNALISÉE
Définir un style architectural (contemporain, moderne, traditionnel) et un plan adapté à votre mode de vie pour mettre en lumière votre projet de construction, tel est notre quotidien !
SERVICE 3 EN 1
Nos conseillers habitat vous accompagnent tout au long de votre projet : Terrain – Maison - Financement, afin de garantir sa réussite et de satisfaire vos exigences !
DES ANNÉES D'EXPÉRIENCES
Depuis 1962, la marque Maisons de l’Avenir inspire confiance et sérénité, une si longue expérience dans la construction de maisons individuelles, c’est un vrai gage de qualité !





















