 Nous contacter
 Nous contacter- Prix Maison + Terrain- À partir de 293 000 €
 
- Référence- QL2269681_2
 
- Maison personnalisable- Chambres : 5
- Nombre de pièces : 6
- Surface maison : 119 m²
- Surface terrain : 415 m²
- Garage/Carport
 
- Performances énergétiques- Classe énergétique : A
 
Description
VENTE : maison de 6 pièces (119 m²) à Plurien
PROCHE DE SAINT-BRIEUC - MAISON 6 PIÈCES NEUVE
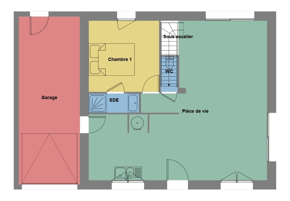
À vendre : à 3 km de la Manche et à deux pas de Saint-Brieuc, nous vous proposons cette maison de 6 pièces de 119 m² et de 415 m² de terrain à Plurien (22240). Elle propose cinq chambres, une cuisine et deux salles de bains.
Cette maison compte 2 niveaux. Elle est neuve.
L'École Primaire Publique de Plurien est implantée à moins de 10 minutes à pied. On trouve un tennis, deux commerces, une boulangerie, une boucherie-charcuterie, une épicerie et une poissonnerie dans les environs.
Son prix de vente est de 293 000 €.
Prenez contact avec notre agence (Quentin LEZOUR : 02-99-83-07-20) pour toute information sur cette maison ou sur les modalités de vente. Maisons de l'Avenir Saint-Carné vous accompagne à toutes les étapes de votre projet et dans toutes vos démarches.
PROCHE DE SAINT-BRIEUC - MAISON 6 PIÈCES NEUVE
À vendre : à 3 km de la Manche et à deux pas de Saint-Brieuc, nous vous proposons cette maison de 6 pièces de 119 m² et de 415 m² de terrain à Plurien (22240). Elle propose cinq chambres, une cuisine et deux salles de bains.
Cette maison compte 2 niveaux. Elle est neuve.
L'École Primaire Publique de Plurien est implantée à moins de 10 minutes à pied. On trouve un tennis, deux commerces, une boulangerie, une boucherie-charcuterie, une épicerie et une poissonnerie dans les environs.
Son prix de… Lire la suite
VENTE : maison de 6 pièces (119 m²) à Plurien
PROCHE DE SAINT-BRIEUC - MAISON 6 PIÈCES NEUVE
À vendre : à 3 km de la Manche et à deux pas de Saint-Brieuc, nous vous proposons cette maison de 6 pièces de 119 m² et de 415 m² de terrain à Plurien (22240). Elle propose cinq chambres, une cuisine et deux salles de bains.
Cette maison compte 2 niveaux. Elle est neuve.
L'École Primaire Publique de Plurien est implantée à moins de 10 minutes à pied. On trouve un tennis, deux commerces, une boulangerie, une boucherie-charcuterie, une épicerie et une poissonnerie dans les environs.
Son prix de vente est de 293 000 €.
Prenez contact avec notre agence (Quentin LEZOUR : 02-99-83-07-20) pour toute information sur cette maison ou sur les modalités de vente. Maisons de l'Avenir Saint-Carné vous accompagne à toutes les étapes de votre projet et dans toutes vos démarches.
Maisons de l’Avenir, constructeur de maisons individuelles, propose en collaboration avec ses partenaires fonciers, une sélection de terrains constructibles, selon disponibilité, pour la construction de maisons neuves définies par le constructeur, avec un contrat de construction de maison individuelle, dans le cadre de la loi du 19/12/1990. Prix net, hors frais notariés, d'enregistrement et de publicité foncière
Terrain proposé au prix de : 82 000 €
Maison proposée au prix de : 211 000 €
Etiquette énergie : A. Assurances et garanties du constructeur (RC professionnelle, décennale, dommage ouvrage, Garantie de livraison à prix et délai convenu). https://www.maisonsdelavenir.com/mentions-legales/
Localisation
Une maison 100% personnalisable
-  Garage 
-  Agencement 
-  Revêtements extérieurs 
-  Toiture 
-  Ouvertures 
Nos garanties constructeur
UNE MAISON 100% PERSONNALISÉE
Définir un style architectural (contemporain, moderne, traditionnel) et un plan adapté à votre mode de vie pour mettre en lumière votre projet de construction, tel est notre quotidien !
SERVICE 3 EN 1
Nos conseillers habitat vous accompagnent tout au long de votre projet : Terrain – Maison - Financement, afin de garantir sa réussite et de satisfaire vos exigences !
DES ANNÉES D'EXPÉRIENCES
Depuis 1962, la marque Maisons de l’Avenir inspire confiance et sérénité, une si longue expérience dans la construction de maisons individuelles, c’est un vrai gage de qualité !




















 
  
 