Maison à construire de 80m² (3 chambres) sur un terrain de 511m² à Plouguerneau (29880)

2372209-5377modele720220316ecD2z.jpeg
Nous contacter
  • Prix Maison + Terrain

    • À partir de 250 000 €
  • Référence

    • ET2372205_3
  • Maison personnalisable

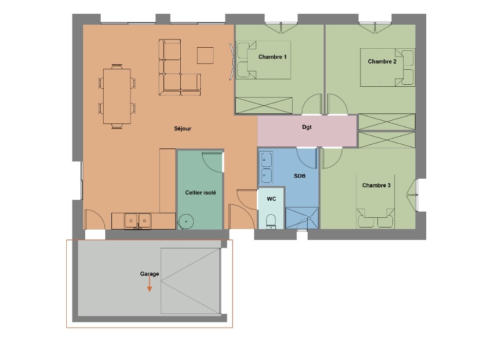
    • Chambres : 3
    • Nombre de pièces : 4
    • Surface maison : 80 m²
    • Surface terrain : 511 m²
    • Garage/Carport
  • Performances énergétiques

    • Classe énergétique : A

Description

📢 À vendre : terrain disponible à Plouguerneau ! 🌿🏡

Saisissez cette opportunité rare sur la commune de Plouguerneau ! Ce magnifique terrain de 511 m², situé dans un petit lotissement, bénéficie d'une belle exposition et d'un cadre idéal pour votre futur projet de construction.

🏡 Projet clé en main : Nous vous proposons les plans d'une maison de 80 m², pensée dans le cadre de notre concept Bâti Activ Passif, alliant performance énergétique et confort.
Cette maison comprend :
✔️ 3 chambres
✔️ Un vaste espace de vie lumineux
✔️ 2 salles de bains
✔️ Un garage

💰 Opération terrain + maison : 250 000 €


Une occasion à ne pas manquer !

Contactez vite Erwan TILLY des Maisons de l'Avenir pour organiser une visite et commencer à concevoir les plans sur mesure de votre future maison.

📞 Erwan TILLY - Maisons de l'Avenir

Masquer
📢 À vendre : terrain disponible à Plouguerneau ! 🌿🏡

Saisissez cette opportunité rare sur la commune de Plouguerneau ! Ce magnifique terrain de 511 m², situé dans un petit lotissement, bénéficie d'une belle exposition et d'un cadre idéal pour votre futur projet de construction.

🏡 Projet clé en main : Nous vous proposons les plans d'une maison de 80 m², pensée dans le cadre de notre concept Bâti Activ Passif, alliant performance énergétique et confort.
Cette maison comprend :
✔️ 3 chambres
✔️ Un vaste espace de vie lumineux
✔️ 2 salles de bains
✔️ Un garage

💰 Opération terrain + maison : 250 000 €


Une occasion… Lire la suite

📢 À vendre : terrain disponible à Plouguerneau ! 🌿🏡

Saisissez cette opportunité rare sur la commune de Plouguerneau ! Ce magnifique terrain de 511 m², situé dans un petit lotissement, bénéficie d'une belle exposition et d'un cadre idéal pour votre futur projet de construction.

🏡 Projet clé en main : Nous vous proposons les plans d'une maison de 80 m², pensée dans le cadre de notre concept Bâti Activ Passif, alliant performance énergétique et confort.
Cette maison comprend :
✔️ 3 chambres
✔️ Un vaste espace de vie lumineux
✔️ 2 salles de bains
✔️ Un garage

💰 Opération terrain + maison : 250 000 €


Une occasion à ne pas manquer !

Contactez vite Erwan TILLY des Maisons de l'Avenir pour organiser une visite et commencer à concevoir les plans sur mesure de votre future maison.

📞 Erwan TILLY - Maisons de l'Avenir

Localisation

Une maison 100% personnalisable

  • Garage

  • Agencement

  • Revêtements extérieurs

  • Toiture

  • Ouvertures

Nos garanties constructeur

UNE MAISON 100% PERSONNALISÉE

Définir un style architectural (contemporain, moderne, traditionnel) et un plan adapté à votre mode de vie pour mettre en lumière votre projet de construction, tel est notre quotidien !

SERVICE 3 EN 1

Nos conseillers habitat vous accompagnent tout au long de votre projet : Terrain – Maison - Financement, afin de garantir sa réussite et de satisfaire vos exigences !

DES ANNÉES D'EXPÉRIENCES

Depuis 1962, la marque Maisons de l’Avenir inspire confiance et sérénité, une si longue expérience dans la construction de maisons individuelles, c’est un vrai gage de qualité !