 Nous contacter
 Nous contacter- Prix Maison + Terrain- À partir de 469 000 €
 
- Référence- ET2323758_3
 
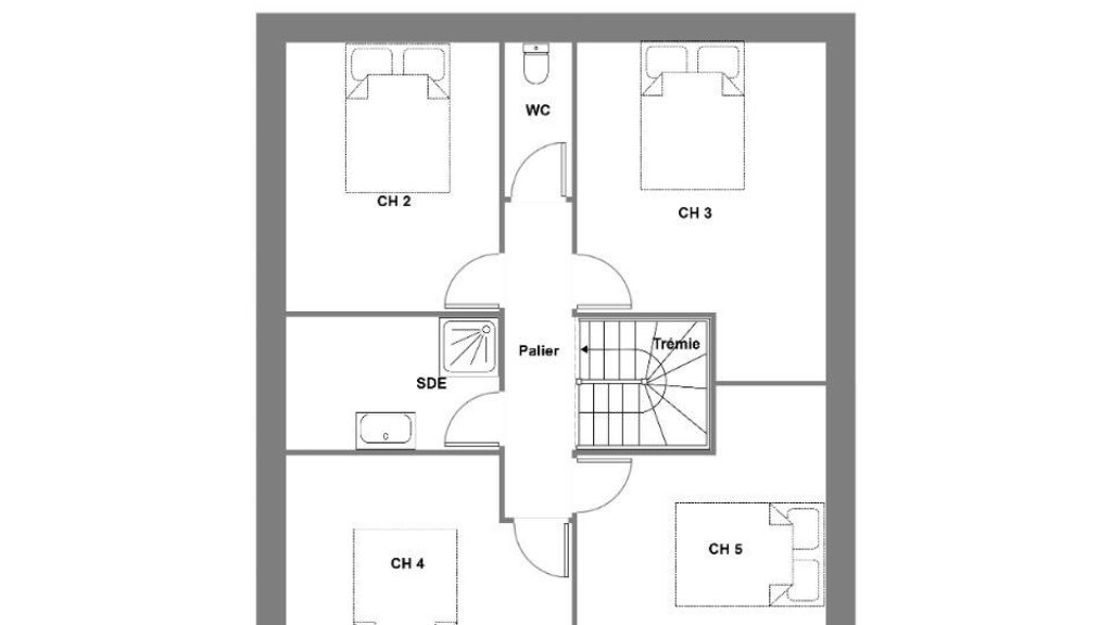
- Maison personnalisable- Chambres : 4
- Nombre de pièces : 5
- Surface maison : 130 m²
- Surface terrain : 480 m²
- Garage/Carport
 
- Performances énergétiques- Classe énergétique : A
 
Description
🏡 À Vendre : Terrain de 480m² a Plougonvelin - 122 000€ 🌊
Découvrez ce magnifique terrain de 480m², idéalement situé dans un petit lotissement paisible sur la commune de Plougonvelin, à deux pas de la mer. 🌅 Ce terrain offre un cadre exceptionnel pour construire la maison de vos rêves, alliant tranquillité et proximité avec les plages. 🏖️
Maisons de l'Avenir vous propose un modèle sur plan de 130m², comprenant 4 chambres dont une suite parentale, un vaste espace de vie de 48m², deux salles de bains, et un grand garage. 🛏️🍽️🚿
Les plans sont entièrement modifiables, permettant ainsi une maison sur mesure dans tous les aspects, conçue dans le cadre de notre gamme de maisons passives Bâti Activ. 🏠🌿 Cette maison a été pensée pour maximiser les apports de lumière naturelle, favorisant ainsi les gains énergétiques. 🌞⚡
L'opération globale terrain + maison est de 469 000€. 💰
Ce bien rare et recherché est une opportunité à ne pas manquer. ⭐
Pour plus d'informations ou pour organiser une visite, contactez Erwan TILLY 📞. Ne tardez pas, ce terrain risque de partir rapidement ! ⏳
Découvrez ce magnifique terrain de 480m², idéalement situé dans un petit lotissement paisible sur la commune de Plougonvelin, à deux pas de la mer. 🌅 Ce terrain offre un cadre exceptionnel pour construire la maison de vos rêves, alliant tranquillité et proximité avec les plages. 🏖️
Maisons de l'Avenir vous propose un modèle sur plan de 130m², comprenant 4 chambres dont une suite parentale, un vaste espace de vie de 48m², deux salles de bains, et un grand garage. 🛏️🍽️🚿
Les plans sont entièrement modifiables, permettant ainsi une maison sur… Lire la suite
🏡 À Vendre : Terrain de 480m² a Plougonvelin - 122 000€ 🌊
Découvrez ce magnifique terrain de 480m², idéalement situé dans un petit lotissement paisible sur la commune de Plougonvelin, à deux pas de la mer. 🌅 Ce terrain offre un cadre exceptionnel pour construire la maison de vos rêves, alliant tranquillité et proximité avec les plages. 🏖️
Maisons de l'Avenir vous propose un modèle sur plan de 130m², comprenant 4 chambres dont une suite parentale, un vaste espace de vie de 48m², deux salles de bains, et un grand garage. 🛏️🍽️🚿
Les plans sont entièrement modifiables, permettant ainsi une maison sur mesure dans tous les aspects, conçue dans le cadre de notre gamme de maisons passives Bâti Activ. 🏠🌿 Cette maison a été pensée pour maximiser les apports de lumière naturelle, favorisant ainsi les gains énergétiques. 🌞⚡
L'opération globale terrain + maison est de 469 000€. 💰
Ce bien rare et recherché est une opportunité à ne pas manquer. ⭐
Pour plus d'informations ou pour organiser une visite, contactez Erwan TILLY 📞. Ne tardez pas, ce terrain risque de partir rapidement ! ⏳
Maisons de l’Avenir, constructeur de maisons individuelles, propose en collaboration avec ses partenaires fonciers, une sélection de terrains constructibles, selon disponibilité, pour la construction de maisons neuves définies par le constructeur, avec un contrat de construction de maison individuelle, dans le cadre de la loi du 19/12/1990. Prix net, hors frais notariés, d'enregistrement et de publicité foncière
Terrain proposé au prix de : 122 000 €
Maison proposée au prix de : 347 000 €
Etiquette énergie : A. Assurances et garanties du constructeur (RC professionnelle, décennale, dommage ouvrage, Garantie de livraison à prix et délai convenu). https://www.maisonsdelavenir.com/mentions-legales/
Localisation
Une maison 100% personnalisable
-  Garage 
-  Agencement 
-  Revêtements extérieurs 
-  Toiture 
-  Ouvertures 
Nos garanties constructeur
UNE MAISON 100% PERSONNALISÉE
Définir un style architectural (contemporain, moderne, traditionnel) et un plan adapté à votre mode de vie pour mettre en lumière votre projet de construction, tel est notre quotidien !
SERVICE 3 EN 1
Nos conseillers habitat vous accompagnent tout au long de votre projet : Terrain – Maison - Financement, afin de garantir sa réussite et de satisfaire vos exigences !
DES ANNÉES D'EXPÉRIENCES
Depuis 1962, la marque Maisons de l’Avenir inspire confiance et sérénité, une si longue expérience dans la construction de maisons individuelles, c’est un vrai gage de qualité !
















 
  
 