Maison à construire de 71m² (2 chambres) sur un terrain de 1050m² à Ploudaniel (29260)

2329887-4586modele620250606k7mAp.jpeg
Nous contacter
  • Prix Maison + Terrain

    • À partir de 229 200 €
  • Référence

    • AC2329637_3
  • Maison personnalisable

    • Chambres : 2
    • Nombre de pièces : 3
    • Surface maison : 71 m²
    • Surface terrain : 1050 m²
    • Garage/Carport
  • Performances énergétiques

    • Classe énergétique : A

Description

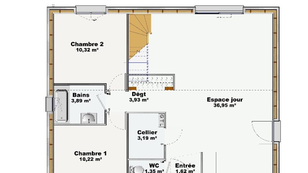
VENTE d'une maison T3 (71 m²) à Ploudaniel
Nouveau Murs Ossature Bois

Cette belle maison traditionnelle aux lignes contemporaines offre 71m² habitable .
Elle dispose d'une belle pièce de vie offrant un maximum de lumière, 2 chambres, une salle de bains, un WC et son cellier.
L'étage dispose de combles aménageables.

L'orientation de cette maison vous permettra de bénéficier d'un maximum de lumière et de chaleur naturelle pour davantage d'économies et de douceur de vivre.

Aux normes RE2020, peu énergivore, elle vous ravira par son confort de vie.
Son prix de vente est de 229 200 €.
Contactez Aurélie CAGNARD (tél : 02-98-03-90-90) pour obtenir de plus amples renseignements sur la propriété ou sur les démarches à suivre. Concrétisez vos projets immobiliers avec Maisons de l'Avenir Guipavas.

Masquer
VENTE d'une maison T3 (71 m²) à Ploudaniel
Nouveau Murs Ossature Bois

Cette belle maison traditionnelle aux lignes contemporaines offre 71m² habitable .
Elle dispose d'une belle pièce de vie offrant un maximum de lumière, 2 chambres, une salle de bains, un WC et son cellier.
L'étage dispose de combles aménageables.

L'orientation de cette maison vous permettra de bénéficier d'un maximum de lumière et de chaleur naturelle pour davantage d'économies et de douceur de vivre.

Aux normes RE2020, peu énergivore, elle vous ravira par son confort de vie.
Son prix de vente est de 229 200 €.
Contactez Aurélie CAGNARD (tél : 02-98-03-90-90) pour obtenir… Lire la suite

VENTE d'une maison T3 (71 m²) à Ploudaniel
Nouveau Murs Ossature Bois

Cette belle maison traditionnelle aux lignes contemporaines offre 71m² habitable .
Elle dispose d'une belle pièce de vie offrant un maximum de lumière, 2 chambres, une salle de bains, un WC et son cellier.
L'étage dispose de combles aménageables.

L'orientation de cette maison vous permettra de bénéficier d'un maximum de lumière et de chaleur naturelle pour davantage d'économies et de douceur de vivre.

Aux normes RE2020, peu énergivore, elle vous ravira par son confort de vie.
Son prix de vente est de 229 200 €.
Contactez Aurélie CAGNARD (tél : 02-98-03-90-90) pour obtenir de plus amples renseignements sur la propriété ou sur les démarches à suivre. Concrétisez vos projets immobiliers avec Maisons de l'Avenir Guipavas.

Localisation

Une maison 100% personnalisable

  • Garage

  • Agencement

  • Revêtements extérieurs

  • Toiture

  • Ouvertures

Nos garanties constructeur

UNE MAISON 100% PERSONNALISÉE

Définir un style architectural (contemporain, moderne, traditionnel) et un plan adapté à votre mode de vie pour mettre en lumière votre projet de construction, tel est notre quotidien !

SERVICE 3 EN 1

Nos conseillers habitat vous accompagnent tout au long de votre projet : Terrain – Maison - Financement, afin de garantir sa réussite et de satisfaire vos exigences !

DES ANNÉES D'EXPÉRIENCES

Depuis 1962, la marque Maisons de l’Avenir inspire confiance et sérénité, une si longue expérience dans la construction de maisons individuelles, c’est un vrai gage de qualité !