 Nous contacter
 Nous contacter- Prix Maison + Terrain- À partir de 267 900 €
 
- Référence- SR2314758_2
 
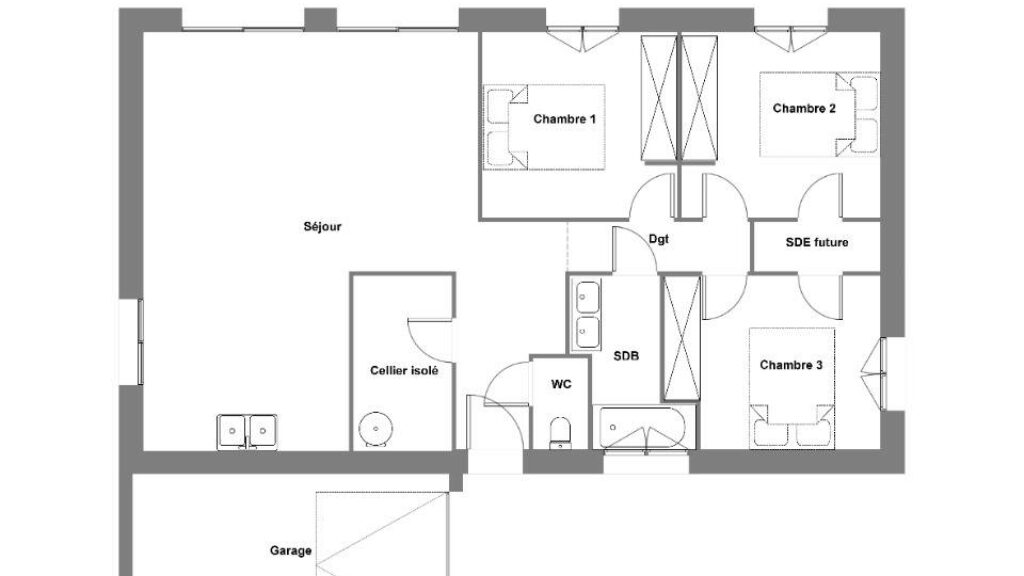
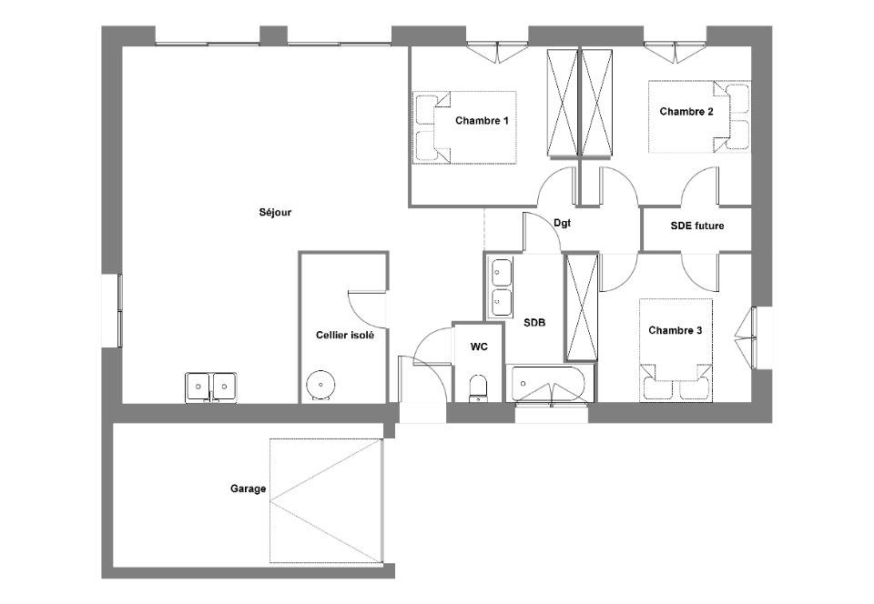
- Maison personnalisable- Chambres : 3
- Nombre de pièces : 4
- Surface maison : 80 m²
- Surface terrain : 448 m²
- Garage/Carport
 
- Performances énergétiques- Classe énergétique : A
 
Description
VENTE : maison F4 (80 m²) à Ploubazlanec
MAISON 4 PIÈCES NEUVE
À vendre : à 4 km de la Manche, Maisons de l'Avenir Saint-Brieuc vous présente cette maison de 4 pièces de plain-pied de 80 m² et de 448 m² de terrain à Ploubazlanec (22620). Elle propose trois chambres, une cuisine et une salle de bains.
La maison est neuve.
On trouve l'École Primaire Publique de Ploubazlanec et l'École Primaire Privée Saint Denis à moins de 10 minutes à pied. Côté transports en commun, il y a trois gares (Paimpol, Lancerf et Traou Nez) à moins de 10 minutes en voiture. On trouve un tennis, trois boulangeries, deux commerces, un supermarché et une boucherie-charcuterie dans les environs.
Il est à vendre pour la somme de 267 900 €.
Contactez notre agence (ROGER Samuel : 02-96-78-52-58) pour plus d'informations sur la maison, sur les démarches à suivre ou sur les modalités de vente. Maisons de l'Avenir Saint-Brieuc vous accompagne à toutes les étapes de votre projet et dans tous vos projets immobiliers.
MAISON 4 PIÈCES NEUVE
À vendre : à 4 km de la Manche, Maisons de l'Avenir Saint-Brieuc vous présente cette maison de 4 pièces de plain-pied de 80 m² et de 448 m² de terrain à Ploubazlanec (22620). Elle propose trois chambres, une cuisine et une salle de bains.
La maison est neuve.
On trouve l'École Primaire Publique de Ploubazlanec et l'École Primaire Privée Saint Denis à moins de 10 minutes à pied. Côté transports en commun, il y a trois gares (Paimpol, Lancerf et Traou Nez) à moins de 10 minutes en voiture. On trouve… Lire la suite
VENTE : maison F4 (80 m²) à Ploubazlanec
MAISON 4 PIÈCES NEUVE
À vendre : à 4 km de la Manche, Maisons de l'Avenir Saint-Brieuc vous présente cette maison de 4 pièces de plain-pied de 80 m² et de 448 m² de terrain à Ploubazlanec (22620). Elle propose trois chambres, une cuisine et une salle de bains.
La maison est neuve.
On trouve l'École Primaire Publique de Ploubazlanec et l'École Primaire Privée Saint Denis à moins de 10 minutes à pied. Côté transports en commun, il y a trois gares (Paimpol, Lancerf et Traou Nez) à moins de 10 minutes en voiture. On trouve un tennis, trois boulangeries, deux commerces, un supermarché et une boucherie-charcuterie dans les environs.
Il est à vendre pour la somme de 267 900 €.
Contactez notre agence (ROGER Samuel : 02-96-78-52-58) pour plus d'informations sur la maison, sur les démarches à suivre ou sur les modalités de vente. Maisons de l'Avenir Saint-Brieuc vous accompagne à toutes les étapes de votre projet et dans tous vos projets immobiliers.
Maisons de l’Avenir, constructeur de maisons individuelles, propose en collaboration avec ses partenaires fonciers, une sélection de terrains constructibles, selon disponibilité, pour la construction de maisons neuves définies par le constructeur, avec un contrat de construction de maison individuelle, dans le cadre de la loi du 19/12/1990. Prix net, hors frais notariés, d'enregistrement et de publicité foncière
Terrain proposé au prix de : 87 900 €
Maison proposée au prix de : 180 000 €
Etiquette énergie : A. Assurances et garanties du constructeur (RC professionnelle, décennale, dommage ouvrage, Garantie de livraison à prix et délai convenu). https://www.maisonsdelavenir.com/mentions-legales/
Localisation
Une maison 100% personnalisable
-  Garage 
-  Agencement 
-  Revêtements extérieurs 
-  Toiture 
-  Ouvertures 
Nos garanties constructeur
UNE MAISON 100% PERSONNALISÉE
Définir un style architectural (contemporain, moderne, traditionnel) et un plan adapté à votre mode de vie pour mettre en lumière votre projet de construction, tel est notre quotidien !
SERVICE 3 EN 1
Nos conseillers habitat vous accompagnent tout au long de votre projet : Terrain – Maison - Financement, afin de garantir sa réussite et de satisfaire vos exigences !
DES ANNÉES D'EXPÉRIENCES
Depuis 1962, la marque Maisons de l’Avenir inspire confiance et sérénité, une si longue expérience dans la construction de maisons individuelles, c’est un vrai gage de qualité !


















 
  
 