Prix Maison + Terrain
- À partir de 336 700 €
Référence
- ML2340699_2
Maison personnalisable
- Chambres : 3
- Nombre de pièces : 4
- Surface maison : 135 m²
- Surface terrain : 465 m²
- Garage/Carport
Performances énergétiques
- Classe énergétique : A
Description
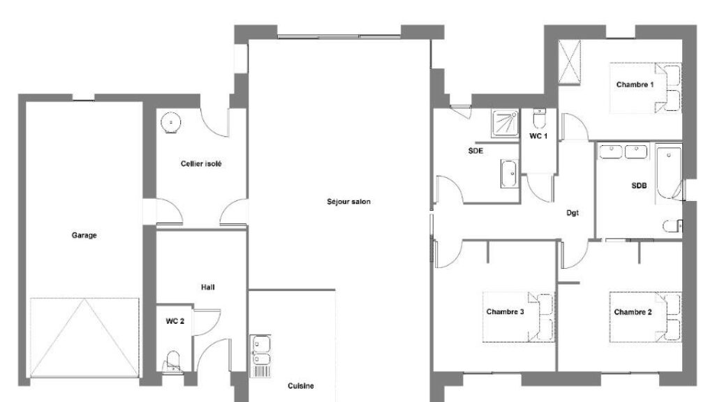
VENTE : maison de 4 pièces (135 m²) à Plonévez-Porzay
MAISON 4 PIÈCES NEUVE - PROCHE DE QUIMPER
En vente : située sur le littoral atlantique et à quelques kilomètres de Quimper, notre agence Maisons de l'Avenir Quimper est heureuse de vous proposer cette maison de 4 pièces de plain-pied de 135 m² et de 465 m² de terrain à Plonévez-Porzay (29550).
Conçue de plain-pied, elle propose trois chambres, une cuisine et deux salles de bains. La maison est neuve.
Les nationales N165 et N164 sont accessibles à moins de 19 km. Il y a un tennis, quatre commerces, trois boulangeries, une supérette et une boucherie-charcuterie à proximité.
Son prix de vente est de 336 700 €.
Prenez contact avec Marie LAURENT (tél : 02-98-54-75-20) pour toute question sur cette maison ou sur les modalités de vente.
MAISON 4 PIÈCES NEUVE - PROCHE DE QUIMPER
En vente : située sur le littoral atlantique et à quelques kilomètres de Quimper, notre agence Maisons de l'Avenir Quimper est heureuse de vous proposer cette maison de 4 pièces de plain-pied de 135 m² et de 465 m² de terrain à Plonévez-Porzay (29550).
Conçue de plain-pied, elle propose trois chambres, une cuisine et deux salles de bains. La maison est neuve.
Les nationales N165 et N164 sont accessibles à moins de 19 km. Il y a un tennis, quatre commerces, trois boulangeries, une supérette et une boucherie-charcuterie… Lire la suite
VENTE : maison de 4 pièces (135 m²) à Plonévez-Porzay
MAISON 4 PIÈCES NEUVE - PROCHE DE QUIMPER
En vente : située sur le littoral atlantique et à quelques kilomètres de Quimper, notre agence Maisons de l'Avenir Quimper est heureuse de vous proposer cette maison de 4 pièces de plain-pied de 135 m² et de 465 m² de terrain à Plonévez-Porzay (29550).
Conçue de plain-pied, elle propose trois chambres, une cuisine et deux salles de bains. La maison est neuve.
Les nationales N165 et N164 sont accessibles à moins de 19 km. Il y a un tennis, quatre commerces, trois boulangeries, une supérette et une boucherie-charcuterie à proximité.
Son prix de vente est de 336 700 €.
Prenez contact avec Marie LAURENT (tél : 02-98-54-75-20) pour toute question sur cette maison ou sur les modalités de vente.
Maisons de l’Avenir, constructeur de maisons individuelles, propose en collaboration avec ses partenaires fonciers, une sélection de terrains constructibles, selon disponibilité, pour la construction de maisons neuves définies par le constructeur, avec un contrat de construction de maison individuelle, dans le cadre de la loi du 19/12/1990. Prix net, hors frais notariés, d'enregistrement et de publicité foncière
Terrain proposé au prix de : 38 000 €
Maison proposée au prix de : 298 700 €
Etiquette énergie : A. Assurances et garanties du constructeur (RC professionnelle, décennale, dommage ouvrage, Garantie de livraison à prix et délai convenu). https://www.maisonsdelavenir.com/mentions-legales/
Localisation
Une maison 100% personnalisable
-
Garage
-
Agencement
-
Revêtements extérieurs
-
Toiture
-
Ouvertures
Nos garanties constructeur
UNE MAISON 100% PERSONNALISÉE
Définir un style architectural (contemporain, moderne, traditionnel) et un plan adapté à votre mode de vie pour mettre en lumière votre projet de construction, tel est notre quotidien !
SERVICE 3 EN 1
Nos conseillers habitat vous accompagnent tout au long de votre projet : Terrain – Maison - Financement, afin de garantir sa réussite et de satisfaire vos exigences !
DES ANNÉES D'EXPÉRIENCES
Depuis 1962, la marque Maisons de l’Avenir inspire confiance et sérénité, une si longue expérience dans la construction de maisons individuelles, c’est un vrai gage de qualité !















