Prix Maison + Terrain
- À partir de 409 000 €
Référence
- GC2277200_2
Maison personnalisable
- Chambres : 4
- Nombre de pièces : 5
- Surface maison : 140 m²
- Surface terrain : 562 m²
- Garage/Carport
Performances énergétiques
- Classe énergétique : A
Description
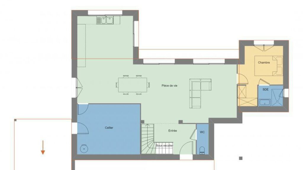
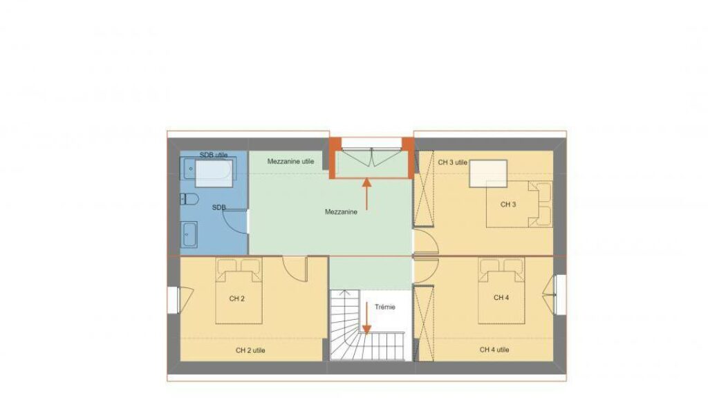
VENTE : maison T5 (140 m²) à Ploërmel
MAISON 5 PIÈCES NEUVE
À vendre : située à 46 km de la côte atlantique, notre agence Maisons de l'Avenir Vannes est heureuse de vous présenter cette maison de 5 pièces de 140 m² à Ploërmel (56800). Son intérieur propose quatre chambres, une cuisine et deux salles de bains.
Le terrain de cette maison s'étend sur 562 m².
C'est une maison de 2 niveaux. Elle est neuve.
Il y a des écoles de tous types à moins de 10 minutes à pied, tout comme une crèche. Les nationales N24 et N166 sont accessibles à moins de 3 km. On trouve un bassin de natation, un tennis, des commerces, des boulangeries, deux supermarchés, des épiceries et un bureau de poste à proximité. Enfin, le marché Place du Tribunal anime les environs tous les vendredis matin.
Elle est à vendre pour la somme de 409 000 €.
Contactez Germain CHARUEL (tél : 02-97-68-32-50) pour plus d'informations sur cette maison.
MAISON 5 PIÈCES NEUVE
À vendre : située à 46 km de la côte atlantique, notre agence Maisons de l'Avenir Vannes est heureuse de vous présenter cette maison de 5 pièces de 140 m² à Ploërmel (56800). Son intérieur propose quatre chambres, une cuisine et deux salles de bains.
Le terrain de cette maison s'étend sur 562 m².
C'est une maison de 2 niveaux. Elle est neuve.
Il y a des écoles de tous types à moins de 10 minutes à pied, tout comme une crèche. Les nationales N24 et N166 sont accessibles à moins de 3… Lire la suite
VENTE : maison T5 (140 m²) à Ploërmel
MAISON 5 PIÈCES NEUVE
À vendre : située à 46 km de la côte atlantique, notre agence Maisons de l'Avenir Vannes est heureuse de vous présenter cette maison de 5 pièces de 140 m² à Ploërmel (56800). Son intérieur propose quatre chambres, une cuisine et deux salles de bains.
Le terrain de cette maison s'étend sur 562 m².
C'est une maison de 2 niveaux. Elle est neuve.
Il y a des écoles de tous types à moins de 10 minutes à pied, tout comme une crèche. Les nationales N24 et N166 sont accessibles à moins de 3 km. On trouve un bassin de natation, un tennis, des commerces, des boulangeries, deux supermarchés, des épiceries et un bureau de poste à proximité. Enfin, le marché Place du Tribunal anime les environs tous les vendredis matin.
Elle est à vendre pour la somme de 409 000 €.
Contactez Germain CHARUEL (tél : 02-97-68-32-50) pour plus d'informations sur cette maison.
Maisons de l’Avenir, constructeur de maisons individuelles, propose en collaboration avec ses partenaires fonciers, une sélection de terrains constructibles, selon disponibilité, pour la construction de maisons neuves définies par le constructeur, avec un contrat de construction de maison individuelle, dans le cadre de la loi du 19/12/1990. Prix net, hors frais notariés, d'enregistrement et de publicité foncière
Terrain proposé au prix de : 87 000 €
Maison proposée au prix de : 322 000 €
Etiquette énergie : A. Assurances et garanties du constructeur (RC professionnelle, décennale, dommage ouvrage, Garantie de livraison à prix et délai convenu). https://www.maisonsdelavenir.com/mentions-legales/
Localisation
Une maison 100% personnalisable
-
Garage
-
Agencement
-
Revêtements extérieurs
-
Toiture
-
Ouvertures
Nos garanties constructeur
UNE MAISON 100% PERSONNALISÉE
Définir un style architectural (contemporain, moderne, traditionnel) et un plan adapté à votre mode de vie pour mettre en lumière votre projet de construction, tel est notre quotidien !
SERVICE 3 EN 1
Nos conseillers habitat vous accompagnent tout au long de votre projet : Terrain – Maison - Financement, afin de garantir sa réussite et de satisfaire vos exigences !
DES ANNÉES D'EXPÉRIENCES
Depuis 1962, la marque Maisons de l’Avenir inspire confiance et sérénité, une si longue expérience dans la construction de maisons individuelles, c’est un vrai gage de qualité !











