Prix Maison + Terrain
- À partir de 400 000 €
Référence
- MD2365176_3
Maison personnalisable
- Chambres : 4
- Nombre de pièces : 5
- Surface maison : 125 m²
- Surface terrain : 379 m²
- Garage/Carport
Performances énergétiques
- Classe énergétique : A
Description
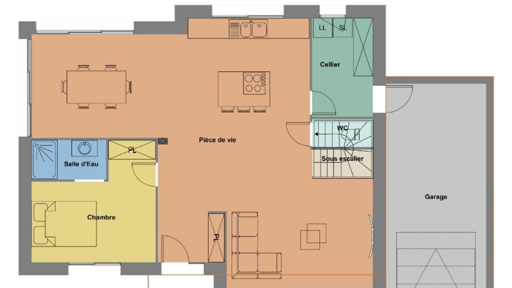
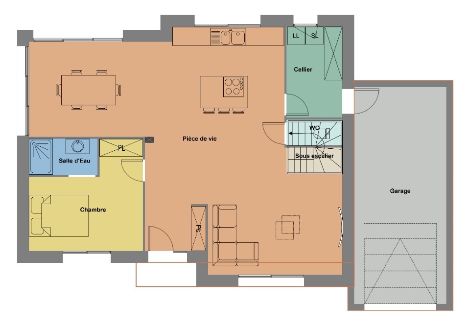
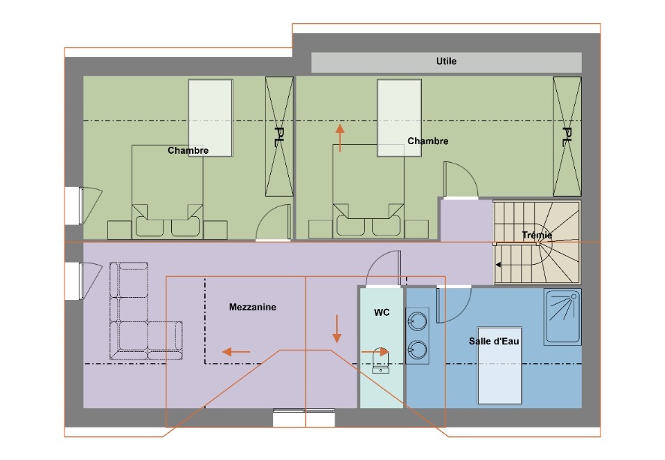
VENTE d'une maison T5 (125 m²) à Pleuven
PROCHE CENTRE-VILLE - MAISON 5 PIÈCES NEUVE
En vente à 7 km de la côte atlantique et à 10 km de Quimper, proche du centre-ville de Pleuven (29170), venez découvrir cette maison de 5 pièces de 125 m² et de 379 m² de terrain. Elle compte quatre chambres, une cuisine et deux salles de bains.
Cette maison comporte 2 niveaux.
Elle est proposée à l'achat pour 400 000 €.
N'hésitez pas à prendre contact avec notre agence (DEROUET Mathieu : 02-98-87-34-21) pour plus d'informations sur la maison, sur les démarches à suivre ou sur les modalités de vente. Maisons de l'Avenir Pont-l'Abbé est là pour vous accompagner dans tous vos projets immobiliers.
PROCHE CENTRE-VILLE - MAISON 5 PIÈCES NEUVE
En vente à 7 km de la côte atlantique et à 10 km de Quimper, proche du centre-ville de Pleuven (29170), venez découvrir cette maison de 5 pièces de 125 m² et de 379 m² de terrain. Elle compte quatre chambres, une cuisine et deux salles de bains.
Cette maison comporte 2 niveaux.
Elle est proposée à l'achat pour 400 000 €.
N'hésitez pas à prendre contact avec notre agence (DEROUET Mathieu : 02-98-87-34-21) pour plus d'informations sur la maison, sur les démarches à suivre ou sur les modalités de vente.… Lire la suite
VENTE d'une maison T5 (125 m²) à Pleuven
PROCHE CENTRE-VILLE - MAISON 5 PIÈCES NEUVE
En vente à 7 km de la côte atlantique et à 10 km de Quimper, proche du centre-ville de Pleuven (29170), venez découvrir cette maison de 5 pièces de 125 m² et de 379 m² de terrain. Elle compte quatre chambres, une cuisine et deux salles de bains.
Cette maison comporte 2 niveaux.
Elle est proposée à l'achat pour 400 000 €.
N'hésitez pas à prendre contact avec notre agence (DEROUET Mathieu : 02-98-87-34-21) pour plus d'informations sur la maison, sur les démarches à suivre ou sur les modalités de vente. Maisons de l'Avenir Pont-l'Abbé est là pour vous accompagner dans tous vos projets immobiliers.
Maisons de l’Avenir, constructeur de maisons individuelles, propose en collaboration avec ses partenaires fonciers, une sélection de terrains constructibles, selon disponibilité, pour la construction de maisons neuves définies par le constructeur, avec un contrat de construction de maison individuelle, dans le cadre de la loi du 19/12/1990. Prix net, hors frais notariés, d'enregistrement et de publicité foncière
Terrain proposé au prix de : 95 000 €
Maison proposée au prix de : 305 000 €
Etiquette énergie : A. Assurances et garanties du constructeur (RC professionnelle, décennale, dommage ouvrage, Garantie de livraison à prix et délai convenu). https://www.maisonsdelavenir.com/mentions-legales/
Localisation
Une maison 100% personnalisable
-
Garage
-
Agencement
-
Revêtements extérieurs
-
Toiture
-
Ouvertures
Nos garanties constructeur
UNE MAISON 100% PERSONNALISÉE
Définir un style architectural (contemporain, moderne, traditionnel) et un plan adapté à votre mode de vie pour mettre en lumière votre projet de construction, tel est notre quotidien !
SERVICE 3 EN 1
Nos conseillers habitat vous accompagnent tout au long de votre projet : Terrain – Maison - Financement, afin de garantir sa réussite et de satisfaire vos exigences !
DES ANNÉES D'EXPÉRIENCES
Depuis 1962, la marque Maisons de l’Avenir inspire confiance et sérénité, une si longue expérience dans la construction de maisons individuelles, c’est un vrai gage de qualité !



















