Prix Maison + Terrain
- À partir de 339 550 €
Référence
- LA2384206_6
Maison personnalisable
- Chambres : 3
- Nombre de pièces : 4
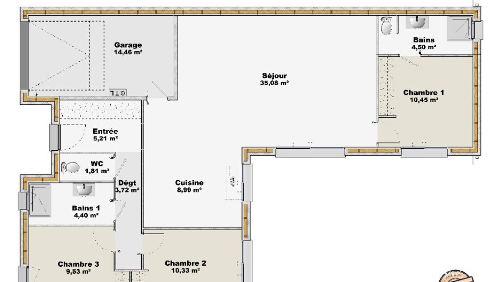
- Surface maison : 94 m²
- Surface terrain : 340 m²
- Garage/Carport
Performances énergétiques
- Classe énergétique : A
Description
Maison de 4 pièces (94 m²) à vendre à Pleurtuit
EMPLACEMENT PRIVILÉGIÉ - MAISON BOIS QUALITATIVE, ECONOMIQUE ET DURABLE 4 PIÈCES NEUVE
En vente à 3 km de la Manche et à quelques kilomètres de Saint-Malo, votre agence Maisons de l'Avenir Saint-Carné est ravie de vous présenter cette maison de 4 pièces de plain-pied de 94 m² bénéficiant d'un emplacement privilégié dans Pleurtuit (35730).
Elle offre trois chambres, une cuisine et deux salles de bains. La maison est neuve.
Le terrain de la propriété s'étend sur 340 m².
Cette propriété se situe dans un quartier prisé. On trouve des établissements scolaires primaires à moins de 10 minutes à pied et une crèche. Niveau transports, il y a la gare Saint-Malo à moins de 10 minutes en voiture. La nationale N176 est accessible à 6 km. On trouve une bibliothèque, un tennis, des commerces, un supermarché, trois boulangeries, un bureau de poste et une boucherie-charcuterie à proximité du logement.
Son prix de vente est de 339 550 €.
Contactez Laetitia AMIRI (tél : 02-99-83-07-20) pour tout renseignement sur la maison. Maisons de l'Avenir Saint-Carné vous accompagne dans toutes vos démarches et à toutes les étapes de votre projet.
EMPLACEMENT PRIVILÉGIÉ - MAISON BOIS QUALITATIVE, ECONOMIQUE ET DURABLE 4 PIÈCES NEUVE
En vente à 3 km de la Manche et à quelques kilomètres de Saint-Malo, votre agence Maisons de l'Avenir Saint-Carné est ravie de vous présenter cette maison de 4 pièces de plain-pied de 94 m² bénéficiant d'un emplacement privilégié dans Pleurtuit (35730).
Elle offre trois chambres, une cuisine et deux salles de bains. La maison est neuve.
Le terrain de la propriété s'étend sur 340 m².
Cette propriété se situe dans un quartier prisé. On trouve des établissements scolaires primaires à moins de 10… Lire la suite
Maison de 4 pièces (94 m²) à vendre à Pleurtuit
EMPLACEMENT PRIVILÉGIÉ - MAISON BOIS QUALITATIVE, ECONOMIQUE ET DURABLE 4 PIÈCES NEUVE
En vente à 3 km de la Manche et à quelques kilomètres de Saint-Malo, votre agence Maisons de l'Avenir Saint-Carné est ravie de vous présenter cette maison de 4 pièces de plain-pied de 94 m² bénéficiant d'un emplacement privilégié dans Pleurtuit (35730).
Elle offre trois chambres, une cuisine et deux salles de bains. La maison est neuve.
Le terrain de la propriété s'étend sur 340 m².
Cette propriété se situe dans un quartier prisé. On trouve des établissements scolaires primaires à moins de 10 minutes à pied et une crèche. Niveau transports, il y a la gare Saint-Malo à moins de 10 minutes en voiture. La nationale N176 est accessible à 6 km. On trouve une bibliothèque, un tennis, des commerces, un supermarché, trois boulangeries, un bureau de poste et une boucherie-charcuterie à proximité du logement.
Son prix de vente est de 339 550 €.
Contactez Laetitia AMIRI (tél : 02-99-83-07-20) pour tout renseignement sur la maison. Maisons de l'Avenir Saint-Carné vous accompagne dans toutes vos démarches et à toutes les étapes de votre projet.
Terrain proposé par un partenaire foncier selon disponibilités et autorisation de publicité au prix de 114 000 €. Hors droit d'enregistrement et frais de notaire. Terrain + Maison proposés au prix de 225 550 € (Hors branchements et raccordements, papiers peints, peintures, revêtement de sol dans les chambres. Tarif modifiable sans préavis). Etiquette énergie : A. Différents modèles disponibles pour ce terrain. Assurances et garanties du constructeur (RC professionnelle, décennale, dommage ouvrage, garantie de remboursement de l'acompte, livraison à prix et délai convenu) : https://www.maisonsdelavenir.com/mentions-legales/.
Localisation
Une maison 100% personnalisable
-
Garage
-
Agencement
-
Revêtements extérieurs
-
Toiture
-
Ouvertures
Nos garanties constructeur
UNE MAISON 100% PERSONNALISÉE
Définir un style architectural (contemporain, moderne, traditionnel) et un plan adapté à votre mode de vie pour mettre en lumière votre projet de construction, tel est notre quotidien !
SERVICE 3 EN 1
Nos conseillers habitat vous accompagnent tout au long de votre projet : Terrain – Maison - Financement, afin de garantir sa réussite et de satisfaire vos exigences !
DES ANNÉES D'EXPÉRIENCES
Depuis 1962, la marque Maisons de l’Avenir inspire confiance et sérénité, une si longue expérience dans la construction de maisons individuelles, c’est un vrai gage de qualité !







