Prix Maison + Terrain
- À partir de 507 500 €
Référence
- LA2365313_6
Maison personnalisable
- Chambres : 3
- Nombre de pièces : 4
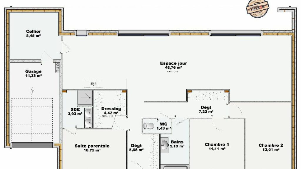
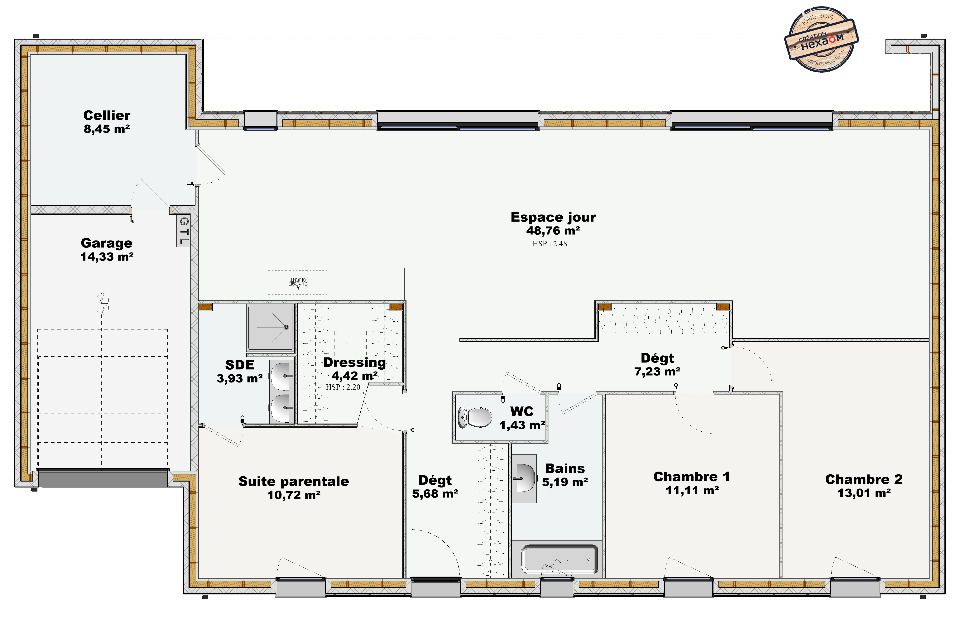
- Surface maison : 120 m²
- Surface terrain : 753 m²
- Garage/Carport
Performances énergétiques
- Classe énergétique : A
Description
VENTE : maison T4 (120 m²) à Pleurtuit, hors lotissement dans un environnement très calme.
EMPLACEMENT PRIVILÉGIÉ - MAISON BOIS QUALITATIVE, ECONOMIQUE ET DURABLE
MAISON 4 PIÈCES NEUVE
À vendre : située à 3 km de la Manche et à quelques kilomètres de Saint-Malo, bénéficiant d'un emplacement privilégié dans Pleurtuit (35730), venez découvrir cette maison de 4 pièces de plain-pied de 120 m² et de 753 m² de terrain. Elle inclut trois chambres, une cuisine et deux salles de bains.
Cette maison est neuve.
La propriété est située dans un quartier attractif. Il y a des écoles primaires à moins de 10 minutes à pied et une crèche. Niveau transports, on trouve la gare Saint-Malo à moins de 10 minutes en voiture. La nationale N176 est accessible à 6 km. Il y a une bibliothèque, un tennis, des commerces, un supermarché, trois boulangeries, une boucherie-charcuterie et un bureau de poste dans les environs.
Son prix de vente est de 507 500 €.
Contactez Laetitia AMIRI (tél : 02-99-83-07-20) pour tout renseignement sur la maison ou sur les démarches à suivre. Maisons de l'Avenir Saint-Carné vous accompagne à toutes les étapes de votre projet et dans tous vos projets immobiliers.
EMPLACEMENT PRIVILÉGIÉ - MAISON BOIS QUALITATIVE, ECONOMIQUE ET DURABLE
MAISON 4 PIÈCES NEUVE
À vendre : située à 3 km de la Manche et à quelques kilomètres de Saint-Malo, bénéficiant d'un emplacement privilégié dans Pleurtuit (35730), venez découvrir cette maison de 4 pièces de plain-pied de 120 m² et de 753 m² de terrain. Elle inclut trois chambres, une cuisine et deux salles de bains.
Cette maison est neuve.
La propriété est située dans un quartier attractif. Il y a des écoles primaires à moins de 10 minutes à pied et une… Lire la suite
VENTE : maison T4 (120 m²) à Pleurtuit, hors lotissement dans un environnement très calme.
EMPLACEMENT PRIVILÉGIÉ - MAISON BOIS QUALITATIVE, ECONOMIQUE ET DURABLE
MAISON 4 PIÈCES NEUVE
À vendre : située à 3 km de la Manche et à quelques kilomètres de Saint-Malo, bénéficiant d'un emplacement privilégié dans Pleurtuit (35730), venez découvrir cette maison de 4 pièces de plain-pied de 120 m² et de 753 m² de terrain. Elle inclut trois chambres, une cuisine et deux salles de bains.
Cette maison est neuve.
La propriété est située dans un quartier attractif. Il y a des écoles primaires à moins de 10 minutes à pied et une crèche. Niveau transports, on trouve la gare Saint-Malo à moins de 10 minutes en voiture. La nationale N176 est accessible à 6 km. Il y a une bibliothèque, un tennis, des commerces, un supermarché, trois boulangeries, une boucherie-charcuterie et un bureau de poste dans les environs.
Son prix de vente est de 507 500 €.
Contactez Laetitia AMIRI (tél : 02-99-83-07-20) pour tout renseignement sur la maison ou sur les démarches à suivre. Maisons de l'Avenir Saint-Carné vous accompagne à toutes les étapes de votre projet et dans tous vos projets immobiliers.
Maisons de l’Avenir, constructeur de maisons individuelles, propose en collaboration avec ses partenaires fonciers, une sélection de terrains constructibles, selon disponibilité, pour la construction de maisons neuves définies par le constructeur, avec un contrat de construction de maison individuelle, dans le cadre de la loi du 19/12/1990. Prix net, hors frais notariés, d'enregistrement et de publicité foncière
Terrain proposé au prix de : 219 450 €
Maison proposée au prix de : 288 050 €
Etiquette énergie : A. Assurances et garanties du constructeur (RC professionnelle, décennale, dommage ouvrage, Garantie de livraison à prix et délai convenu). https://www.maisonsdelavenir.com/mentions-legales/
Localisation
Une maison 100% personnalisable
-
Garage
-
Agencement
-
Revêtements extérieurs
-
Toiture
-
Ouvertures
Nos garanties constructeur
UNE MAISON 100% PERSONNALISÉE
Définir un style architectural (contemporain, moderne, traditionnel) et un plan adapté à votre mode de vie pour mettre en lumière votre projet de construction, tel est notre quotidien !
SERVICE 3 EN 1
Nos conseillers habitat vous accompagnent tout au long de votre projet : Terrain – Maison - Financement, afin de garantir sa réussite et de satisfaire vos exigences !
DES ANNÉES D'EXPÉRIENCES
Depuis 1962, la marque Maisons de l’Avenir inspire confiance et sérénité, une si longue expérience dans la construction de maisons individuelles, c’est un vrai gage de qualité !



































