Prix Maison + Terrain
- À partir de 456 250 €
Référence
- LA2363743_6
Maison personnalisable
- Chambres : 4
- Nombre de pièces : 5
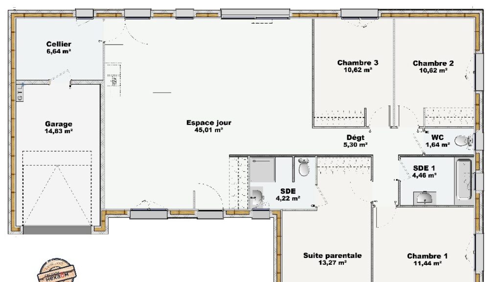
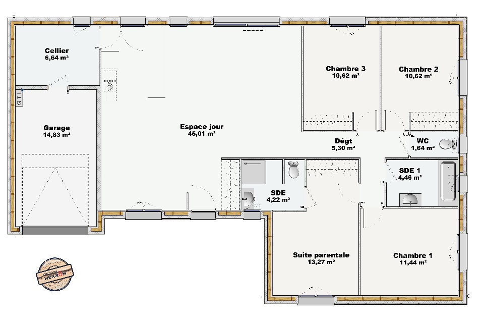
- Surface maison : 113 m²
- Surface terrain : 638 m²
- Garage/Carport
Performances énergétiques
- Classe énergétique : A
Description
VENTE : maison T5 (113 m²) à Pleurtuit
EMPLACEMENT PRIVILÉGIÉ - Dans un endroit calme et agréable, à 4 min du centre de Pleurtuit et des Bords de Rance, 10 min de Dinard et Saint Malo. Vous vous sentirez bien dans cet endroit reposant, proche des lieux de promenades.
MAISON BOIS QUALITATIVE, ECONOMIQUE ET DURABLE 5 PIÈCES NEUVE
À 3 km de la Manche et à 9 km de Saint-Malo, votre agence Maisons de l'Avenir Saint-Carné est ravie de vous présenter cette maison de 5 pièces de plain-pied de 113 m² bénéficiant d'un emplacement d'exception dans Pleurtuit (35730).
Conçue de plain-pied, elle compte quatre chambres, une cuisine et deux salles de bains. La maison est neuve.
Le terrain de la propriété s'étend sur 638 m².
Ce bien se trouve dans un secteur recherché. Il y a des établissements scolaires maternelles et élémentaires à moins de 10 minutes à pied et une structure d'accueil pour les tout-petits. Niveau transports, on trouve la gare Saint-Malo à moins de 10 minutes en voiture. On trouve un accès à la nationale N176 à 6 km. Il y a une bibliothèque, un tennis, des commerces, un supermarché, trois boulangeries, une boucherie-charcuterie et un bureau de poste à proximité.
Il est à vendre pour la somme de 456 250 €.
Contactez notre constructeur (Laetitia AMIRI : 02-99-83-07-20) pour plus de renseignements sur la maison, sur les modalités de vente ou sur les démarches à suivre. Donnez vie à vos projets immobiliers avec Maisons de l'Avenir Saint-Carné.
EMPLACEMENT PRIVILÉGIÉ - Dans un endroit calme et agréable, à 4 min du centre de Pleurtuit et des Bords de Rance, 10 min de Dinard et Saint Malo. Vous vous sentirez bien dans cet endroit reposant, proche des lieux de promenades.
MAISON BOIS QUALITATIVE, ECONOMIQUE ET DURABLE 5 PIÈCES NEUVE
À 3 km de la Manche et à 9 km de Saint-Malo, votre agence Maisons de l'Avenir Saint-Carné est ravie de vous présenter cette maison de 5 pièces de plain-pied de 113 m² bénéficiant d'un emplacement d'exception dans Pleurtuit (35730).
Conçue de plain-pied, elle compte quatre chambres, une… Lire la suite
VENTE : maison T5 (113 m²) à Pleurtuit
EMPLACEMENT PRIVILÉGIÉ - Dans un endroit calme et agréable, à 4 min du centre de Pleurtuit et des Bords de Rance, 10 min de Dinard et Saint Malo. Vous vous sentirez bien dans cet endroit reposant, proche des lieux de promenades.
MAISON BOIS QUALITATIVE, ECONOMIQUE ET DURABLE 5 PIÈCES NEUVE
À 3 km de la Manche et à 9 km de Saint-Malo, votre agence Maisons de l'Avenir Saint-Carné est ravie de vous présenter cette maison de 5 pièces de plain-pied de 113 m² bénéficiant d'un emplacement d'exception dans Pleurtuit (35730).
Conçue de plain-pied, elle compte quatre chambres, une cuisine et deux salles de bains. La maison est neuve.
Le terrain de la propriété s'étend sur 638 m².
Ce bien se trouve dans un secteur recherché. Il y a des établissements scolaires maternelles et élémentaires à moins de 10 minutes à pied et une structure d'accueil pour les tout-petits. Niveau transports, on trouve la gare Saint-Malo à moins de 10 minutes en voiture. On trouve un accès à la nationale N176 à 6 km. Il y a une bibliothèque, un tennis, des commerces, un supermarché, trois boulangeries, une boucherie-charcuterie et un bureau de poste à proximité.
Il est à vendre pour la somme de 456 250 €.
Contactez notre constructeur (Laetitia AMIRI : 02-99-83-07-20) pour plus de renseignements sur la maison, sur les modalités de vente ou sur les démarches à suivre. Donnez vie à vos projets immobiliers avec Maisons de l'Avenir Saint-Carné.
Maisons de l’Avenir, constructeur de maisons individuelles, propose en collaboration avec ses partenaires fonciers, une sélection de terrains constructibles, selon disponibilité, pour la construction de maisons neuves définies par le constructeur, avec un contrat de construction de maison individuelle, dans le cadre de la loi du 19/12/1990. Prix net, hors frais notariés, d'enregistrement et de publicité foncière
Terrain proposé au prix de : 185 000 €
Maison proposée au prix de : 271 250 €
Etiquette énergie : A. Assurances et garanties du constructeur (RC professionnelle, décennale, dommage ouvrage, Garantie de livraison à prix et délai convenu). https://www.maisonsdelavenir.com/mentions-legales/
Localisation
Une maison 100% personnalisable
-
Garage
-
Agencement
-
Revêtements extérieurs
-
Toiture
-
Ouvertures
Nos garanties constructeur
UNE MAISON 100% PERSONNALISÉE
Définir un style architectural (contemporain, moderne, traditionnel) et un plan adapté à votre mode de vie pour mettre en lumière votre projet de construction, tel est notre quotidien !
SERVICE 3 EN 1
Nos conseillers habitat vous accompagnent tout au long de votre projet : Terrain – Maison - Financement, afin de garantir sa réussite et de satisfaire vos exigences !
DES ANNÉES D'EXPÉRIENCES
Depuis 1962, la marque Maisons de l’Avenir inspire confiance et sérénité, une si longue expérience dans la construction de maisons individuelles, c’est un vrai gage de qualité !















































