Prix Maison + Terrain
- À partir de 343 650 €
Référence
- LA2293292_4
Maison personnalisable
- Chambres : 5
- Nombre de pièces : 6
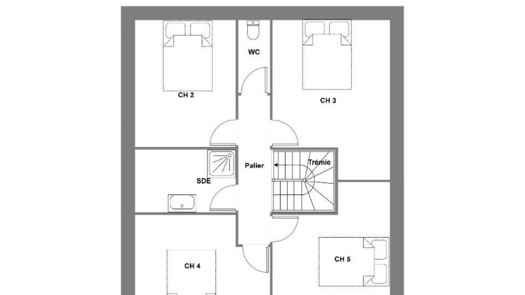
- Surface maison : 120 m²
- Surface terrain : 564 m²
- Garage/Carport
Performances énergétiques
- Classe énergétique : A
Description
VENTE : maison T6 (120 m²) à Pleugueneuc PROCHE DE DINAN
IDÉALEMENT SITUÉE - MAISON 6 PIÈCES NEUVE
À 15 km de la Manche et à quelques kilomètres de Saint-Malo, nous sommes ravis de vous présenter cette maison de 6 pièces de 120 m² en vente idéalement située dans Pleugueneuc (35720). Elle inclut cinq chambres, une cuisine et deux salles de bains.
Le terrain du bien s'étend sur 564 m².
Cette maison compte 2 niveaux. Elle est neuve.
La maison est située dans un secteur prisé. On trouve l'École Primaire Publique les Jours Heureux à moins de 10 minutes à pied. La nationale N176 est accessible à 15 km. Il y a une boulangerie, une épicerie et une boucherie-charcuterie à quelques minutes.
Elle est proposée à l'achat pour 343 650 €.
N'hésitez pas à prendre contact avec Laetitia AMIRI (02-99-83-07-20) pour tout renseignement sur la maison, sur les modalités de vente ou sur les démarches à suivre. Concrétisez vos projets immobiliers avec Maisons de l'Avenir Saint-Carné.
IDÉALEMENT SITUÉE - MAISON 6 PIÈCES NEUVE
À 15 km de la Manche et à quelques kilomètres de Saint-Malo, nous sommes ravis de vous présenter cette maison de 6 pièces de 120 m² en vente idéalement située dans Pleugueneuc (35720). Elle inclut cinq chambres, une cuisine et deux salles de bains.
Le terrain du bien s'étend sur 564 m².
Cette maison compte 2 niveaux. Elle est neuve.
La maison est située dans un secteur prisé. On trouve l'École Primaire Publique les Jours Heureux à moins de 10 minutes à pied. La nationale N176 est accessible à… Lire la suite
VENTE : maison T6 (120 m²) à Pleugueneuc PROCHE DE DINAN
IDÉALEMENT SITUÉE - MAISON 6 PIÈCES NEUVE
À 15 km de la Manche et à quelques kilomètres de Saint-Malo, nous sommes ravis de vous présenter cette maison de 6 pièces de 120 m² en vente idéalement située dans Pleugueneuc (35720). Elle inclut cinq chambres, une cuisine et deux salles de bains.
Le terrain du bien s'étend sur 564 m².
Cette maison compte 2 niveaux. Elle est neuve.
La maison est située dans un secteur prisé. On trouve l'École Primaire Publique les Jours Heureux à moins de 10 minutes à pied. La nationale N176 est accessible à 15 km. Il y a une boulangerie, une épicerie et une boucherie-charcuterie à quelques minutes.
Elle est proposée à l'achat pour 343 650 €.
N'hésitez pas à prendre contact avec Laetitia AMIRI (02-99-83-07-20) pour tout renseignement sur la maison, sur les modalités de vente ou sur les démarches à suivre. Concrétisez vos projets immobiliers avec Maisons de l'Avenir Saint-Carné.
Maisons de l’Avenir, constructeur de maisons individuelles, propose en collaboration avec ses partenaires fonciers, une sélection de terrains constructibles, selon disponibilité, pour la construction de maisons neuves définies par le constructeur, avec un contrat de construction de maison individuelle, dans le cadre de la loi du 19/12/1990. Prix net, hors frais notariés, d'enregistrement et de publicité foncière
Terrain proposé au prix de : 80 000 €
Maison proposée au prix de : 263 650 €
Etiquette énergie : A. Assurances et garanties du constructeur (RC professionnelle, décennale, dommage ouvrage, Garantie de livraison à prix et délai convenu). https://www.maisonsdelavenir.com/mentions-legales/
Localisation
Une maison 100% personnalisable
-
Garage
-
Agencement
-
Revêtements extérieurs
-
Toiture
-
Ouvertures
Nos garanties constructeur
UNE MAISON 100% PERSONNALISÉE
Définir un style architectural (contemporain, moderne, traditionnel) et un plan adapté à votre mode de vie pour mettre en lumière votre projet de construction, tel est notre quotidien !
SERVICE 3 EN 1
Nos conseillers habitat vous accompagnent tout au long de votre projet : Terrain – Maison - Financement, afin de garantir sa réussite et de satisfaire vos exigences !
DES ANNÉES D'EXPÉRIENCES
Depuis 1962, la marque Maisons de l’Avenir inspire confiance et sérénité, une si longue expérience dans la construction de maisons individuelles, c’est un vrai gage de qualité !















