Prix Maison + Terrain
- À partir de 302 000 €
Référence
- SR2351391_2
Maison personnalisable
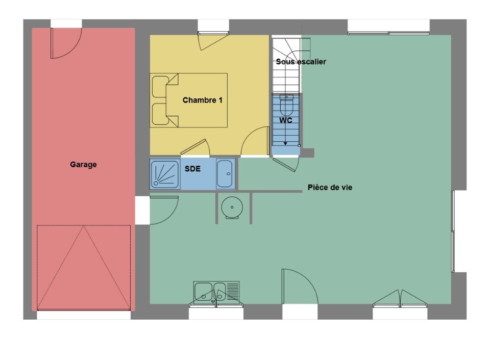
- Chambres : 5
- Nombre de pièces : 6
- Surface maison : 119 m²
- Surface terrain : 395 m²
- Garage/Carport
Performances énergétiques
- Classe énergétique : A
Description
VENTE d'une maison F6 (119 m²) à Pleubian
MAISON 6 PIÈCES NEUVE
À 3 km de la Manche, à vendre à Pleubian (22610), nous sommes ravis de vous proposer cette maison de 6 pièces de 119 m². Son intérieur est composé de cinq chambres, d'une cuisine et de deux salles de bains.
Le terrain de la propriété s'étend sur 395 m².
C'est une maison de 2 niveaux. Elle est neuve.
Il y a l'École Primaire Privée Saint Georges et l'École Primaire Publique de la Presqu'ile à moins de 10 minutes à pied. Côté transports en commun, on trouve la gare Lancerf à moins de 10 minutes en voiture. Il y a un tennis, une bibliothèque, des commerces, une boulangerie, un supermarché, deux boucheries-charcuteries et une supérette à proximité du bien. Le marché Centre-Ville anime le quartier chaque samedi matin.
Elle est à vendre pour la somme de 302 000 €.
N'hésitez pas à prendre contact avec notre agence (Samuel ROGER : 02-96-78-52-58) pour toute information sur la propriété ou sur les modalités de vente. Maisons de l'Avenir Saint-Brieuc est là pour vous accompagner dans toutes vos démarches.
MAISON 6 PIÈCES NEUVE
À 3 km de la Manche, à vendre à Pleubian (22610), nous sommes ravis de vous proposer cette maison de 6 pièces de 119 m². Son intérieur est composé de cinq chambres, d'une cuisine et de deux salles de bains.
Le terrain de la propriété s'étend sur 395 m².
C'est une maison de 2 niveaux. Elle est neuve.
Il y a l'École Primaire Privée Saint Georges et l'École Primaire Publique de la Presqu'ile à moins de 10 minutes à pied. Côté transports en commun, on trouve la gare Lancerf à moins de 10… Lire la suite
VENTE d'une maison F6 (119 m²) à Pleubian
MAISON 6 PIÈCES NEUVE
À 3 km de la Manche, à vendre à Pleubian (22610), nous sommes ravis de vous proposer cette maison de 6 pièces de 119 m². Son intérieur est composé de cinq chambres, d'une cuisine et de deux salles de bains.
Le terrain de la propriété s'étend sur 395 m².
C'est une maison de 2 niveaux. Elle est neuve.
Il y a l'École Primaire Privée Saint Georges et l'École Primaire Publique de la Presqu'ile à moins de 10 minutes à pied. Côté transports en commun, on trouve la gare Lancerf à moins de 10 minutes en voiture. Il y a un tennis, une bibliothèque, des commerces, une boulangerie, un supermarché, deux boucheries-charcuteries et une supérette à proximité du bien. Le marché Centre-Ville anime le quartier chaque samedi matin.
Elle est à vendre pour la somme de 302 000 €.
N'hésitez pas à prendre contact avec notre agence (Samuel ROGER : 02-96-78-52-58) pour toute information sur la propriété ou sur les modalités de vente. Maisons de l'Avenir Saint-Brieuc est là pour vous accompagner dans toutes vos démarches.
Maisons de l’Avenir, constructeur de maisons individuelles, propose en collaboration avec ses partenaires fonciers, une sélection de terrains constructibles, selon disponibilité, pour la construction de maisons neuves définies par le constructeur, avec un contrat de construction de maison individuelle, dans le cadre de la loi du 19/12/1990. Prix net, hors frais notariés, d'enregistrement et de publicité foncière
Terrain proposé au prix de : 49 625 €
Maison proposée au prix de : 252 375 €
Etiquette énergie : A. Assurances et garanties du constructeur (RC professionnelle, décennale, dommage ouvrage, Garantie de livraison à prix et délai convenu). https://www.maisonsdelavenir.com/mentions-legales/
Localisation
Une maison 100% personnalisable
-
Garage
-
Agencement
-
Revêtements extérieurs
-
Toiture
-
Ouvertures
Nos garanties constructeur
UNE MAISON 100% PERSONNALISÉE
Définir un style architectural (contemporain, moderne, traditionnel) et un plan adapté à votre mode de vie pour mettre en lumière votre projet de construction, tel est notre quotidien !
SERVICE 3 EN 1
Nos conseillers habitat vous accompagnent tout au long de votre projet : Terrain – Maison - Financement, afin de garantir sa réussite et de satisfaire vos exigences !
DES ANNÉES D'EXPÉRIENCES
Depuis 1962, la marque Maisons de l’Avenir inspire confiance et sérénité, une si longue expérience dans la construction de maisons individuelles, c’est un vrai gage de qualité !



















