 Nous contacter
 Nous contacter- Prix Maison + Terrain- À partir de 374 000 €
 
- Référence- LA2320684_6
 
- Maison personnalisable- Chambres : 3
- Nombre de pièces : 4
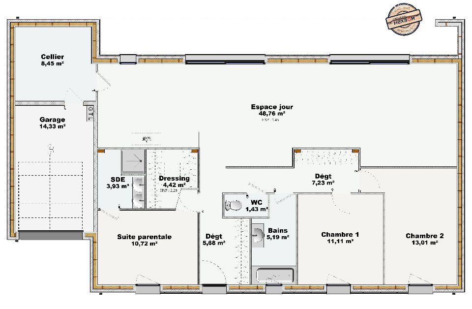
- Surface maison : 120 m²
- Surface terrain : 423 m²
- Garage/Carport
 
- Performances énergétiques- Classe énergétique : A
 
Description
Pleslin-Trigavou : maison T4 (120 m²) à vendre
EMPLACEMENT PRIVILÉGIÉ - PROCHE DE DINAN
MAISON BOIS QUALITATIVE, ECONOMIQUE ET DURABLE 4 PIÈCES NEUVE
À 8 km de la Manche et à quelques kilomètres de Saint-Malo, nous sommes heureux de vous présenter cette maison de 4 pièces de plain-pied de 120 m² et de 423 m² de terrain en vente, bénéficiant d'un emplacement d'exception dans Pleslin-Trigavou (22490).
Conçue de plain-pied, elle dispose de trois chambres, d'une cuisine et de deux salles de bains. Cette maison est neuve.
La maison se trouve dans un secteur convoité. L'École Primaire Privée Saint Joseph et l'École Primaire Publique Georges Hervé sont implantées à moins de 10 minutes à pied. Côté transports en commun, il y a quatre gares à moins de 10 minutes en voiture. Il y a un accès à la nationale N176 à 2 km. On trouve un tennis, une boulangerie, un bureau de poste et une supérette à proximité du logement.
Elle est à vendre pour la somme de 374 000 €.
N'hésitez pas à prendre contact avec notre agence (Laetitia AMIRI : 02-99-83-07-20) pour toute question sur le bien, sur les démarches à suivre ou sur les modalités de vente.
EMPLACEMENT PRIVILÉGIÉ - PROCHE DE DINAN
MAISON BOIS QUALITATIVE, ECONOMIQUE ET DURABLE 4 PIÈCES NEUVE
À 8 km de la Manche et à quelques kilomètres de Saint-Malo, nous sommes heureux de vous présenter cette maison de 4 pièces de plain-pied de 120 m² et de 423 m² de terrain en vente, bénéficiant d'un emplacement d'exception dans Pleslin-Trigavou (22490).
Conçue de plain-pied, elle dispose de trois chambres, d'une cuisine et de deux salles de bains. Cette maison est neuve.
La maison se trouve dans un secteur convoité. L'École Primaire Privée Saint Joseph et l'École Primaire Publique Georges Hervé sont implantées… Lire la suite
Pleslin-Trigavou : maison T4 (120 m²) à vendre
EMPLACEMENT PRIVILÉGIÉ - PROCHE DE DINAN
MAISON BOIS QUALITATIVE, ECONOMIQUE ET DURABLE 4 PIÈCES NEUVE
À 8 km de la Manche et à quelques kilomètres de Saint-Malo, nous sommes heureux de vous présenter cette maison de 4 pièces de plain-pied de 120 m² et de 423 m² de terrain en vente, bénéficiant d'un emplacement d'exception dans Pleslin-Trigavou (22490).
Conçue de plain-pied, elle dispose de trois chambres, d'une cuisine et de deux salles de bains. Cette maison est neuve.
La maison se trouve dans un secteur convoité. L'École Primaire Privée Saint Joseph et l'École Primaire Publique Georges Hervé sont implantées à moins de 10 minutes à pied. Côté transports en commun, il y a quatre gares à moins de 10 minutes en voiture. Il y a un accès à la nationale N176 à 2 km. On trouve un tennis, une boulangerie, un bureau de poste et une supérette à proximité du logement.
Elle est à vendre pour la somme de 374 000 €.
N'hésitez pas à prendre contact avec notre agence (Laetitia AMIRI : 02-99-83-07-20) pour toute question sur le bien, sur les démarches à suivre ou sur les modalités de vente.
Maisons de l’Avenir, constructeur de maisons individuelles, propose en collaboration avec ses partenaires fonciers, une sélection de terrains constructibles, selon disponibilité, pour la construction de maisons neuves définies par le constructeur, avec un contrat de construction de maison individuelle, dans le cadre de la loi du 19/12/1990. Prix net, hors frais notariés, d'enregistrement et de publicité foncière
Terrain proposé au prix de : 86 000 €
Maison proposée au prix de : 288 000 €
Etiquette énergie : A. Assurances et garanties du constructeur (RC professionnelle, décennale, dommage ouvrage, Garantie de livraison à prix et délai convenu). https://www.maisonsdelavenir.com/mentions-legales/
Localisation
Une maison 100% personnalisable
-  Garage 
-  Agencement 
-  Revêtements extérieurs 
-  Toiture 
-  Ouvertures 
Nos garanties constructeur
UNE MAISON 100% PERSONNALISÉE
Définir un style architectural (contemporain, moderne, traditionnel) et un plan adapté à votre mode de vie pour mettre en lumière votre projet de construction, tel est notre quotidien !
SERVICE 3 EN 1
Nos conseillers habitat vous accompagnent tout au long de votre projet : Terrain – Maison - Financement, afin de garantir sa réussite et de satisfaire vos exigences !
DES ANNÉES D'EXPÉRIENCES
Depuis 1962, la marque Maisons de l’Avenir inspire confiance et sérénité, une si longue expérience dans la construction de maisons individuelles, c’est un vrai gage de qualité !




































 
  
 