Prix Maison + Terrain
- À partir de 183 505 €
Référence
- LA2348086_1
Maison personnalisable
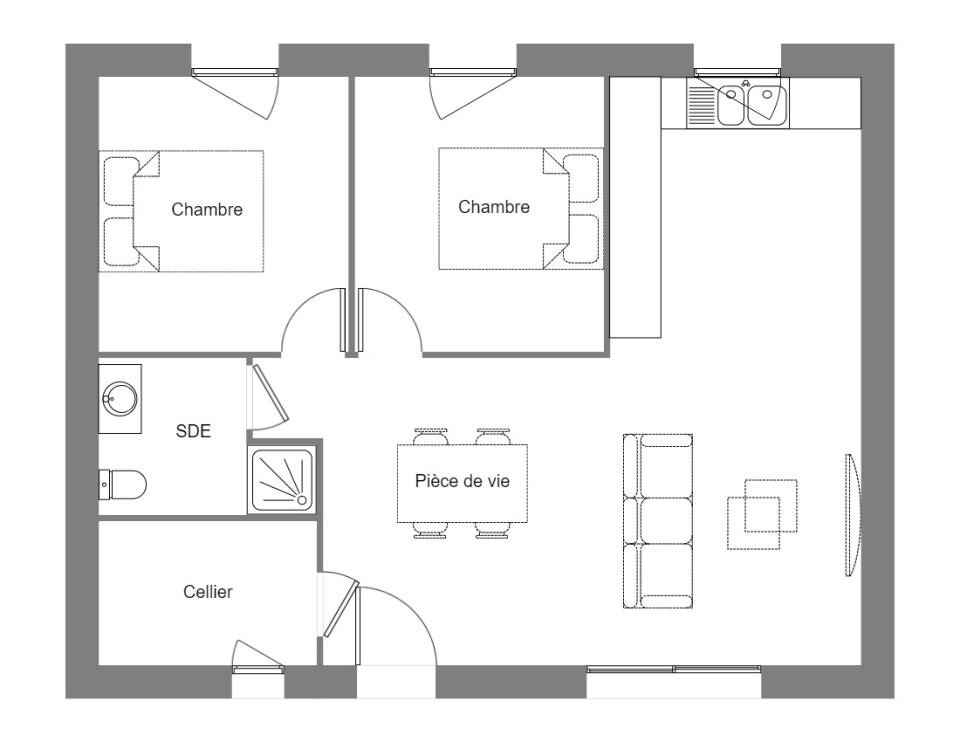
- Chambres : 2
- Nombre de pièces : 3
- Surface maison : 57 m²
- Surface terrain : 297 m²
- Garage/Carport
Performances énergétiques
- Classe énergétique : A
Description
VENTE : maison de 3 pièces (57 m²) à Plerguer
IDÉALEMENT SITUÉE - MAISON 3 PIÈCES NEUVE
À vendre : située à 9 km de la Manche et à quelques kilomètres de Saint-Malo, Maisons de l'Avenir Saint-Carné vous présente cette maison de 3 pièces de plain-pied de 57 m², idéalement située dans Plerguer (35540).
Elle dispose de deux chambres, d'une cuisine et d'une salle de bains. La maison est neuve.
Le terrain du bien est de 297 m².
Ce bien se trouve dans un secteur convoité. Il y a l'École Primaire Privée Notre Dame et l'École Primaire Publique les Badious à moins de 10 minutes à pied. Niveau transports, on trouve la gare Plerguer dans les alentours. La nationale N176 est accessible à 2 km. Il y a une bibliothèque, un supermarché, un commerce, une boulangerie et un bureau de poste à proximité.
Il est proposé à l'achat pour 183 505 €.
Contactez notre agence (AMIRI Laetitia : 02-99-83-07-20) pour plus d'informations sur la maison.
IDÉALEMENT SITUÉE - MAISON 3 PIÈCES NEUVE
À vendre : située à 9 km de la Manche et à quelques kilomètres de Saint-Malo, Maisons de l'Avenir Saint-Carné vous présente cette maison de 3 pièces de plain-pied de 57 m², idéalement située dans Plerguer (35540).
Elle dispose de deux chambres, d'une cuisine et d'une salle de bains. La maison est neuve.
Le terrain du bien est de 297 m².
Ce bien se trouve dans un secteur convoité. Il y a l'École Primaire Privée Notre Dame et l'École Primaire Publique les Badious à moins de 10 minutes à pied.… Lire la suite
VENTE : maison de 3 pièces (57 m²) à Plerguer
IDÉALEMENT SITUÉE - MAISON 3 PIÈCES NEUVE
À vendre : située à 9 km de la Manche et à quelques kilomètres de Saint-Malo, Maisons de l'Avenir Saint-Carné vous présente cette maison de 3 pièces de plain-pied de 57 m², idéalement située dans Plerguer (35540).
Elle dispose de deux chambres, d'une cuisine et d'une salle de bains. La maison est neuve.
Le terrain du bien est de 297 m².
Ce bien se trouve dans un secteur convoité. Il y a l'École Primaire Privée Notre Dame et l'École Primaire Publique les Badious à moins de 10 minutes à pied. Niveau transports, on trouve la gare Plerguer dans les alentours. La nationale N176 est accessible à 2 km. Il y a une bibliothèque, un supermarché, un commerce, une boulangerie et un bureau de poste à proximité.
Il est proposé à l'achat pour 183 505 €.
Contactez notre agence (AMIRI Laetitia : 02-99-83-07-20) pour plus d'informations sur la maison.
Maisons de l’Avenir, constructeur de maisons individuelles, propose en collaboration avec ses partenaires fonciers, une sélection de terrains constructibles, selon disponibilité, pour la construction de maisons neuves définies par le constructeur, avec un contrat de construction de maison individuelle, dans le cadre de la loi du 19/12/1990. Prix net, hors frais notariés, d'enregistrement et de publicité foncière
Terrain proposé au prix de : 51 500 €
Maison proposée au prix de : 132 005 €
Etiquette énergie : A. Assurances et garanties du constructeur (RC professionnelle, décennale, dommage ouvrage, Garantie de livraison à prix et délai convenu). https://www.maisonsdelavenir.com/mentions-legales/
Localisation
Une maison 100% personnalisable
-
Garage
-
Agencement
-
Revêtements extérieurs
-
Toiture
-
Ouvertures
Nos garanties constructeur
UNE MAISON 100% PERSONNALISÉE
Définir un style architectural (contemporain, moderne, traditionnel) et un plan adapté à votre mode de vie pour mettre en lumière votre projet de construction, tel est notre quotidien !
SERVICE 3 EN 1
Nos conseillers habitat vous accompagnent tout au long de votre projet : Terrain – Maison - Financement, afin de garantir sa réussite et de satisfaire vos exigences !
DES ANNÉES D'EXPÉRIENCES
Depuis 1962, la marque Maisons de l’Avenir inspire confiance et sérénité, une si longue expérience dans la construction de maisons individuelles, c’est un vrai gage de qualité !









