Prix Maison + Terrain
- À partir de 383 000 €
Référence
- SR2398770_3
Maison personnalisable
- Chambres : 5
- Nombre de pièces : 6
- Surface maison : 119 m²
- Surface terrain : 899 m²
- Garage/Carport
Performances énergétiques
- Classe énergétique : A
Description
VENTE : maison de 6 pièces (119 m²) à Paimpol
MAISON 6 PIÈCES NEUVE
À 5 km de la Manche, nous vous présentons cette maison de 6 pièces de 119 m² à Paimpol (22500).
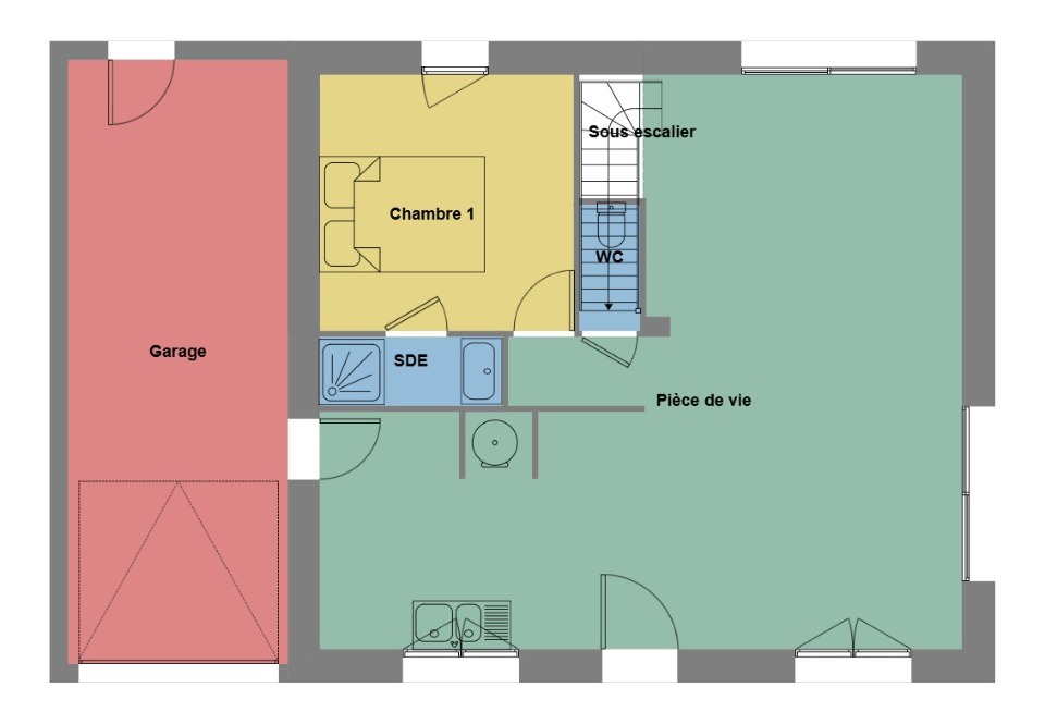
Cette maison comporte 2 niveaux. Son intérieur compte cinq chambres, une cuisine et deux salles de bains. La maison est neuve.
Le terrain du bien est de 899 m².
Il y a des établissements scolaires de tous niveaux à moins de 10 minutes à pied. Niveau transports, on trouve la gare Paimpol à quelques pas de la maison. Il y a un tennis, un bassin de natation, un port de plaisance, des commerces, des boulangeries, deux supermarchés, une supérette et un bureau de poste à quelques minutes du logement. Le marché Centre-Ville a lieu chaque mardi matin.
Elle est proposée à l'achat pour 383 000 €.
Contactez notre agence (ROGER Samuel : 02-96-78-52-58) pour obtenir de plus amples renseignements sur cette maison. Faites de vos projets immobiliers une réalité avec Maisons de l'Avenir Saint-Brieuc.
MAISON 6 PIÈCES NEUVE
À 5 km de la Manche, nous vous présentons cette maison de 6 pièces de 119 m² à Paimpol (22500).
Cette maison comporte 2 niveaux. Son intérieur compte cinq chambres, une cuisine et deux salles de bains. La maison est neuve.
Le terrain du bien est de 899 m².
Il y a des établissements scolaires de tous niveaux à moins de 10 minutes à pied. Niveau transports, on trouve la gare Paimpol à quelques pas de la maison. Il y a un tennis, un bassin de natation, un port de plaisance,… Lire la suite
VENTE : maison de 6 pièces (119 m²) à Paimpol
MAISON 6 PIÈCES NEUVE
À 5 km de la Manche, nous vous présentons cette maison de 6 pièces de 119 m² à Paimpol (22500).
Cette maison comporte 2 niveaux. Son intérieur compte cinq chambres, une cuisine et deux salles de bains. La maison est neuve.
Le terrain du bien est de 899 m².
Il y a des établissements scolaires de tous niveaux à moins de 10 minutes à pied. Niveau transports, on trouve la gare Paimpol à quelques pas de la maison. Il y a un tennis, un bassin de natation, un port de plaisance, des commerces, des boulangeries, deux supermarchés, une supérette et un bureau de poste à quelques minutes du logement. Le marché Centre-Ville a lieu chaque mardi matin.
Elle est proposée à l'achat pour 383 000 €.
Contactez notre agence (ROGER Samuel : 02-96-78-52-58) pour obtenir de plus amples renseignements sur cette maison. Faites de vos projets immobiliers une réalité avec Maisons de l'Avenir Saint-Brieuc.
Terrain proposé par un partenaire foncier selon disponibilités et autorisation de publicité au prix de 130 000 €. Hors droit d'enregistrement et frais de notaire. Terrain + Maison proposés au prix de 253 000 € (Hors branchements et raccordements, papiers peints, peintures, revêtement de sol dans les chambres. Tarif modifiable sans préavis). Etiquette énergie : A. Différents modèles disponibles pour ce terrain. Assurances et garanties du constructeur (RC professionnelle, décennale, dommage ouvrage, garantie de remboursement de l'acompte, livraison à prix et délai convenu) : https://www.maisonsdelavenir.com/mentions-legales/.
Localisation
Une maison 100% personnalisable
-
Garage
-
Agencement
-
Revêtements extérieurs
-
Toiture
-
Ouvertures
Nos garanties constructeur
UNE MAISON 100% PERSONNALISÉE
Définir un style architectural (contemporain, moderne, traditionnel) et un plan adapté à votre mode de vie pour mettre en lumière votre projet de construction, tel est notre quotidien !
SERVICE 3 EN 1
Nos conseillers habitat vous accompagnent tout au long de votre projet : Terrain – Maison - Financement, afin de garantir sa réussite et de satisfaire vos exigences !
DES ANNÉES D'EXPÉRIENCES
Depuis 1962, la marque Maisons de l’Avenir inspire confiance et sérénité, une si longue expérience dans la construction de maisons individuelles, c’est un vrai gage de qualité !



















