Prix Maison + Terrain
- À partir de 320 000 €
Référence
- DM2363025_3
Maison personnalisable
- Chambres : 4
- Nombre de pièces : 5
- Surface maison : 121 m²
- Surface terrain : 299 m²
- Garage/Carport
Performances énergétiques
- Classe énergétique : A
Description
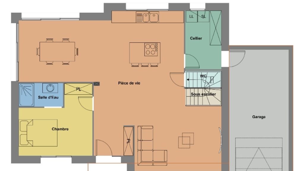
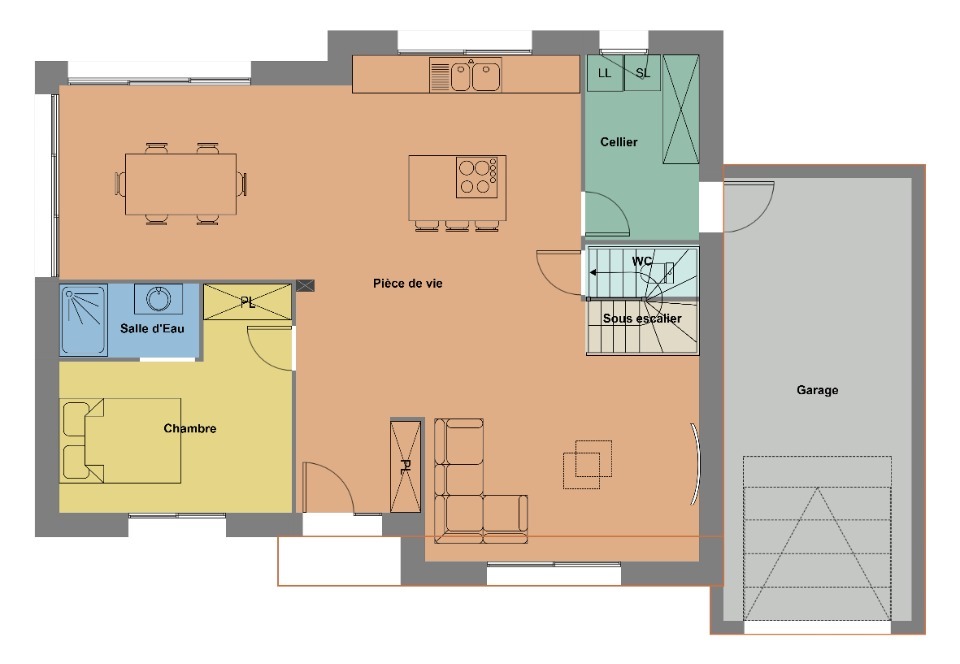
Maison de 5 pièces (121 m²) en vente à Montreuil-sur-Ille
IDÉALEMENT SITUÉE - MAISON 5 PIÈCES NEUVE
À 34 km de la Manche et à 21 km de Rennes, nous vous proposons en vente, idéalement située dans Montreuil-sur-Ille (35440), cette maison de 5 pièces de 121 m² et de 299 m² de terrain.
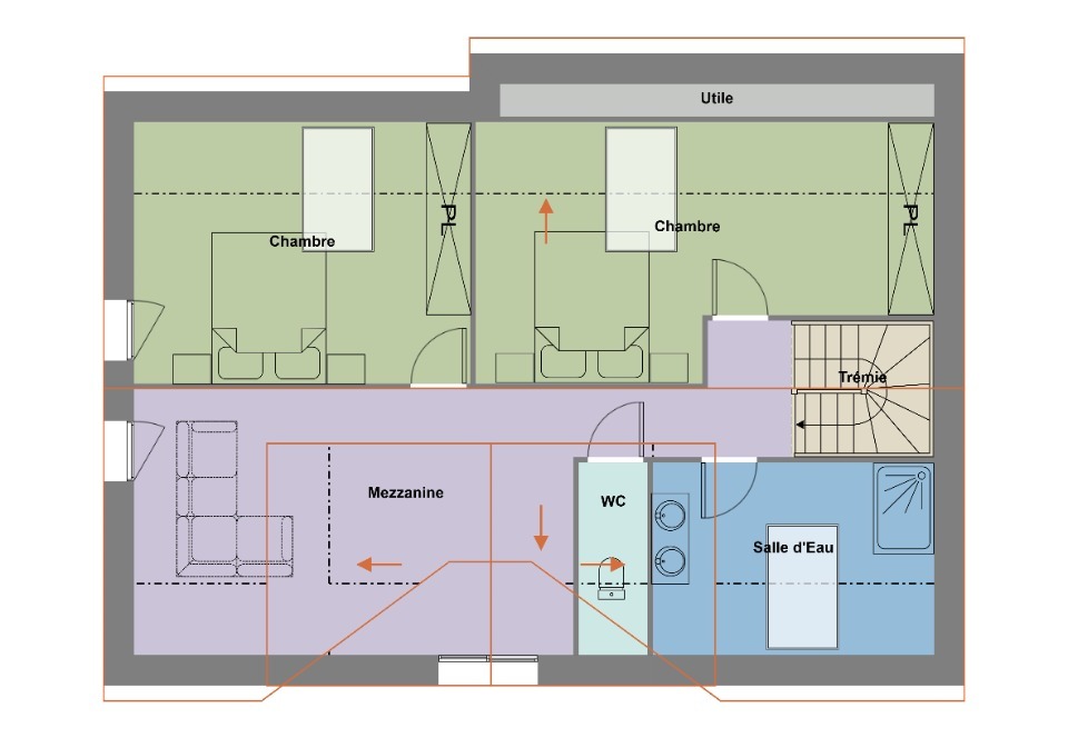
C'est une maison de 2 niveaux. Son intérieur comporte quatre chambres, une cuisine et deux salles de bains. Cette maison est neuve.
La maison se trouve dans un quartier recherché. L'École Primaire Publique Groupe Scolaire du Botrel et l'École Primaire Privée St Michel sont implantées à moins de 10 minutes à pied, tout comme une structure d'accueil pour la petite enfance. Niveau transports, il y a la gare Montreuil-sur-Ille juste à côté. L'autoroute A84 et les nationales N136 et N12 sont accessibles à moins de 20 km. On trouve une bibliothèque, une boulangerie, un supermarché, un commerce et un bureau de poste à proximité du bien.
Elle est à vendre pour la somme de 320 000 €.
Prenez contact avec notre agence (Dimitri MESAS : 02-99-83-07-20) pour toute information sur la maison, sur les démarches à suivre ou sur les modalités de vente.
IDÉALEMENT SITUÉE - MAISON 5 PIÈCES NEUVE
À 34 km de la Manche et à 21 km de Rennes, nous vous proposons en vente, idéalement située dans Montreuil-sur-Ille (35440), cette maison de 5 pièces de 121 m² et de 299 m² de terrain.
C'est une maison de 2 niveaux. Son intérieur comporte quatre chambres, une cuisine et deux salles de bains. Cette maison est neuve.
La maison se trouve dans un quartier recherché. L'École Primaire Publique Groupe Scolaire du Botrel et l'École Primaire Privée St Michel sont implantées à moins de 10 minutes à pied, tout… Lire la suite
Maison de 5 pièces (121 m²) en vente à Montreuil-sur-Ille
IDÉALEMENT SITUÉE - MAISON 5 PIÈCES NEUVE
À 34 km de la Manche et à 21 km de Rennes, nous vous proposons en vente, idéalement située dans Montreuil-sur-Ille (35440), cette maison de 5 pièces de 121 m² et de 299 m² de terrain.
C'est une maison de 2 niveaux. Son intérieur comporte quatre chambres, une cuisine et deux salles de bains. Cette maison est neuve.
La maison se trouve dans un quartier recherché. L'École Primaire Publique Groupe Scolaire du Botrel et l'École Primaire Privée St Michel sont implantées à moins de 10 minutes à pied, tout comme une structure d'accueil pour la petite enfance. Niveau transports, il y a la gare Montreuil-sur-Ille juste à côté. L'autoroute A84 et les nationales N136 et N12 sont accessibles à moins de 20 km. On trouve une bibliothèque, une boulangerie, un supermarché, un commerce et un bureau de poste à proximité du bien.
Elle est à vendre pour la somme de 320 000 €.
Prenez contact avec notre agence (Dimitri MESAS : 02-99-83-07-20) pour toute information sur la maison, sur les démarches à suivre ou sur les modalités de vente.
Maisons de l’Avenir, constructeur de maisons individuelles, propose en collaboration avec ses partenaires fonciers, une sélection de terrains constructibles, selon disponibilité, pour la construction de maisons neuves définies par le constructeur, avec un contrat de construction de maison individuelle, dans le cadre de la loi du 19/12/1990. Prix net, hors frais notariés, d'enregistrement et de publicité foncière
Terrain proposé au prix de : 57 500 €
Maison proposée au prix de : 262 500 €
Etiquette énergie : A. Assurances et garanties du constructeur (RC professionnelle, décennale, dommage ouvrage, Garantie de livraison à prix et délai convenu). https://www.maisonsdelavenir.com/mentions-legales/
Localisation
Une maison 100% personnalisable
-
Garage
-
Agencement
-
Revêtements extérieurs
-
Toiture
-
Ouvertures
Nos garanties constructeur
UNE MAISON 100% PERSONNALISÉE
Définir un style architectural (contemporain, moderne, traditionnel) et un plan adapté à votre mode de vie pour mettre en lumière votre projet de construction, tel est notre quotidien !
SERVICE 3 EN 1
Nos conseillers habitat vous accompagnent tout au long de votre projet : Terrain – Maison - Financement, afin de garantir sa réussite et de satisfaire vos exigences !
DES ANNÉES D'EXPÉRIENCES
Depuis 1962, la marque Maisons de l’Avenir inspire confiance et sérénité, une si longue expérience dans la construction de maisons individuelles, c’est un vrai gage de qualité !



















