Maison à construire de 75m² (3 chambres) sur un terrain de 435m² à Monterblanc (56250)

2410451-6245modele820240822eEvHa.jpeg
Nous contacter
  • Prix Maison + Terrain

    • À partir de 271 000 €
  • Référence

    • ASL2410387_1
  • Maison personnalisable

    • Chambres : 3
    • Nombre de pièces : 4
    • Surface maison : 75 m²
    • Surface terrain : 435 m²
    • Garage/Carport
  • Performances énergétiques

    • Classe énergétique : A

Description

Maison T4 (75 m²) en vente à Monterblanc
PROCHE DE VANNES - MAISON 4 PIÈCES NEUVE
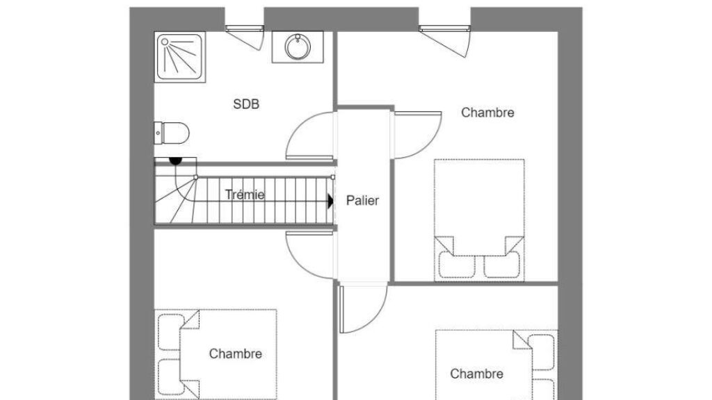
En vente à 12 km de la côte atlantique et à 9 km de Vannes, à Monterblanc (56250), notre agence Maisons de l'Avenir Lorient est heureuse de vous proposer cette maison de 4 pièces de 75 m² et de 435 m² de terrain. Son intérieur se divise en trois chambres, une cuisine et une salle de bains.
Cette maison comporte 2 niveaux.
Son prix de vente est de 271 000 €.
Prenez contact avec notre constructeur (Anne-Sophie LAPART : 02-97-21-63-96) pour toute question sur la maison.

Masquer
Maison T4 (75 m²) en vente à Monterblanc
PROCHE DE VANNES - MAISON 4 PIÈCES NEUVE
En vente à 12 km de la côte atlantique et à 9 km de Vannes, à Monterblanc (56250), notre agence Maisons de l'Avenir Lorient est heureuse de vous proposer cette maison de 4 pièces de 75 m² et de 435 m² de terrain. Son intérieur se divise en trois chambres, une cuisine et une salle de bains.
Cette maison comporte 2 niveaux.
Son prix de vente est de 271 000 €.
Prenez contact avec notre constructeur (Anne-Sophie LAPART : 02-97-21-63-96) pour toute question sur la maison. Lire la suite

Maison T4 (75 m²) en vente à Monterblanc
PROCHE DE VANNES - MAISON 4 PIÈCES NEUVE
En vente à 12 km de la côte atlantique et à 9 km de Vannes, à Monterblanc (56250), notre agence Maisons de l'Avenir Lorient est heureuse de vous proposer cette maison de 4 pièces de 75 m² et de 435 m² de terrain. Son intérieur se divise en trois chambres, une cuisine et une salle de bains.
Cette maison comporte 2 niveaux.
Son prix de vente est de 271 000 €.
Prenez contact avec notre constructeur (Anne-Sophie LAPART : 02-97-21-63-96) pour toute question sur la maison.

Localisation

Une maison 100% personnalisable

  • Garage

  • Agencement

  • Revêtements extérieurs

  • Toiture

  • Ouvertures

Nos garanties constructeur

UNE MAISON 100% PERSONNALISÉE

Définir un style architectural (contemporain, moderne, traditionnel) et un plan adapté à votre mode de vie pour mettre en lumière votre projet de construction, tel est notre quotidien !

SERVICE 3 EN 1

Nos conseillers habitat vous accompagnent tout au long de votre projet : Terrain – Maison - Financement, afin de garantir sa réussite et de satisfaire vos exigences !

DES ANNÉES D'EXPÉRIENCES

Depuis 1962, la marque Maisons de l’Avenir inspire confiance et sérénité, une si longue expérience dans la construction de maisons individuelles, c’est un vrai gage de qualité !