Prix Maison + Terrain
- À partir de 298 900 €
Référence
- CC2378424_8
Maison personnalisable
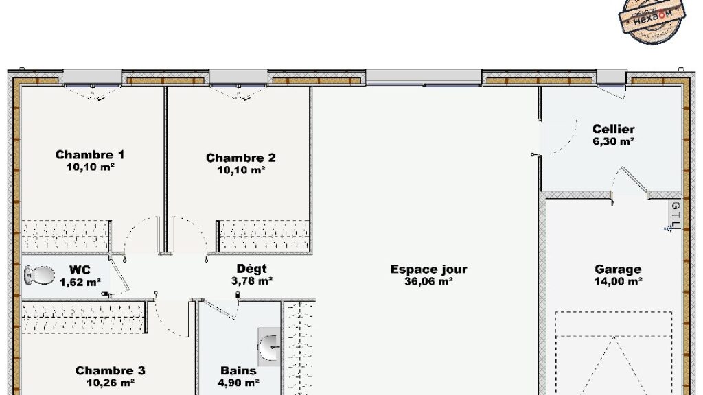
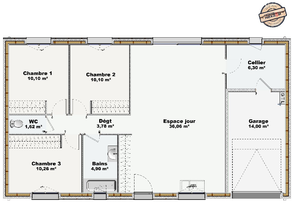
- Chambres : 3
- Nombre de pièces : 4
- Surface maison : 83 m²
- Surface terrain : 355 m²
- Garage/Carport
Performances énergétiques
- Classe énergétique : A
Description
Moëlan-sur-Mer : maison T4 (83 m²) en vente
EMPLACEMENT PRIVILÉGIÉ - MAISON 4 PIÈCES NEUVE
En vente : sur le littoral atlantique et à 21 km de Lorient, nous sommes ravis de vous présenter cette maison de 4 pièces de plain-pied de 83 m² et de 355 m² de terrain, bénéficiant d'un emplacement privilégié dans Moëlan-sur-Mer (29350). Son intérieur se divise en trois chambres, une cuisine et une salle de bains.
Cette maison est neuve.
Cette maison se trouve dans un secteur recherché. Il y a l'École Primaire Privée Immaculée-Conception, l'École Élémentaire Publique de Moëlan-Sur-Sur et le Collège Parc-Ar-Ar-Ar Cotty à moins de 10 minutes à pied et deux crèches. Côté transports, on trouve la gare Quimperlé à moins de 10 minutes en voiture. On trouve un accès à la nationale N165 à 7 km. Il y a un tennis, des commerces, trois boulangeries, un supermarché et un bureau de poste à proximité. Ne manquez pas le marché Place de l'Eglise chaque mardi matin.
Elle est à vendre pour la somme de 298 900 €.
N'hésitez pas à prendre contact avec Christophe COLLOCH (02-97-21-63-96) pour tout renseignement sur la propriété, sur les démarches à suivre ou sur les modalités de vente. Faites de vos projets immobiliers une réalité avec Maisons de l'Avenir Lorient.
EMPLACEMENT PRIVILÉGIÉ - MAISON 4 PIÈCES NEUVE
En vente : sur le littoral atlantique et à 21 km de Lorient, nous sommes ravis de vous présenter cette maison de 4 pièces de plain-pied de 83 m² et de 355 m² de terrain, bénéficiant d'un emplacement privilégié dans Moëlan-sur-Mer (29350). Son intérieur se divise en trois chambres, une cuisine et une salle de bains.
Cette maison est neuve.
Cette maison se trouve dans un secteur recherché. Il y a l'École Primaire Privée Immaculée-Conception, l'École Élémentaire Publique de Moëlan-Sur-Sur et le Collège Parc-Ar-Ar-Ar Cotty à moins de 10 minutes à… Lire la suite
Moëlan-sur-Mer : maison T4 (83 m²) en vente
EMPLACEMENT PRIVILÉGIÉ - MAISON 4 PIÈCES NEUVE
En vente : sur le littoral atlantique et à 21 km de Lorient, nous sommes ravis de vous présenter cette maison de 4 pièces de plain-pied de 83 m² et de 355 m² de terrain, bénéficiant d'un emplacement privilégié dans Moëlan-sur-Mer (29350). Son intérieur se divise en trois chambres, une cuisine et une salle de bains.
Cette maison est neuve.
Cette maison se trouve dans un secteur recherché. Il y a l'École Primaire Privée Immaculée-Conception, l'École Élémentaire Publique de Moëlan-Sur-Sur et le Collège Parc-Ar-Ar-Ar Cotty à moins de 10 minutes à pied et deux crèches. Côté transports, on trouve la gare Quimperlé à moins de 10 minutes en voiture. On trouve un accès à la nationale N165 à 7 km. Il y a un tennis, des commerces, trois boulangeries, un supermarché et un bureau de poste à proximité. Ne manquez pas le marché Place de l'Eglise chaque mardi matin.
Elle est à vendre pour la somme de 298 900 €.
N'hésitez pas à prendre contact avec Christophe COLLOCH (02-97-21-63-96) pour tout renseignement sur la propriété, sur les démarches à suivre ou sur les modalités de vente. Faites de vos projets immobiliers une réalité avec Maisons de l'Avenir Lorient.
Maisons de l’Avenir, constructeur de maisons individuelles, propose en collaboration avec ses partenaires fonciers, une sélection de terrains constructibles, selon disponibilité, pour la construction de maisons neuves définies par le constructeur, avec un contrat de construction de maison individuelle, dans le cadre de la loi du 19/12/1990. Prix net, hors frais notariés, d'enregistrement et de publicité foncière
Terrain proposé au prix de : 65 000 €
Maison proposée au prix de : 233 900 €
Etiquette énergie : A. Assurances et garanties du constructeur (RC professionnelle, décennale, dommage ouvrage, Garantie de livraison à prix et délai convenu). https://www.maisonsdelavenir.com/mentions-legales/
Localisation
Une maison 100% personnalisable
-
Garage
-
Agencement
-
Revêtements extérieurs
-
Toiture
-
Ouvertures
Nos garanties constructeur
UNE MAISON 100% PERSONNALISÉE
Définir un style architectural (contemporain, moderne, traditionnel) et un plan adapté à votre mode de vie pour mettre en lumière votre projet de construction, tel est notre quotidien !
SERVICE 3 EN 1
Nos conseillers habitat vous accompagnent tout au long de votre projet : Terrain – Maison - Financement, afin de garantir sa réussite et de satisfaire vos exigences !
DES ANNÉES D'EXPÉRIENCES
Depuis 1962, la marque Maisons de l’Avenir inspire confiance et sérénité, une si longue expérience dans la construction de maisons individuelles, c’est un vrai gage de qualité !





























