Prix Maison + Terrain
- À partir de 272 500 €
Référence
- CC2378424_7
Maison personnalisable
- Chambres : 2
- Nombre de pièces : 3
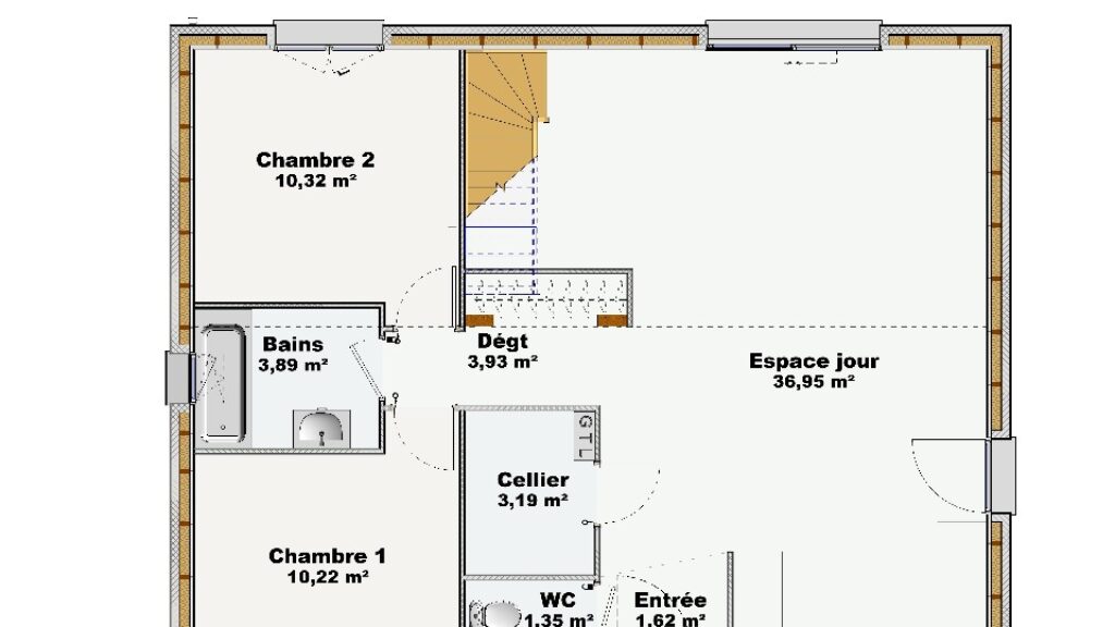
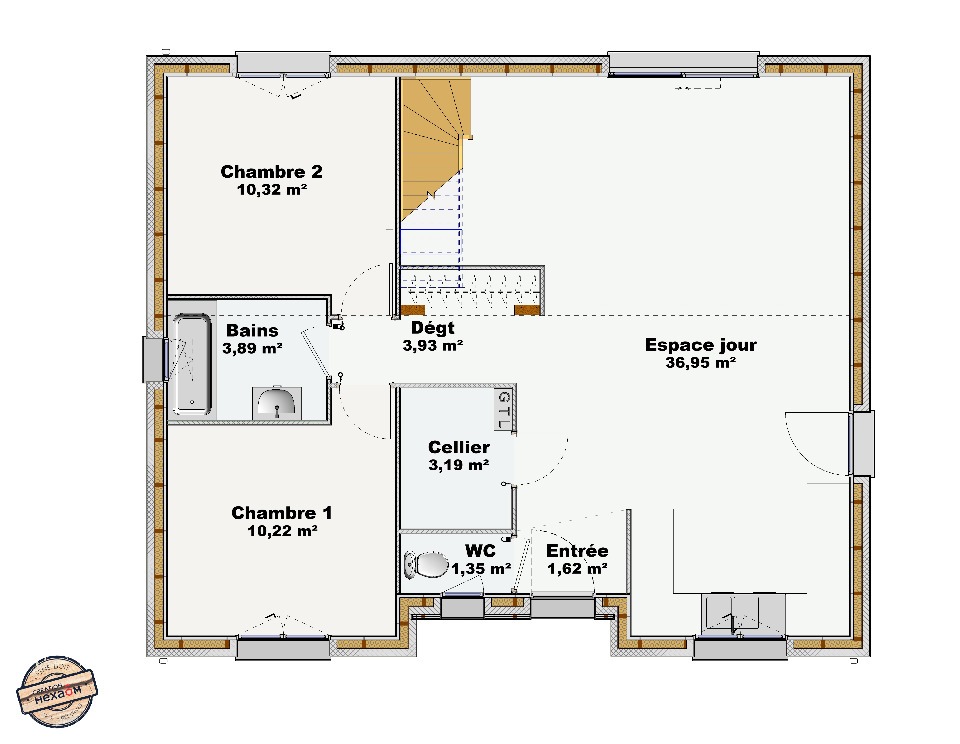
- Surface maison : 71 m²
- Surface terrain : 355 m²
- Garage/Carport
Performances énergétiques
- Classe énergétique : A
Description
Maison F3 (71 m²) en vente à Moëlan-sur-Mer
EMPLACEMENT PRIVILÉGIÉ - MAISON 3 PIÈCES NEUVE
En vente : à 4 km de la côte atlantique et à deux pas de Lorient, bénéficiant d'un emplacement privilégié dans Moëlan-sur-Mer (29350), ayez le coup de coeur pour cette maison de 3 pièces de 71 m².
Cette maison possède 2 niveaux. Elle est composée de deux chambres, d'une cuisine et d'une salle de bains. La maison est neuve.
Le terrain du bien est de 355 m².
La maison se situe dans un quartier convoité. L'École Primaire Privée Immaculée-Conception, l'École Élémentaire Publique de Moëlan-Sur-Sur et le Collège Parc-Ar-Ar-Ar Cotty se trouvent à moins de 10 minutes à pied, tout comme deux crèches. Niveau transports en commun, il y a la gare Quimperlé à moins de 10 minutes en voiture. La nationale N165 est accessible à 7 km. On trouve un tennis, des commerces, trois boulangeries, un supermarché et un bureau de poste dans les environs. Enfin, le marché Place de l'Eglise a lieu chaque mardi matin.
Elle est à vendre pour la somme de 272 500 €.
Contactez notre agence (Christophe COLLOCH : 02-97-21-63-96) pour obtenir de plus amples renseignements sur la maison, sur les démarches à suivre et sur les modalités de vente. Maisons de l'Avenir Lorient est là pour vous accompagner à toutes les étapes de votre projet.
EMPLACEMENT PRIVILÉGIÉ - MAISON 3 PIÈCES NEUVE
En vente : à 4 km de la côte atlantique et à deux pas de Lorient, bénéficiant d'un emplacement privilégié dans Moëlan-sur-Mer (29350), ayez le coup de coeur pour cette maison de 3 pièces de 71 m².
Cette maison possède 2 niveaux. Elle est composée de deux chambres, d'une cuisine et d'une salle de bains. La maison est neuve.
Le terrain du bien est de 355 m².
La maison se situe dans un quartier convoité. L'École Primaire Privée Immaculée-Conception, l'École Élémentaire Publique de Moëlan-Sur-Sur et le Collège Parc-Ar-Ar-Ar Cotty se trouvent à… Lire la suite
Maison F3 (71 m²) en vente à Moëlan-sur-Mer
EMPLACEMENT PRIVILÉGIÉ - MAISON 3 PIÈCES NEUVE
En vente : à 4 km de la côte atlantique et à deux pas de Lorient, bénéficiant d'un emplacement privilégié dans Moëlan-sur-Mer (29350), ayez le coup de coeur pour cette maison de 3 pièces de 71 m².
Cette maison possède 2 niveaux. Elle est composée de deux chambres, d'une cuisine et d'une salle de bains. La maison est neuve.
Le terrain du bien est de 355 m².
La maison se situe dans un quartier convoité. L'École Primaire Privée Immaculée-Conception, l'École Élémentaire Publique de Moëlan-Sur-Sur et le Collège Parc-Ar-Ar-Ar Cotty se trouvent à moins de 10 minutes à pied, tout comme deux crèches. Niveau transports en commun, il y a la gare Quimperlé à moins de 10 minutes en voiture. La nationale N165 est accessible à 7 km. On trouve un tennis, des commerces, trois boulangeries, un supermarché et un bureau de poste dans les environs. Enfin, le marché Place de l'Eglise a lieu chaque mardi matin.
Elle est à vendre pour la somme de 272 500 €.
Contactez notre agence (Christophe COLLOCH : 02-97-21-63-96) pour obtenir de plus amples renseignements sur la maison, sur les démarches à suivre et sur les modalités de vente. Maisons de l'Avenir Lorient est là pour vous accompagner à toutes les étapes de votre projet.
Maisons de l’Avenir, constructeur de maisons individuelles, propose en collaboration avec ses partenaires fonciers, une sélection de terrains constructibles, selon disponibilité, pour la construction de maisons neuves définies par le constructeur, avec un contrat de construction de maison individuelle, dans le cadre de la loi du 19/12/1990. Prix net, hors frais notariés, d'enregistrement et de publicité foncière
Terrain proposé au prix de : 65 000 €
Maison proposée au prix de : 207 500 €
Etiquette énergie : A. Assurances et garanties du constructeur (RC professionnelle, décennale, dommage ouvrage, Garantie de livraison à prix et délai convenu). https://www.maisonsdelavenir.com/mentions-legales/
Localisation
Une maison 100% personnalisable
-
Garage
-
Agencement
-
Revêtements extérieurs
-
Toiture
-
Ouvertures
Nos garanties constructeur
UNE MAISON 100% PERSONNALISÉE
Définir un style architectural (contemporain, moderne, traditionnel) et un plan adapté à votre mode de vie pour mettre en lumière votre projet de construction, tel est notre quotidien !
SERVICE 3 EN 1
Nos conseillers habitat vous accompagnent tout au long de votre projet : Terrain – Maison - Financement, afin de garantir sa réussite et de satisfaire vos exigences !
DES ANNÉES D'EXPÉRIENCES
Depuis 1962, la marque Maisons de l’Avenir inspire confiance et sérénité, une si longue expérience dans la construction de maisons individuelles, c’est un vrai gage de qualité !









