Prix Maison + Terrain
- À partir de 340 000 €
Référence
- ET2365096_2
Maison personnalisable
- Chambres : 4
- Nombre de pièces : 5
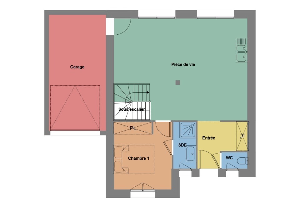
- Surface maison : 110 m²
- Surface terrain : 505 m²
- Garage/Carport
Performances énergétiques
- Classe énergétique : A
Description
📍 À VENDRE - Terrain constructible de 505 m² à Milizac-Guipronvel
Découvrez ce terrain de 505 m² situé dans un quartier résidentiel paisible, au coeur d'un environnement verdoyant et agréable.
🌿 Atouts du terrain :
Cadre calme et résidentiel, idéal pour une maison familiale 🏡
Accès rapide à Brest : seulement 15 minutes en voiture 🚗
🏫 À proximité : écoles, commerces du centre-bourg, vie associative dynamique et transports scolaires.
Profitez du compromis parfait entre tranquillité et accessibilité, pour réaliser votre futur projet de vie.
💡 Nous vous proposons sur ce terrain un projet de maison de 110m², au style contemporain comprenant :
4 chambres dont une suite parentale 🛏️
2 salles de bains dont une avec douche et baignoire🚿
Un vaste espace de vie de plus de 35 m² lumineux ☀️
Un grand garage 🚗
Une conception intégrée dans notre concept Maisons Bâti Activ, favorisant l'ensoleillement naturel et réduisant vos coûts énergétiques 🌿⚡
💰 Prix de l'opération Terrain + Maison : 340 000 €
📞 Contactez Erwan TILLY dès maintenant pour plus d'informations ou organiser une visite.
Découvrez ce terrain de 505 m² situé dans un quartier résidentiel paisible, au coeur d'un environnement verdoyant et agréable.
🌿 Atouts du terrain :
Cadre calme et résidentiel, idéal pour une maison familiale 🏡
Accès rapide à Brest : seulement 15 minutes en voiture 🚗
🏫 À proximité : écoles, commerces du centre-bourg, vie associative dynamique et transports scolaires.
Profitez du compromis parfait entre tranquillité et accessibilité, pour réaliser votre futur projet de vie.
💡 Nous vous proposons sur ce terrain un projet de maison de 110m², au style contemporain comprenant :
4 chambres dont une suite… Lire la suite
📍 À VENDRE - Terrain constructible de 505 m² à Milizac-Guipronvel
Découvrez ce terrain de 505 m² situé dans un quartier résidentiel paisible, au coeur d'un environnement verdoyant et agréable.
🌿 Atouts du terrain :
Cadre calme et résidentiel, idéal pour une maison familiale 🏡
Accès rapide à Brest : seulement 15 minutes en voiture 🚗
🏫 À proximité : écoles, commerces du centre-bourg, vie associative dynamique et transports scolaires.
Profitez du compromis parfait entre tranquillité et accessibilité, pour réaliser votre futur projet de vie.
💡 Nous vous proposons sur ce terrain un projet de maison de 110m², au style contemporain comprenant :
4 chambres dont une suite parentale 🛏️
2 salles de bains dont une avec douche et baignoire🚿
Un vaste espace de vie de plus de 35 m² lumineux ☀️
Un grand garage 🚗
Une conception intégrée dans notre concept Maisons Bâti Activ, favorisant l'ensoleillement naturel et réduisant vos coûts énergétiques 🌿⚡
💰 Prix de l'opération Terrain + Maison : 340 000 €
📞 Contactez Erwan TILLY dès maintenant pour plus d'informations ou organiser une visite.
Maisons de l’Avenir, constructeur de maisons individuelles, propose en collaboration avec ses partenaires fonciers, une sélection de terrains constructibles, selon disponibilité, pour la construction de maisons neuves définies par le constructeur, avec un contrat de construction de maison individuelle, dans le cadre de la loi du 19/12/1990. Prix net, hors frais notariés, d'enregistrement et de publicité foncière
Terrain proposé au prix de : 75 900 €
Maison proposée au prix de : 264 100 €
Etiquette énergie : A. Assurances et garanties du constructeur (RC professionnelle, décennale, dommage ouvrage, Garantie de livraison à prix et délai convenu). https://www.maisonsdelavenir.com/mentions-legales/
Localisation
Une maison 100% personnalisable
-
Garage
-
Agencement
-
Revêtements extérieurs
-
Toiture
-
Ouvertures
Nos garanties constructeur
UNE MAISON 100% PERSONNALISÉE
Définir un style architectural (contemporain, moderne, traditionnel) et un plan adapté à votre mode de vie pour mettre en lumière votre projet de construction, tel est notre quotidien !
SERVICE 3 EN 1
Nos conseillers habitat vous accompagnent tout au long de votre projet : Terrain – Maison - Financement, afin de garantir sa réussite et de satisfaire vos exigences !
DES ANNÉES D'EXPÉRIENCES
Depuis 1962, la marque Maisons de l’Avenir inspire confiance et sérénité, une si longue expérience dans la construction de maisons individuelles, c’est un vrai gage de qualité !





















