Prix Maison + Terrain
- À partir de 443 000 €
Référence
- ASL2340290_3
Maison personnalisable
- Chambres : 5
- Nombre de pièces : 6
- Surface maison : 145 m²
- Surface terrain : 503 m²
- Garage/Carport
Performances énergétiques
- Classe énergétique : A
Description
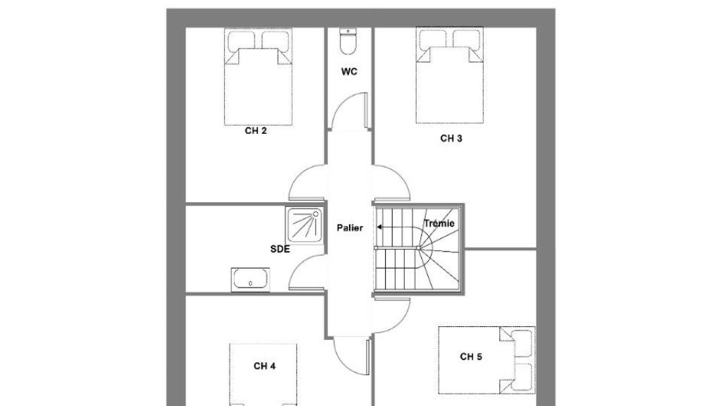
VENTE d'une maison F6 (145 m²) à Merlevenez
MAISON 6 PIÈCES NEUVE - PROCHE DE LORIENT
En vente : située à 10 km de l'océan Atlantique et à quelques kilomètres de Lorient, nous vous proposons à Merlevenez (56700), cette maison de 6 pièces de 145 m² et de 503 m² de terrain.
Cette maison possède 2 niveaux. Son intérieur propose cinq chambres, une cuisine et deux salles de bains.
Elle est à vendre pour la somme de 443 000 €.
Prenez contact avec notre agence (Anne-Sophie LAPART : 02-97-21-63-96) pour plus de renseignements sur la maison ou sur les démarches à suivre. Faites de vos projets immobiliers une réalité avec Maisons de l'Avenir Lorient.
MAISON 6 PIÈCES NEUVE - PROCHE DE LORIENT
En vente : située à 10 km de l'océan Atlantique et à quelques kilomètres de Lorient, nous vous proposons à Merlevenez (56700), cette maison de 6 pièces de 145 m² et de 503 m² de terrain.
Cette maison possède 2 niveaux. Son intérieur propose cinq chambres, une cuisine et deux salles de bains.
Elle est à vendre pour la somme de 443 000 €.
Prenez contact avec notre agence (Anne-Sophie LAPART : 02-97-21-63-96) pour plus de renseignements sur la maison ou sur les démarches à suivre. Faites de vos projets… Lire la suite
VENTE d'une maison F6 (145 m²) à Merlevenez
MAISON 6 PIÈCES NEUVE - PROCHE DE LORIENT
En vente : située à 10 km de l'océan Atlantique et à quelques kilomètres de Lorient, nous vous proposons à Merlevenez (56700), cette maison de 6 pièces de 145 m² et de 503 m² de terrain.
Cette maison possède 2 niveaux. Son intérieur propose cinq chambres, une cuisine et deux salles de bains.
Elle est à vendre pour la somme de 443 000 €.
Prenez contact avec notre agence (Anne-Sophie LAPART : 02-97-21-63-96) pour plus de renseignements sur la maison ou sur les démarches à suivre. Faites de vos projets immobiliers une réalité avec Maisons de l'Avenir Lorient.
Maisons de l’Avenir, constructeur de maisons individuelles, propose en collaboration avec ses partenaires fonciers, une sélection de terrains constructibles, selon disponibilité, pour la construction de maisons neuves définies par le constructeur, avec un contrat de construction de maison individuelle, dans le cadre de la loi du 19/12/1990. Prix net, hors frais notariés, d'enregistrement et de publicité foncière
Terrain proposé au prix de : 109 000 €
Maison proposée au prix de : 334 000 €
Etiquette énergie : A. Assurances et garanties du constructeur (RC professionnelle, décennale, dommage ouvrage, Garantie de livraison à prix et délai convenu). https://www.maisonsdelavenir.com/mentions-legales/
Localisation
Une maison 100% personnalisable
-
Garage
-
Agencement
-
Revêtements extérieurs
-
Toiture
-
Ouvertures
Nos garanties constructeur
UNE MAISON 100% PERSONNALISÉE
Définir un style architectural (contemporain, moderne, traditionnel) et un plan adapté à votre mode de vie pour mettre en lumière votre projet de construction, tel est notre quotidien !
SERVICE 3 EN 1
Nos conseillers habitat vous accompagnent tout au long de votre projet : Terrain – Maison - Financement, afin de garantir sa réussite et de satisfaire vos exigences !
DES ANNÉES D'EXPÉRIENCES
Depuis 1962, la marque Maisons de l’Avenir inspire confiance et sérénité, une si longue expérience dans la construction de maisons individuelles, c’est un vrai gage de qualité !















